4-Bedrm, 6532 Sq Ft Chateau Plan with 2-Story Walk-in Closet

Front elevation of Chateau-inspired home (ThePlanCollection: House Plan #106-1298)

Images/Plans copyrighted by designer. Photos may reflect homeowner modifications.

About House Plan #106-1298

Sq Ft
6532
Sq Ft
Bedrooms
4
Bedrooms
Bathroom
4
Baths
Half Baths
1
Half Baths
Bedrooms
4
Cars
Bedrooms
2
Stories
Bedrooms
139' 0'
Width
Bedrooms
73
Depth
Starting at$3295.00What's included
STEP 1Bedrooms
STEP 2Bedrooms
STEP 3Bedrooms

Subtotal:$0
Plan Collection

How much will it cost to build?

Estimate your costs based on your location and materials.

Free Cost Instant Estimator

Floor Plans

Floor Plan Main Level
Floor Plan Main Level
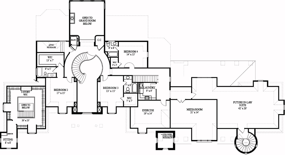
Floor Plan Upper Level
Floor Plan Upper Level
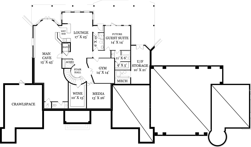
Basement Option Layout
Basement Option Layout
Plan Collection

Can I modify this plan?

Yes! This plan can be customized—contact us for a free quote.

Additional Notes from Designer

The plans by this designer do NOT include framing. PLEASE NOTE: An Unlimited Use License is available for purchase through the designer BUT YOU MUST purchase a CAD package!

House Plan Description

There are plenty of surprises with this luxurious, European-styled chateau! To name just a few of the special finds in this castle-inspired design:

  • The dramatic foyer and curved staircase.
  • Grand room with fireplace and windows on three sides.
  • Open-concept layout for the two-island kitchen, family room, and morning (breakfast) room. 
  • Wrap-around rear deck.
  • An elevator and a wet-bar.
  • Master suite with an octagon-shaped master bedroom and an octagon-shaped master bath.
  • A two-story walk-in master...

Home Details

Summary
Plan #:106-1298
Starting at:$3295.00
Floors:2
Bedrooms:4
Full Baths:4
Half Baths:1
Garage:
Square Footage
Heated Area:6532 Sq. Ft.
First Floor:3426 Sq. Ft.
Second Floor:3106 Sq. Ft.
Unheated Area:
Basement:2393 Sq. Ft.
Bonus Room:909 Sq. Ft.
Garage:1056 Sq. Ft.
Dimensions
Architectural Styles
Exterior Wall Material
BrickRock/Stone
Roofing Type
GableGable/Dormer
Roofing Material
Asphalt Shingles
Roof Pitch
12/12
Ceiling Height
10 Foot Ceiling9 Foot Ceiling11 Foot Ceiling
Special Feature
Mother in law apartmentFireplaceDining RoomGuest RoomHome OfficeFamily RoomMain Level LaundryMedia RoomLoftSplit BathroomStorageVaulted CeilingsWine CellarElevatorExercise RoomOpen Floor Plan
Garage Type
Attached GarageCourtyard EntrySide Entry
Fireplaces
One Fireplace
Exterior Wall Framing
2x6
Building Lot Type
Flat Site
Kitchen Features
Kitchen IslandNook/Breakfast AreaWalk-in PantryPeninsula/Eating BarEat-In KitchenSecondary Kitchen
Porches and Exterior Features
Covered Front PorchSundeckPorte-Cochere
Master Suite Features
Main Floor MasterMaster BathroomWalk In ClosetPrivate DeckSplit Master Bedroom

What’s Included

Most plan sets include the following:

icon text-secondary-400 includedFoundation Plan

icon text-secondary-400 includedFloor plans

icon text-secondary-400 includedElectrical layout

icon text-secondary-400 includedExterior elevations

icon text-secondary-400 includedCross-section

icon text-secondary-400 includedTypical Call detail

icon text-secondary-400 includedTypical footing detail

icon text-secondary-400 includedMiscellaneous details

icon text-secondary-400 includedWindow/Door sizes

icon text-secondary-400 includedRoof plan

What’s Not Included

These items are  NOT included:

icon text-secondary-400 includedFraming.

icon text-secondary-400 includedArchitectural or Engineering Stamp - handled locally if required.

icon text-secondary-400 includedSite Plan - handled locally when required.

icon text-secondary-400 includedMechanical Drawings (location of heating and air equipment and ductwork) - your subcontractors handle this.

icon text-secondary-400 includedPlumbing Drawings (drawings showing the actual plumbing pipe sizes and locations) - your subcontractors handle this.

icon text-secondary-400 includedEnergy calculations - handled locally when required.

Related House Plans

Plan Collection
Plan Collection
Plan Collection
Plan#107-1015
Starting at$1800
5555
Sq Ft
2
Story
4
Bed
4.5
Bath
3
Car
Plan Collection
Plan Collection
Plan Collection
Plan#175-1064
Starting at$2300
5841
Sq Ft
2
Story
4
Bed
4.5
Bath
3
Car
Plan Collection
Plan Collection
Plan Collection
Plan#163-1027
Starting at$1540
6765
Sq Ft
2
Story
4
Bed
4.5
Bath
2
Car
View All

Other Plans By This Designer

Plan Collection
Plan Collection
Plan Collection
Plan#106-1325
Starting at$4095
8628
Sq Ft
2
Story
7
Bed
7.5
Bath
5
Car
Plan Collection
Plan Collection
Plan Collection
Plan#106-1315
Starting at$1695
2830
Sq Ft
1
Story
3
Bed
2.5
Bath
3
Car
Plan Collection
Plan Collection
Plan Collection
Plan#106-1206
Starting at$4095
8210
Sq Ft
2
Story
6
Bed
6.5
Bath
4
Car