2-Car, Garage

This image shows the front elevation of these garage plans.

Images/Plans copyrighted by designer. Photos may reflect homeowner modifications.

About House Plan #110-1024

Sq Ft
636
Sq Ft
Bedrooms
0
Bedrooms
Bathroom
0
Baths
Half Baths
0
Half Baths
Bedrooms
2
Cars
Bedrooms
2
Stories
Bedrooms
34' 0'
Width
Bedrooms
26
Depth
Starting at$530.00What's included
STEP 1Bedrooms
STEP 2Bedrooms
STEP 3Bedrooms

Subtotal:$0
Plan Collection

How much will it cost to build?

Estimate your costs based on your location and materials.

Free Cost Instant Estimator

Floor Plans

Floor Plan First Story
Floor Plan First Story
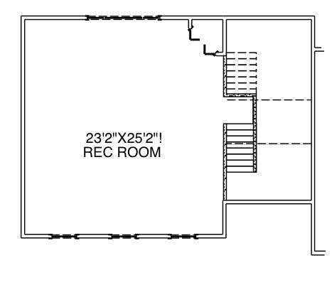
Floor Plan Second Story
Floor Plan Second Story
Plan Collection

Can I modify this plan?

Yes! This plan can be customized—contact us for a free quote.

House Plan Description

This garage plan was meant to attach to an existing home.

Home Details

Summary
Plan #:110-1024
Starting at:$530.00
Floors:2
Bedrooms:0
Full Baths:0
Half Baths:0
Garage:
Square Footage
Heated Area:636 Sq. Ft.
First Floor:636 Sq. Ft.
Unheated Area:
Dimensions
Architectural Styles
Exterior Wall Material
Wood Siding
Roofing Type
Gable
Roofing Material
Asphalt Shingles
Roof Pitch
7/12
Special Feature
Bonus Room
Garage Type
Front Entry
Building Lot Type
Flat SiteNarrow Lot Design

What’s Included

Most plan sets include the following:

icon text-secondary-400 includedELEVATIONS:The front, rear, and side elevations of the house as drawn. Shows placement of doors & windows on exterior of the house, as well as roof pitches, ridge heights, and locations of chimney, exterior vents, etc. The elevations show the positioning of the final grade of the lot, exterior finishes, and other details that are necessary to give the home exterior architectural styling.

icon text-secondary-400 includedMAIN FLOOR PLAN: Showing all dimensions, window and door locations, laminated beams, columns, floor materials, ceiling heights, fireplace size, and specifications. Includes window sizes.

icon text-secondary-400 includedUPPER FLOOR PLAN (if applicable): Same details as the main floor plan.

icon text-secondary-400 includedSECTIONS AND INTERIOR DETAILS:Explain certain special conditions more appropriately. A cross section is basically a view of the home (or parts of the home) if it were sliced down the center. These details can be helpful for the contractor.

icon text-secondary-400 includedFOUNDATION PLAN: Dimensioned plan detailing the location and size of footings, slabs, reinforcing steel, and other structural elements that are required to support the load of the upper floors.

What’s Not Included

These items are  NOT included:

icon text-secondary-400 includedArchitectural or Engineering Stamp - handled locally if required.

icon text-secondary-400 includedFraming plans.

icon text-secondary-400 includedElectrical layout.

icon text-secondary-400 includedSite Plan - handled locally when required.

icon text-secondary-400 includedMechanical Drawings (location of heating and air equipment and ductwork) - your subcontractors handle this.

icon text-secondary-400 includedPlumbing Drawings (drawings showing the actual plumbing pipe sizes and locations) - your subcontractors handle this.

icon text-secondary-400 includedEnergy calculations - handled locally when required.

Related House Plans

Plan Collection
Plan Collection
Plan Collection
Plan#115-1078
Starting at$1300
760
Sq Ft
2
Story
0
Bed
0
Bath
3
Car
Plan Collection
Plan Collection
Plan Collection
Plan#108-1776
Starting at$225
746
Sq Ft
2
Story
0
Bed
0
Bath
2
Car
Plan Collection
Plan Collection
Plan Collection
Plan#110-1137
Starting at$500
486
Sq Ft
2
Story
0
Bed
0
Bath
2
Car
View All

Other Plans By This Designer

Plan Collection
Plan Collection
Plan Collection
Plan#110-1102
Starting at$840
2459
Sq Ft
2
Story
3
Bed
3
Bath
2
Car
Plan Collection
Plan Collection
Plan Collection
Plan#110-1151
Starting at$500
419
Sq Ft
2
Story
0
Bed
1
Bath
2
Car
Plan Collection
Plan Collection
Plan Collection
Plan#110-1131
Starting at$500
200
Sq Ft
2
Story
0
Bed
0
Bath
2
Car

By Architectural Style

By Feature

By Region