5-Bedroom, 6291 Sq Ft Mediterranean Plan with Covered Lanai

Front elevation of Mediterranean home (ThePlanCollection: House Plan #195-1164)

Images/Plans copyrighted by designer. Photos may reflect homeowner modifications.

About House Plan #195-1164

Sq Ft
6291
Sq Ft
Bedrooms
5
Bedrooms
Bathroom
6
Baths
Half Baths
1
Half Baths
Bedrooms
4
Cars
Bedrooms
3
Stories
Bedrooms
130' 0'
Width
Bedrooms
94
Depth
Starting at$3295.00What's included
STEP 1Bedrooms
STEP 2Bedrooms
STEP 3Bedrooms

Subtotal:$0
Plan Collection

How much will it cost to build?

Estimate your costs based on your location and materials.

Free Cost Instant Estimator

Floor Plans

Floor Plan Main Level
Floor Plan Main Level
Floor Plan Third Story
Floor Plan Third Story
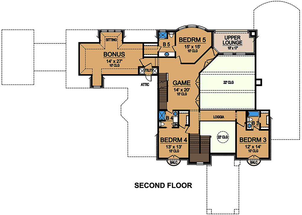
Floor Plan Upper Level
Floor Plan Upper Level
Plan Collection

Can I modify this plan?

Yes! This plan can be customized—contact us for a free quote.

Additional Notes from Designer

This designer does not offer ICF!

Total square feet under the roof is 8968 square feet.

House Plan Description

This lovely Mediterranean style home with Georgian influences (House Plan #195-1164) has 6291 square feet of living space. The 3 story floor plan includes 5 bedrooms.

Home Details

Summary
Plan #:195-1164
Starting at:$3295.00
Floors:3
Bedrooms:5
Full Baths:6
Half Baths:1
Garage:
Square Footage
Heated Area:6291 Sq. Ft.
First Floor:4106 Sq. Ft.
Second Floor:1574 Sq. Ft.
Third Floor:611 Sq. Ft.
Unheated Area:
Bonus Room:484 Sq. Ft.
Garage:1171 Sq. Ft.
Dimensions
Ridge Height:46' 0''
Architectural Styles
Exterior Wall Material
Rock/Stone
Roofing Type
Hip
Roofing Material
Asphalt Shingles
Roof Pitch
9/12
Ceiling Height
10 Foot Ceiling11 Foot Ceiling
Special Feature
FireplaceSwimming PoolDining RoomBonus RoomFamily RoomGame RoomMain Level LaundryLibraryLoftDenWine CellarBalconyOpen Floor Plan
Garage Type
Attached GarageRear Entry
Fireplaces
Two Fireplaces
Kitchen Features
Kitchen IslandNook/Breakfast AreaWalk-in PantryPeninsula/Eating BarEat-In Kitchen
Porches and Exterior Features
Covered Front PorchPortico
Master Suite Features
Main Floor MasterFireplace in MasterMaster BathroomWalk In ClosetSplit Master Bedroom

What’s Included

Most plan sets include the following:

icon text-secondary-400 includedDimension Plan

icon text-secondary-400 includedNotation Plan

icon text-secondary-400 includedElectrical Layout

icon text-secondary-400 includedElevations

icon text-secondary-400 includedRoof Plan

icon text-secondary-400 includedGeneral Specifications

icon text-secondary-400 includedGeneral Details

What’s Not Included

These items are  NOT included:

icon text-secondary-400 includedArchitectural or Engineering Stamp - handled locally if required.

icon text-secondary-400 includedSite Plan - handled locally when required.

icon text-secondary-400 includedMechanical Drawings (location of heating and air equipment and ductwork) - your subcontractors handle this.

icon text-secondary-400 includedPlumbing Drawings (drawings showing the actual plumbing pipe sizes and locations) - your subcontractors handle this.

icon text-secondary-400 includedEnergy calculations - handled locally when required.

Related House Plans

Plan Collection
Plan Collection
Plan Collection
Plan#106-1234
Starting at$3295
6747
Sq Ft
3
Story
5
Bed
6
Bath
4
Car
Plan Collection
Plan Collection
Plan Collection
Plan#156-1402
Starting at$1450
7157
Sq Ft
3
Story
5
Bed
6
Bath
4
Car
View All

Other Plans By This Designer

Plan Collection
Plan Collection
Plan Collection
Plan#195-1216
Starting at$3295
7587
Sq Ft
2
Story
5
Bed
6.5
Bath
3
Car
Plan Collection
Plan Collection
Plan Collection
Plan#195-1307
Starting at$7995
12720
Sq Ft
2
Story
5
Bed
6.5
Bath
5
Car
Plan Collection
Plan Collection
Plan Collection
Plan#195-1127
Starting at$9995
14727
Sq Ft
2
Story
9
Bed
8.5
Bath
9
Car