5-Bedroom, 5319 Sq Ft Cottage Plan with High Ceilings

Cottage home plan(ThePlanCollection: House Plan #180-1050)

Images/Plans copyrighted by designer. Photos may reflect homeowner modifications.

About House Plan #180-1050

Sq Ft
5319
Sq Ft
Bedrooms
5
Bedrooms
Bathroom
4
Baths
Half Baths
1
Half Baths
Bedrooms
3
Cars
Bedrooms
2
Stories
Bedrooms
63' 5'
Width
Bedrooms
66
Depth
Starting at$2250.00What's included
STEP 1Bedrooms
STEP 2Bedrooms
STEP 3Bedrooms

Subtotal:$0
Plan Collection

How much will it cost to build?

Estimate your costs based on your location and materials.

Free Cost Instant Estimator

Floor Plans

Floor Plan Main Level
Floor Plan Main Level
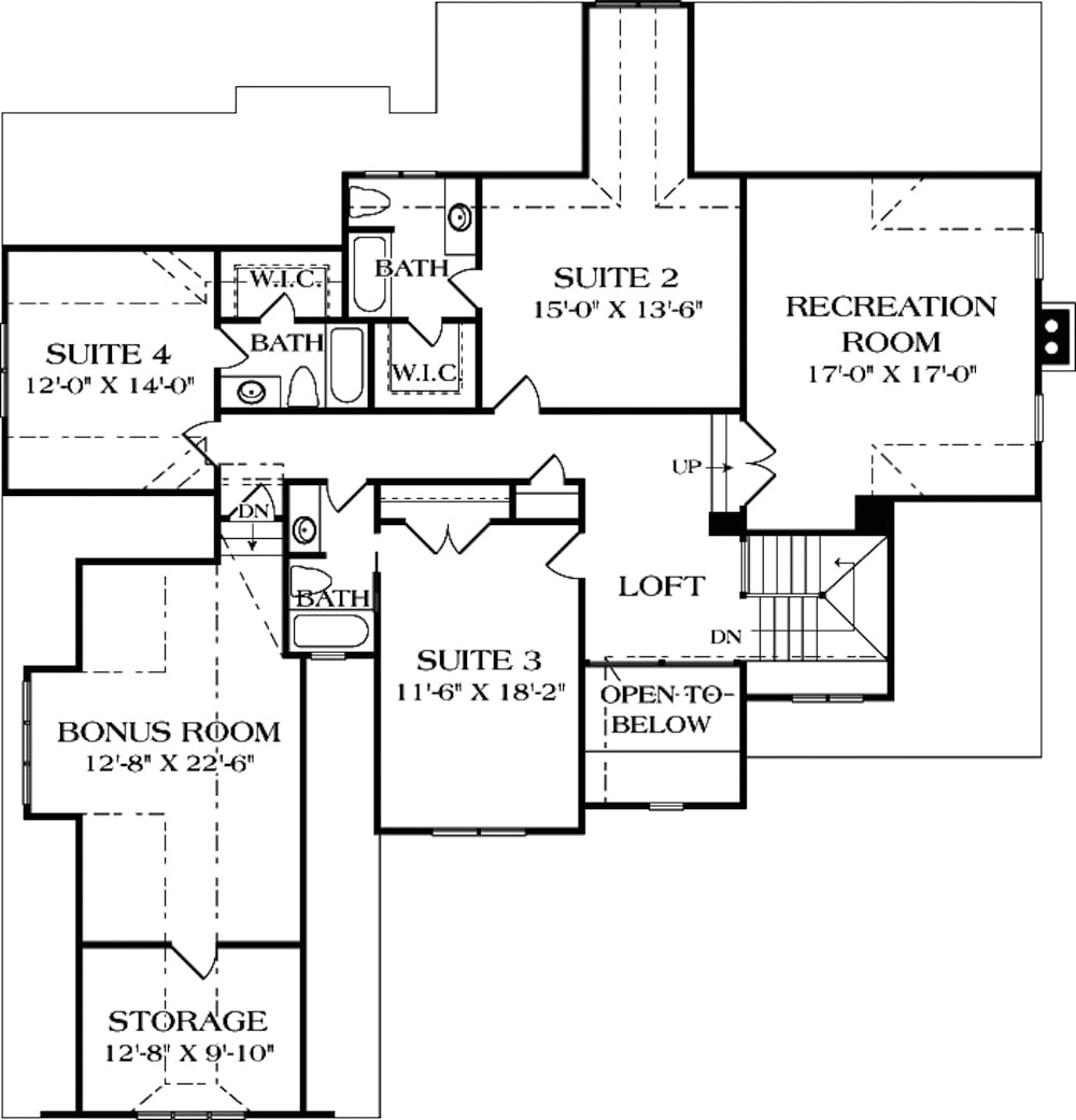
Floor Plan Upper Level
Floor Plan Upper Level
Lower Level
Lower Level
Plan Collection

Can I modify this plan?

Yes! This plan can be customized—contact us for a free quote.

Additional Notes from Designer

PLEASE NOTE!! Due to COVID-19, this designer is not able to fulfill REPRODUCIBLE sets at this time. Please order a PDF or CAD file which will be emailed to you. Thank you for your understanding!

House Plan Description

This charming Cottage style home plan with Craftsman influences (House Plan #180-1050) has 5319 square feet of living space. The 2 story floor plan includes 5 bedrooms.

Home Details

Summary
Plan #:180-1050
Starting at:$2250.00
Floors:2
Bedrooms:5
Full Baths:4
Half Baths:1
Garage:
Square Footage
Heated Area:5319 Sq. Ft.
Basement:1639 Sq. Ft.
First Floor:2059 Sq. Ft.
Second Floor:1621 Sq. Ft.
Unheated Area:
Bonus Room:471 Sq. Ft.
Garage:723 Sq. Ft.
Dimensions
Width:63' 5''
Depth:66' 5''
Architectural Styles
Exterior Wall Material
StuccoRock/Stone
Roofing Type
Hip
Roofing Material
Asphalt ShinglesMetal
Ceiling Height
10 Foot Ceiling9 Foot Ceiling
Special Feature
FireplaceDining RoomGuest RoomBonus RoomGame RoomMain Level LaundryColor PhotosLoftStorageOpen Floor PlanInterior Photos
Garage Type
Attached GarageSide Entry
Fireplaces
Two Fireplaces
Exterior Wall Framing
2x4
Building Lot Type
Up SiteView LotCorner Lot
Kitchen Features
Kitchen IslandNook/Breakfast AreaPeninsula/Eating BarEat-In Kitchen
Porches and Exterior Features
Covered Front PorchCovered Rear Porch
Master Suite Features
Main Floor MasterMaster BathroomWalk In ClosetSplit Master Bedroom

What’s Included

Most plan sets include the following:

icon text-secondary-400 includedFoundation Plan

icon text-secondary-400 includedFloor Plans

icon text-secondary-400 includedFraming Plans

icon text-secondary-400 includedExterior Elevations

icon text-secondary-400 includedRoof Plan

icon text-secondary-400 includedTypical Building Section

icon text-secondary-400 includedTypical Foundation Details

icon text-secondary-400 includedWall Section

icon text-secondary-400 includedElectrical Layout

What’s Not Included

These items are  NOT included:

icon text-secondary-400 includedArchitectural or Engineering Stamp - handled locally if required.

icon text-secondary-400 includedSite Plan - handled locally when required.

icon text-secondary-400 includedMechanical Drawings (location of heating and air equipment and ductwork) - your subcontractors handle this.

icon text-secondary-400 includedPlumbing Drawings (drawings showing the actual plumbing pipe sizes and locations) - your subcontractors handle this.

icon text-secondary-400 includedEnergy calculations - handled locally when required.

Related House Plans

Plan Collection
Plan Collection
Plan Collection
Plan#161-1030
Starting at$2950
6403
Sq Ft
2
Story
5
Bed
4.5
Bath
4
Car
Plan Collection
Plan Collection
Plan Collection
Plan#161-1022
Starting at$2650
5711
Sq Ft
2
Story
5
Bed
4.5
Bath
3
Car
Plan Collection
Plan Collection
Plan Collection
Plan#161-1075
Starting at$3400
4784
Sq Ft
2
Story
5
Bed
4.5
Bath
3
Car
View All

Other Plans By This Designer

Plan Collection
Plan Collection
Plan Collection
Plan#180-1033
Starting at$2400
8126
Sq Ft
3
Story
5
Bed
5.5
Bath
4
Car
Plan Collection
Plan Collection
Plan Collection
Plan#180-1043
Starting at$2400
9104
Sq Ft
2
Story
5
Bed
6.5
Bath
3
Car
Plan Collection
Plan Collection
Plan Collection
Plan#180-1012
Starting at$1350
2894
Sq Ft
2
Story
4
Bed
3.5
Bath
2
Car