3-Bedroom, 5103 Sq Ft Tudor Plan with Hearth Room

Front elevation of Tudor home (ThePlanCollection: House Plan #168-1147)

Images/Plans copyrighted by designer. Photos may reflect homeowner modifications.

About House Plan #168-1147

Sq Ft
5103
Sq Ft
Bedrooms
3
Bedrooms
Bathroom
2
Baths
Half Baths
1
Half Baths
Bedrooms
2
Cars
Bedrooms
2
Stories
Bedrooms
88' 0'
Width
Bedrooms
46
Depth
Starting at$2800.00What's included
STEP 1Bedrooms
STEP 2Bedrooms
STEP 3Bedrooms

Subtotal:$0
Plan Collection

How much will it cost to build?

Estimate your costs based on your location and materials.

Free Cost Instant Estimator

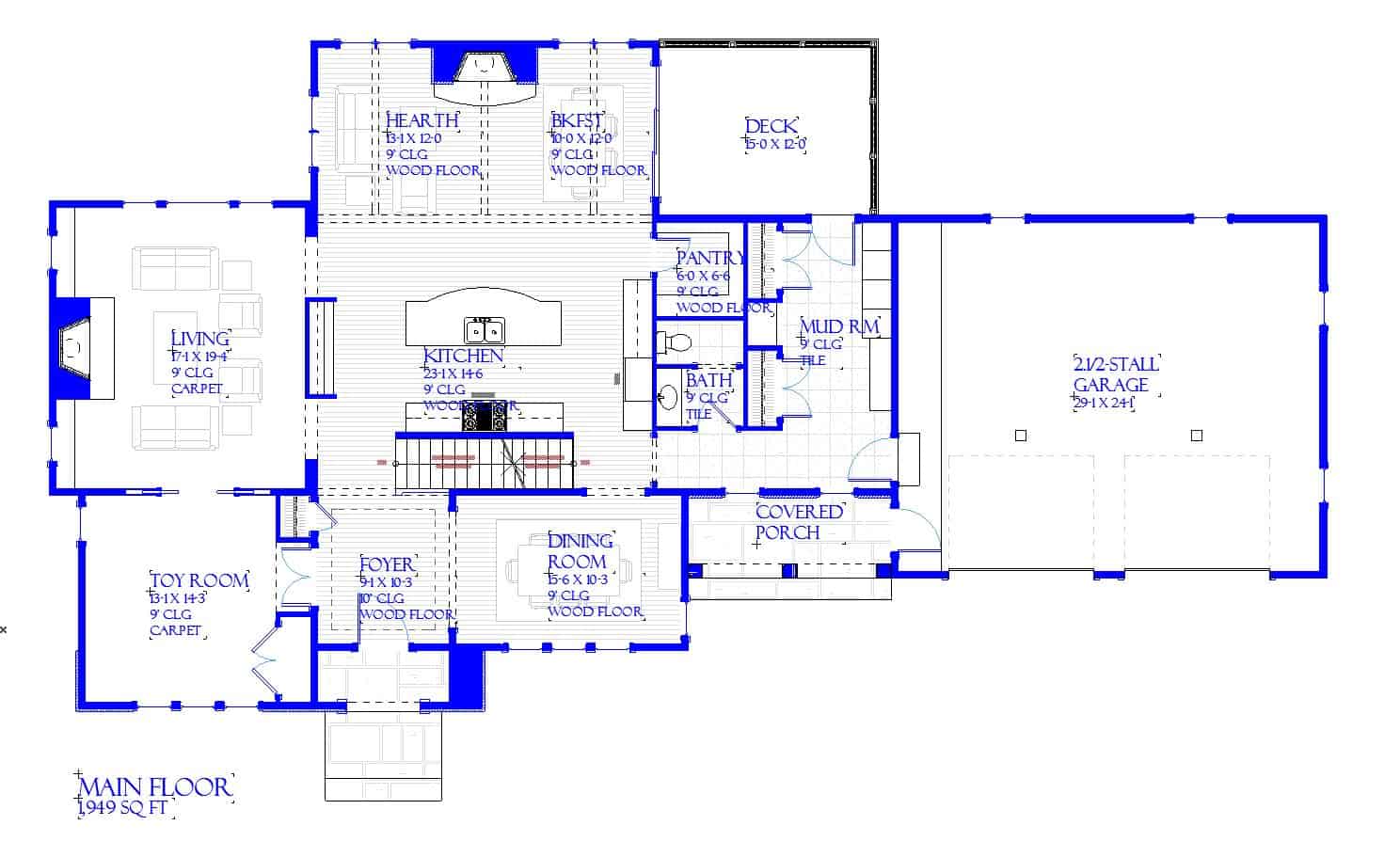
Floor Plans

Main Level
Main Level
Upper Level
Upper Level
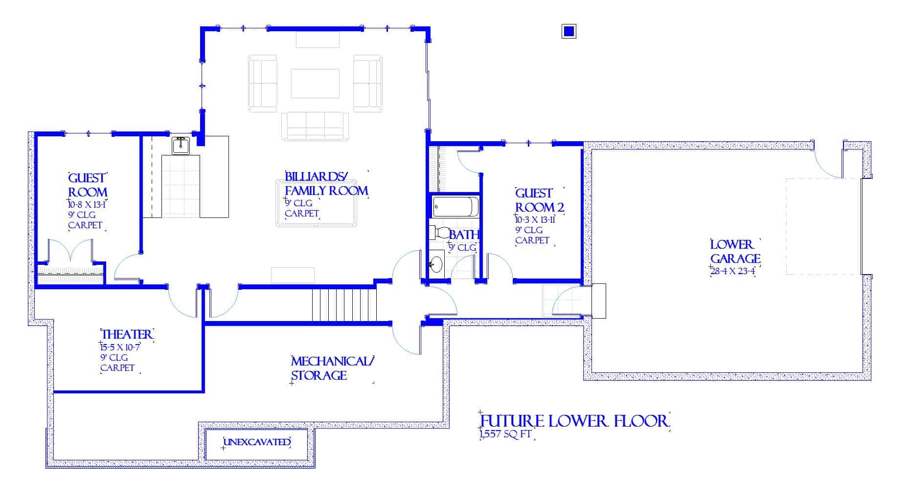
Basement Option Layout
Basement Option Layout
Plan Collection

Can I modify this plan?

Yes! This plan can be customized—contact us for a free quote.

House Plan Description

This remarkable Traditional home with Tudor elements is 5,103 square feet with 3 bedrooms, 2.5 baths, and a 2-car garage. Among the fabulous amenities you'll find in this splendid home are:

  • Living Room, Hearth Room, Toy Room
  • Open Floor Plan
  • Kitchen with Walk-in Pantry and Breakfast Area
  • Master Bedroom with SItting Room and Walk-in Closet
  • Optional Finished Basement with Billiards/Family Room, Theater Room, and 2 Guest Rooms
  • Optional Attic Storage

Home Details

Summary
Plan #:168-1147
Starting at:$2800.00
Floors:2
Bedrooms:3
Full Baths:2
Half Baths:1
Garage:
Square Footage
Heated Area:5103 Sq. Ft.
Basement:1557 Sq. Ft.
First Floor:1949 Sq. Ft.
Second Floor:1597 Sq. Ft.
Unheated Area:
Dimensions
Architectural Styles
Exterior Wall Material
Vinyl SidingBrickRock/StoneBoard and Batten
Roofing Type
Gable/Dormer
Roofing Material
Asphalt Shingles
Roof Pitch
12/12
Ceiling Height
9 Foot Ceiling
Special Feature
FireplaceDining RoomGuest RoomMud RoomFamily RoomGame RoomColor PhotosStorageSecond Level LaundryOpen Floor Plan
Garage Type
Side Entry
Fireplaces
Two Fireplaces
Exterior Wall Framing
2x6
Building Lot Type
Down Site
Kitchen Features
Kitchen IslandNook/Breakfast AreaWalk-in Pantry
Porches and Exterior Features
Covered Front PorchCovered Rear Porch
Master Suite Features
Master BathroomWalk In ClosetSecond Floor Master

What’s Included

Most plan sets include the following:

icon text-secondary-400 includedTitle Sheet

icon text-secondary-400 includedFloor Plans

icon text-secondary-400 includedWindow & Door Sizes

icon text-secondary-400 includedExterior Elevations

icon text-secondary-400 includedBuilding and/or Wall sections

icon text-secondary-400 includedRoof plans

icon text-secondary-400 includedFoundation Plans

What’s Not Included

These items are  NOT included:

icon text-secondary-400 includedArchitectural or Engineering Stamp - handled locally if required.

icon text-secondary-400 includedSite Plan - handled locally when required.

icon text-secondary-400 includedMechanical Drawings (location of heating and air equipment and duct work) - your subcontractors handle this.

icon text-secondary-400 includedPlumbing Drawings (drawings showing the actual plumbing pipe sizes and locations) - your subcontractors handle this.

icon text-secondary-400 includedEnergy calculations - handled locally when required.

Related House Plans

Plan Collection
Plan Collection
Plan Collection
Plan#161-1076
Starting at$3400
4531
Sq Ft
2
Story
3
Bed
2.5
Bath
4
Car
Plan Collection
Plan Collection
Plan Collection
Plan#153-1577
Starting at$2050
5293
Sq Ft
2
Story
3
Bed
2.5
Bath
2
Car
Plan Collection
Plan Collection
Plan Collection
Plan#108-1133
Starting at$2650
5808
Sq Ft
2
Story
3
Bed
2.5
Bath
6
Car
View All

Other Plans By This Designer

Plan Collection
Plan Collection
Plan Collection
Plan#168-1132
Starting at$3050
4580
Sq Ft
2
Story
5
Bed
5
Bath
3
Car
Plan Collection
Plan Collection
Plan Collection
Plan#168-1129
Starting at$2500
1930
Sq Ft
2
Story
3
Bed
2.5
Bath
2
Car
Plan Collection
Plan Collection
Plan Collection
Plan#168-1099
Starting at$2600
2609
Sq Ft
2
Story
4
Bed
3.5
Bath
3
Car