4-Bedroom, 4855 Sq Ft Mediterranean Plan with Dining Room

Front elevation of Mediterranean home (ThePlanCollection: House Plan #107-1214)

Images/Plans copyrighted by designer. Photos may reflect homeowner modifications.

About House Plan #107-1214

Sq Ft
4855
Sq Ft
Bedrooms
4
Bedrooms
Bathroom
4
Baths
Half Baths
2
Half Baths
Bedrooms
2
Cars
Bedrooms
2
Stories
Bedrooms
75' 3'
Width
Bedrooms
71
Depth
Starting at$1600.00What's included
STEP 1Bedrooms
STEP 2Bedrooms
STEP 3Bedrooms

Subtotal:$0
Plan Collection

How much will it cost to build?

Estimate your costs based on your location and materials.

Free Cost Instant Estimator

Floor Plans

FIRST LEVEL FLOOR PLAN
FIRST LEVEL FLOOR PLAN
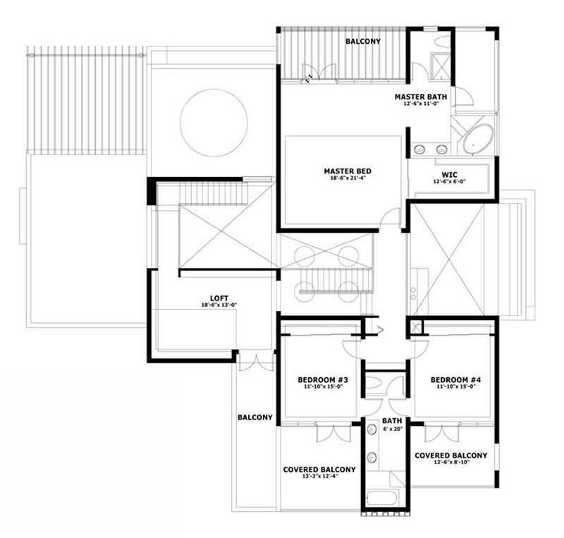
SECOND LEVEL FLOOR PLAN
SECOND LEVEL FLOOR PLAN
Plan Collection

Can I modify this plan?

Yes! This plan can be customized—contact us for a free quote.

House Plan Description

This home plan offers a Covered Entry with French doors to Foyer Living Room with access to Patio Dining Room with circle recessed ceiling and access to Patio Kitchen with island range open to Breakfast Room with access to Rear Covered Patio Cabana with Sauna nearby Bedroom 2 with private bath Family Room with bar, fireplace and French doors Laundry Room with sink Sewing Room with bath Upper Floor Loft Master Suite with box ceiling, walk-in closet and access to private balcony Master Bath with corner whirlpool bath, shower and two vanities Bedroom 3 and 4 with private bath access and...

Home Details

Summary
Plan #:107-1214
Starting at:$1600.00
Floors:2
Bedrooms:4
Full Baths:4
Half Baths:2
Garage:
Square Footage
Heated Area:4855 Sq. Ft.
First Floor:3048 Sq. Ft.
Second Floor:1807 Sq. Ft.
Unheated Area:
Garage:536 Sq. Ft.
Dimensions
Width:75' 3''
Depth:71' 9''
Ridge Height:30' 0''
Architectural Styles
Ceiling Height
9 Foot Ceiling
Special Feature
FireplaceDining RoomFamily Room
Garage Type
Attached Garage
Fireplaces
One Fireplace

What’s Included

Most plan sets include the following:

icon text-secondary-400 includedFloor plan

icon text-secondary-400 includedKitchen & Bath layout

icon text-secondary-400 includedExterior elevations

icon text-secondary-400 includedSections

icon text-secondary-400 includedStructural plans

icon text-secondary-400 includedFoundation plan

icon text-secondary-400 includedRoof plan

icon text-secondary-400 includedMechanical layout

icon text-secondary-400 includedElectrical layout

What’s Not Included

These items are  NOT included:

icon text-secondary-400 includedArchitectural or Engineering Stamp - handled locally if required.

icon text-secondary-400 includedSite Plan - handled locally when required.

icon text-secondary-400 includedMechanical Drawings (location of heating and air equipment and ductwork) - your subcontractors handle this.

icon text-secondary-400 includedPlumbing Drawings (drawings showing the actual plumbing pipe sizes and locations) - your subcontractors handle this.

icon text-secondary-400 includedEnergy calculations - handled locally when required.

Related House Plans

Plan Collection
Plan Collection
Plan Collection
Plan#107-1015
Starting at$1800
5555
Sq Ft
2
Story
4
Bed
4.5
Bath
3
Car
Plan Collection
Plan Collection
Plan Collection
Plan#175-1064
Starting at$2300
5841
Sq Ft
2
Story
4
Bed
4.5
Bath
3
Car
Plan Collection
Plan Collection
Plan Collection
Plan#134-1011
Starting at$0
3732
Sq Ft
2
Story
4
Bed
4
Bath
2
Car
View All

Other Plans By This Designer

Plan Collection
Plan Collection
Plan Collection
Plan#107-1002
Starting at$1900
6175
Sq Ft
2
Story
6
Bed
7.5
Bath
4
Car
Plan Collection
Plan Collection
Plan Collection
Plan#107-1096
Starting at$1150
1619
Sq Ft
1
Story
3
Bed
2
Bath
2
Car
Plan Collection
Plan Collection
Plan Collection
Plan#107-1182
Starting at$1900
6412
Sq Ft
2
Story
7
Bed
7.5
Bath
3
Car