5-Bedroom, 4827 Sq Ft Luxury Plan with Interior Photos

Luxury country-style home design (ThePlanCollection: House Plan #153-1021)

Images/Plans copyrighted by designer. Photos may reflect homeowner modifications.

About House Plan #153-1021

Sq Ft
4827
Sq Ft
Bedrooms
5
Bedrooms
Bathroom
3
Baths
Half Baths
1
Half Baths
Bedrooms
3
Cars
Bedrooms
1.5
Stories
Bedrooms
97' 8'
Width
Bedrooms
64
Depth
Starting at$1550.00What's included
STEP 1Bedrooms
STEP 2Bedrooms
STEP 3Bedrooms

Subtotal:$0
Plan Collection

How much will it cost to build?

Estimate your costs based on your location and materials.

Free Cost Instant Estimator

Floor Plans

Floor Plan Main Level
Floor Plan Main Level
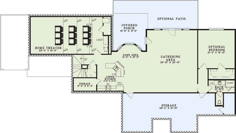
Lower Level
Lower Level
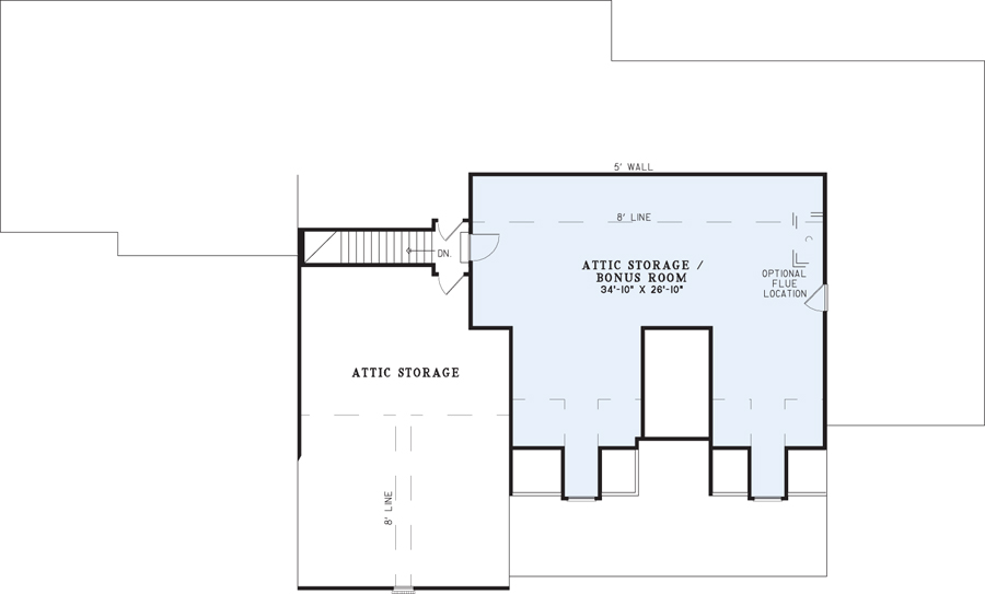
Floor Plan Upper Level
Floor Plan Upper Level
Plan Collection

Can I modify this plan?

Yes! This plan can be customized—contact us for a free quote.

Additional Notes from Designer

Plans by this designer do NOT usually come with FRAMING - some plans may have framing available for an extra fee - please contact us to find out about a specific plan & we will check with the designer!! Additionally: For this designer, if you choose optional features such as but not limited to: 2x6 framing, reverse or optional basement, the designer will need an additional 2-5 business days to adjust the plan accordingly. Please keep this in mind when choosing your shipping option. If you would like Express or Priority shipping, the designer will ship the plan to you using the method you choose but you will still have the 2-5 business day waiting period BEFORE they ship! Please feel free to contact us with any questions! PLEASE NOTE: Multi-licenses are available. The plans do not come with ICF specifications. If ICF construction method is desired, the CAD plan can be purchased and then forwarded to the ICF dealer and they’ll do a takeoff to assist with that specific projec

House Plan Description

This beautiful country-style home mixes a variety of architectural elements -- stone, painted brick, copper -- to create a unique and coveted design. As you walk up the path towards the home, the arched entryway flanked by pairs of columns across the porch provides an elegant entrance. Once you step inside the foyer, its twelve-foot ceilings offer an impressive entry to the great room or formal dining room. The kichen boasts an eating bar next to the breakfast room. For warmer days, enjoy the screened porch just steps away.

Looking for some fun? Head down to the walk-out...

Home Details

Summary
Plan #:153-1021
Starting at:$1550.00
Floors:1.5
Bedrooms:5
Full Baths:3
Half Baths:1
Garage:
Square Footage
Heated Area:4827 Sq. Ft.
Basement:2059 Sq. Ft.
First Floor:2768 Sq. Ft.
Unheated Area:
Bonus Room:913 Sq. Ft.
Garage:807 Sq. Ft.
Porch:838 Sq. Ft.
Dimensions
Width:97' 8''
Depth:64' 6''
Ridge Height:25' 0''
Architectural Styles
Exterior Wall Material
BrickStuccoRock/Stone
Roofing Type
Gable
Roofing Material
Asphalt ShinglesMetal
Roof Pitch
8/12
Ceiling Height
10 Foot Ceiling9 Foot Ceiling8 Foot Ceiling12 Foot Ceiling
Special Feature
FireplaceDining RoomBonus RoomFamily RoomGame RoomMain Level LaundryHome TheaterMedia RoomColor PhotosStorageOpen Floor PlanInterior Photos
Garage Type
Attached GarageSide Entry
Fireplaces
One Fireplace
Exterior Wall Framing
2x4
Building Lot Type
Down SiteCorner Lot
Kitchen Features
Kitchen IslandNook/Breakfast AreaOutdoor KitchenPeninsula/Eating BarEat-In KitchenSecondary Kitchen
Porches and Exterior Features
Covered Front PorchSundeckScreened Porch/Sunroom
Master Suite Features
Main Floor MasterMaster BathroomWalk In ClosetSplit Master Bedroom

What’s Included

Most plan sets include the following:

icon text-secondary-400 included floorplan

icon text-secondary-400 included 4 side exterior elevations,

icon text-secondary-400 included electrical plan,

icon text-secondary-400 included birds-eye view of the roof,

icon text-secondary-400 included foundation plan,

icon text-secondary-400 included and some miscellaneous details. Please Note We do not offer plumbing, HVAC, or window scheduling. This will have to be done on a local level, probably by your building team!

What’s Not Included

These items are  NOT included:

icon text-secondary-400 includedArchitectural or Engineering Stamp - handled locally if required.

icon text-secondary-400 includedSite Plan - handled locally when required.

icon text-secondary-400 includedMechanical Drawings (location of heating and air equipment and ductwork) - your subcontractors handle this.

icon text-secondary-400 includedPlumbing Drawings (drawings showing the actual plumbing pipe sizes and locations) - your subcontractors handle this.

icon text-secondary-400 includedEnergy calculations - handled locally when required.

Related House Plans

Plan Collection
Plan Collection
Plan Collection
Plan#142-1134
Starting at$1945
3891
Sq Ft
1.5
Story
5
Bed
3.5
Bath
2
Car
Plan Collection
Plan Collection
Plan Collection
Plan#153-1609
Starting at$1550
4131
Sq Ft
1.5
Story
5
Bed
3
Bath
3
Car
Plan Collection
Plan Collection
Plan Collection
Plan#100-1262
Starting at$2600
5865
Sq Ft
1.5
Story
5
Bed
3.5
Bath
3
Car
View All

Other Plans By This Designer

Plan Collection
Plan Collection
Plan Collection
Plan#153-1432
Starting at$1200
2096
Sq Ft
1
Story
3
Bed
2.5
Bath
3
Car
Plan Collection
Plan Collection
Plan Collection
Plan#153-1744
Starting at$800
1800
Sq Ft
1
Story
3
Bed
2
Bath
2
Car
Plan Collection
Plan Collection
Plan Collection
Plan#153-1608
Starting at$700
1382
Sq Ft
1
Story
3
Bed
2
Bath
2
Car