1-Bedroom, 4823 Sq Ft Contemporary Plan with Family Room

Front elevation of Contemporary home (ThePlanCollection: House Plan #162-1003)

Images/Plans copyrighted by designer. Photos may reflect homeowner modifications.

About House Plan #162-1003

Sq Ft
4823
Sq Ft
Bedrooms
1
Bedrooms
Bathroom
3
Baths
Half Baths
1
Half Baths
Bedrooms
3
Cars
Bedrooms
1
Stories
Bedrooms
76' 6'
Width
Bedrooms
69
Depth
Starting at$1500.00What's included
STEP 1Bedrooms
STEP 2Bedrooms
STEP 3Bedrooms

Subtotal:$0
Plan Collection

How much will it cost to build?

Estimate your costs based on your location and materials.

Free Cost Instant Estimator

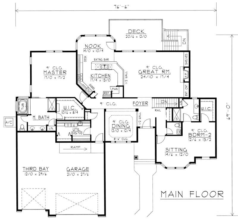
Floor Plans

Main Floor Plan
Main Floor Plan
Basement Floor Plan
Basement Floor Plan
Plan Collection

Can I modify this plan?

Yes! This plan can be customized—contact us for a free quote.

House Plan Description

This home is perfect for a large family that wants to fit all the luxurious amenities in a neighborhood lot. All the rooms are large and spacious and the main floor has nine-foot-high ceilings. The master suite is comfortably big and the master bath features a lavish spa. Across the house is a large guest room/mother-in-law suite with a private bath and sitting area. The kitchen enjoys plenty of storage and counter space. The basement is finished with a family room, kitchenette, and five more bedrooms.

Home Details

Summary
Plan #:162-1003
Starting at:$1500.00
Floors:1
Bedrooms:1
Full Baths:3
Half Baths:1
Garage:
Square Footage
Heated Area:4823 Sq. Ft.
First Floor:2583 Sq. Ft.
Unheated Area:
Basement:2240 Sq. Ft.
Garage:988 Sq. Ft.
Dimensions
Width:76' 6''
Ridge Height:19'3' 0''
Architectural Styles
Exterior Wall Material
BrickWood Siding
Roofing Type
Hip
Roof Pitch
6/12
Ceiling Height
9 Foot Ceiling8 Foot Ceiling
Special Feature
Guest RoomFamily Room
Garage Type
Attached GarageFront Entry
Fireplaces
Two Fireplaces
Exterior Wall Framing
2x6

What’s Included

Most plan sets include the following:

icon text-secondary-400 includedExterior Elevations

icon text-secondary-400 includedFloor Plans

icon text-secondary-400 includedFoundation Plan

icon text-secondary-400 includedRoof Framing Plan

icon text-secondary-400 includedBuilding Sections

icon text-secondary-400 includedWall Sections

icon text-secondary-400 includedStair Detail

icon text-secondary-400 includedCabinet Elevations

icon text-secondary-400 includedNotes

icon text-secondary-400 includedElectrical Layout

icon text-secondary-400 includedDoor & Window Sizes

What’s Not Included

These items are  NOT included:

icon text-secondary-400 includedArchitectural or Engineering Stamp - handled locally if required.

icon text-secondary-400 includedSite Plan - handled locally when required.

icon text-secondary-400 includedMechanical Drawings (location of heating and air equipment and ductwork) - your subcontractors handle this.

icon text-secondary-400 includedPlumbing Drawings (drawings showing the actual plumbing pipe sizes and locations) - your subcontractors handle this.

icon text-secondary-400 includedEnergy calculations - handled locally when required.

Other Plans By This Designer

Plan Collection
Plan Collection
Plan Collection
Plan#162-1039
Starting at$1500
4219
Sq Ft
1
Story
4
Bed
3
Bath
3
Car
Plan Collection
Plan Collection
Plan Collection
Plan#162-1028
Starting at$1100
2059
Sq Ft
2
Story
3
Bed
2.5
Bath
2
Car
Plan Collection
Plan Collection
Plan Collection
Plan#162-1037
Starting at$1500
4466
Sq Ft
1
Story
4
Bed
4.5
Bath
3
Car