4-Bedroom, 4768 Sq Ft Contemporary Plan with Butler's Pantry

Front elevation of Contemporary home (ThePlanCollection: House Plan #195-1340)

Images/Plans copyrighted by designer. Photos may reflect homeowner modifications.

About House Plan #195-1340

Sq Ft
4768
Sq Ft
Bedrooms
4
Bedrooms
Bathroom
4
Baths
Half Baths
1
Half Baths
Bedrooms
3
Cars
Bedrooms
2
Stories
Bedrooms
102' 0'
Width
Bedrooms
109
Depth
Starting at$1650.00What's included
STEP 1Bedrooms
STEP 2Bedrooms
STEP 3Bedrooms

Subtotal:$0
Plan Collection

How much will it cost to build?

Estimate your costs based on your location and materials.

Free Cost Instant Estimator

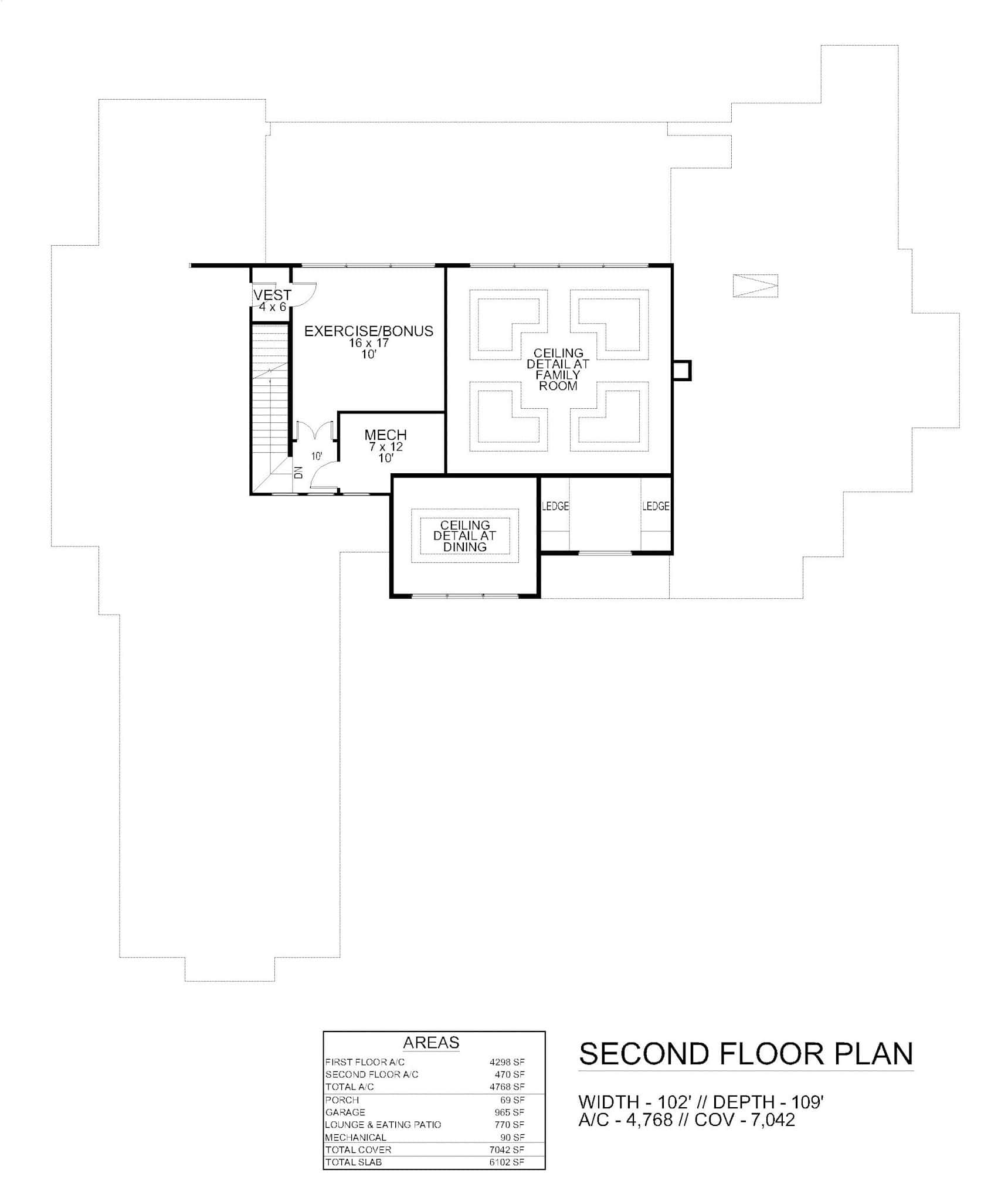
Floor Plans

Main Level
Main Level
Upper Level
Upper Level
Plan Collection

Can I modify this plan?

Yes! This plan can be customized—contact us for a free quote.

Additional Notes from Designer

This designer does not offer ICF!

PLEASE NOTE: The designer indicates that the exterior framing is both 2x4 and 2x6. At the exterior walls which are 2-story, the framing is 2x6 otherwise the exterior framing is 2x4.

House Plan Description

This luxurious contemporary house plan offers 4 bedrooms, 4.1 baths, over 4,700 square feet of living space and these fantastic amenities:

  • Game Room
  • Luxurious Owner's Suite with Huge Walk-In Closet
  • Spacious Kitchen with Island & Butler's Pantry
  • Storage/Secret Room

 

Home Details

Summary
Plan #:195-1340
Starting at:$1650.00
Floors:2
Bedrooms:4
Full Baths:4
Half Baths:1
Garage:
Square Footage
Heated Area:4768 Sq. Ft.
First Floor:4298 Sq. Ft.
Second Floor:470 Sq. Ft.
Unheated Area:
Bonus Room:470 Sq. Ft.
Garage:965 Sq. Ft.
Porch:839 Sq. Ft.
Dimensions
Architectural Styles
Exterior Wall Material
Stucco
Roofing Type
Hip
Roofing Material
Metal
Roof Pitch
3/126/12
Ceiling Height
10 Foot Ceiling
Special Feature
FireplaceDining RoomGuest RoomHome OfficeMud RoomBonus RoomGame RoomMain Level LaundryStorageExercise RoomOpen Floor Plan
Garage Type
Attached GarageCourtyard Entry
Fireplaces
One Fireplace
Exterior Wall Framing
2x62x4
Kitchen Features
Kitchen IslandButler's PantryWalk-in Pantry
Porches and Exterior Features
Covered Front PorchCovered Rear Patio
Master Suite Features
Main Floor MasterMaster BathroomWalk In Closet

What’s Included

Most plan sets include the following:

icon text-secondary-400 includedDimension Plan

icon text-secondary-400 includedNotation Plan

icon text-secondary-400 includedElectrical Layout

icon text-secondary-400 includedElevations

icon text-secondary-400 includedRoof Plan

icon text-secondary-400 includedGeneral Specifications

icon text-secondary-400 includedGeneral Details

What’s Not Included

These items are  NOT included:

icon text-secondary-400 includedArchitectural or Engineering Stamp - handled locally if required.

icon text-secondary-400 includedSite Plan - handled locally when required.

icon text-secondary-400 includedMechanical Drawings (location of heating and air equipment and ductwork) - your subcontractors handle this.

icon text-secondary-400 includedPlumbing Drawings (drawings showing the actual plumbing pipe sizes and locations) - your subcontractors handle this.

icon text-secondary-400 includedEnergy calculations - handled locally when required.

Related House Plans

Plan Collection
Plan Collection
Plan Collection
Plan#161-1017
Starting at$3400
4587
Sq Ft
2
Story
4
Bed
4.5
Bath
4
Car
Plan Collection
Plan Collection
Plan Collection
Plan#107-1015
Starting at$1800
5555
Sq Ft
2
Story
4
Bed
4.5
Bath
3
Car
Plan Collection
Plan Collection
Plan Collection
Plan#175-1064
Starting at$2300
5841
Sq Ft
2
Story
4
Bed
4.5
Bath
3
Car
View All

Other Plans By This Designer

Plan Collection
Plan Collection
Plan Collection
Plan#195-1216
Starting at$3295
7587
Sq Ft
2
Story
5
Bed
6.5
Bath
3
Car
Plan Collection
Plan Collection
Plan Collection
Plan#195-1307
Starting at$7995
12720
Sq Ft
2
Story
5
Bed
6.5
Bath
5
Car
Plan Collection
Plan Collection
Plan Collection
Plan#195-1127
Starting at$9995
14727
Sq Ft
2
Story
9
Bed
8.5
Bath
9
Car