4-Bedroom, 4169 Sq Ft Contemporary Plan with Formal Dining Room

Front elevation of Contemporary home (ThePlanCollection: House Plan #202-1039)

Images/Plans copyrighted by designer. Photos may reflect homeowner modifications.

About House Plan #202-1039

Sq Ft
4169
Sq Ft
Bedrooms
4
Bedrooms
Bathroom
4
Baths
Half Baths
1
Half Baths
Bedrooms
3
Cars
Bedrooms
2
Stories
Bedrooms
89' 8'
Width
Bedrooms
112
Depth
Starting at$2195.00What's included
STEP 1Bedrooms
STEP 2Bedrooms
STEP 3Bedrooms

Subtotal:$0
Plan Collection

How much will it cost to build?

Estimate your costs based on your location and materials.

Free Cost Instant Estimator

Floor Plans

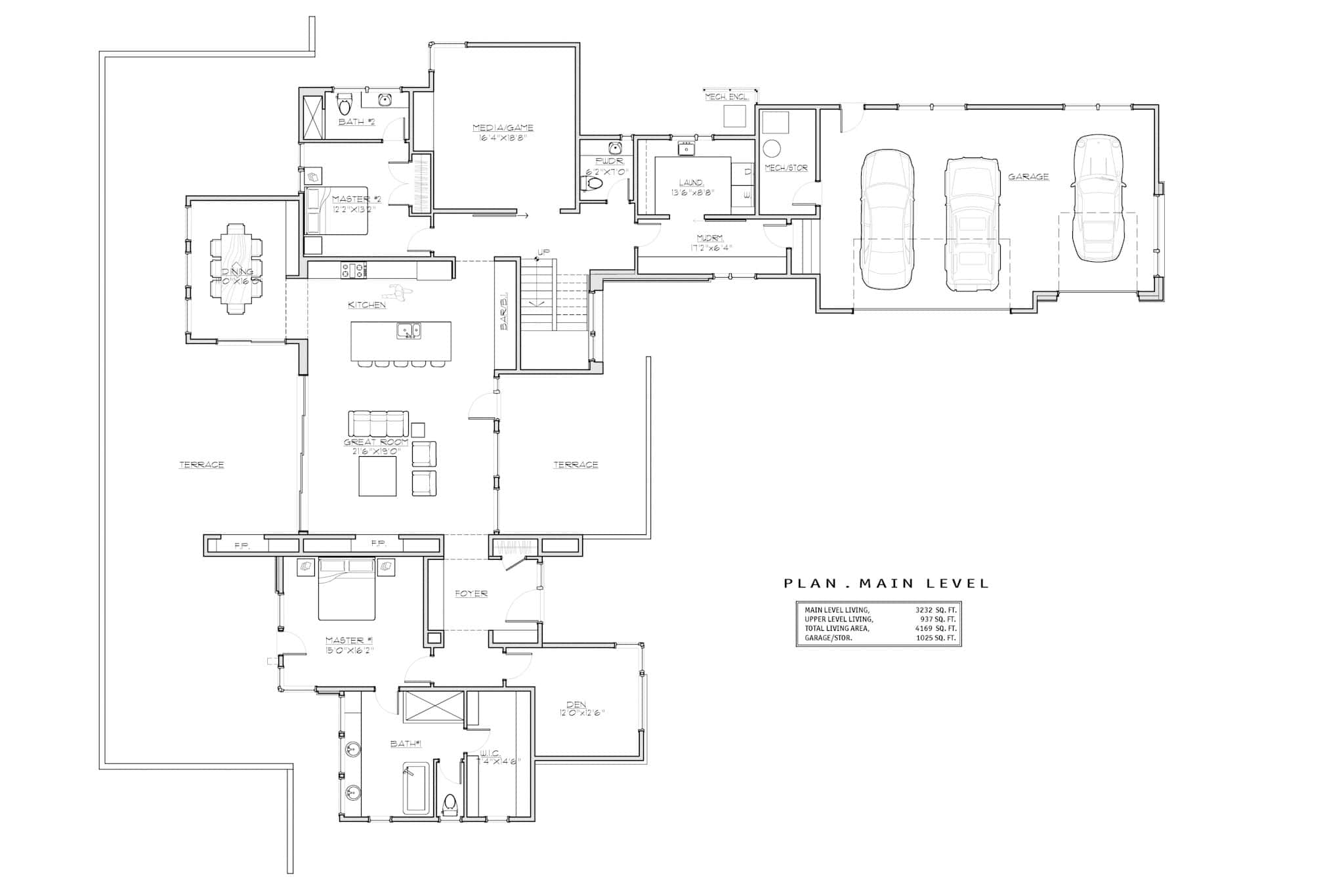
Main Level
Main Level
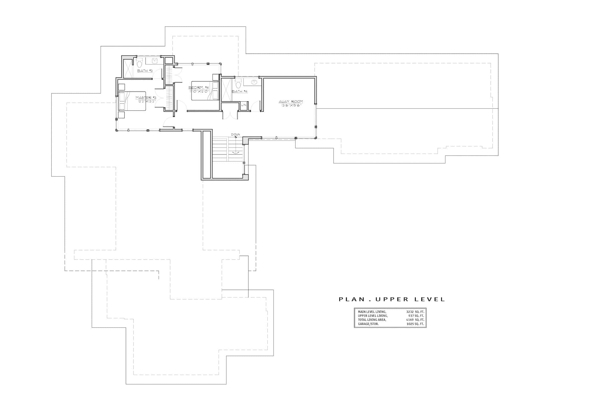
Upper Level
Upper Level
Plan Collection

Can I modify this plan?

Yes! This plan can be customized—contact us for a free quote.

House Plan Description

Graced by its Contemporary accents, this Modern style marvel encompasses 4,169 square feet, housing 4 bedrooms, 4.5 baths, and a 3-car garage. Additionally, the home offers a delightful selection of amenities:

  • Great Room, Den, Media/Game Room, Away Room, Dining Room
  • Main Floor Master Suite with Walk-in Closet, Master Bathroom

Home Details

Summary
Plan #:202-1039
Starting at:$2195.00
Floors:2
Bedrooms:4
Full Baths:4
Half Baths:1
Garage:
Square Footage
Heated Area:4169 Sq. Ft.
First Floor:3232 Sq. Ft.
Second Floor:937 Sq. Ft.
Unheated Area:
Garage:1025 Sq. Ft.
Dimensions
Width:89' 8''
Depth:112' 6''
Architectural Styles
Exterior Wall Material
Vinyl SidingRock/StoneWood SidingLap Siding
Roofing Type
Flat
Roofing Material
Metal
Roof Pitch
Other
Ceiling Height
9 Foot Ceiling
Special Feature
FireplaceDining RoomHome OfficeMud RoomFamily RoomGame RoomMain Level LaundryMedia RoomColor PhotosStorageDenVaulted CeilingsOpen Floor PlanInterior Photos
Garage Type
Attached GarageCourtyard Entry
Fireplaces
Two Fireplaces
Exterior Wall Framing
2x6
Building Lot Type
Flat Site
Kitchen Features
Kitchen IslandPeninsula/Eating Bar
Porches and Exterior Features
Covered Front PorchCovered Rear Porch
Master Suite Features
Main Floor MasterSplit Master Bedroom

What’s Included

Most plan sets include the following:

icon text-secondary-400 includedCover sheet with renderings or photos

icon text-secondary-400 includedSite plan sheet with an original site plan for reference

icon text-secondary-400 includedFloor plans

icon text-secondary-400 includedExterior elevations

icon text-secondary-400 includedSections

icon text-secondary-400 includedTypical detail sheets

icon text-secondary-400 includedStructural sheets

icon text-secondary-400 includedFoundation/floor framing

icon text-secondary-400 includedRoof framing

What’s Not Included

These items are  NOT included:

icon text-secondary-400 includedArchitectural or Engineering Stamp - handled locally if required.

icon text-secondary-400 includedSite Plan - handled locally when required.

icon text-secondary-400 includedMechanical Drawings (location of heating and air equipment and ductwork) - your subcontractors handle this.

icon text-secondary-400 includedPlumbing Drawings (drawings showing the actual plumbing pipe sizes and locations) - your subcontractors handle this.

icon text-secondary-400 includedEnergy calculations - handled locally when required.

Related House Plans

Plan Collection
Plan Collection
Plan Collection
Plan#161-1017
Starting at$3400
4587
Sq Ft
2
Story
4
Bed
4.5
Bath
4
Car
Plan Collection
Plan Collection
Plan Collection
Plan#142-1140
Starting at$1545
3360
Sq Ft
2
Story
4
Bed
4.5
Bath
3
Car
Plan Collection
Plan Collection
Plan Collection
Plan#106-1292
Starting at$1695
3302
Sq Ft
2
Story
4
Bed
4.5
Bath
5
Car
View All

Other Plans By This Designer

Plan Collection
Plan Collection
Plan Collection
Plan#202-1021
Starting at$1095
3217
Sq Ft
1.5
Story
5
Bed
3.5
Bath
2
Car
Plan Collection
Plan Collection
Plan Collection
Plan#202-1013
Starting at$995
3264
Sq Ft
1
Story
3
Bed
3.5
Bath
3
Car
Plan Collection
Plan Collection
Plan Collection
Plan#202-1017
Starting at$795
4412
Sq Ft
2
Story
5
Bed
5.5
Bath
3
Car