5-Bedroom, 3688 Sq Ft Farmhouse Plan with Sundeck

Front elevation of Farmhouse home (ThePlanCollection: House Plan #208-1033)

Images/Plans copyrighted by designer. Photos may reflect homeowner modifications.

About House Plan #208-1033

Sq Ft
3688
Sq Ft
Bedrooms
5
Bedrooms
Bathroom
5
Baths
Half Baths
1
Half Baths
Bedrooms
0
Cars
Bedrooms
2
Stories
Bedrooms
38' 6'
Width
Bedrooms
63
Depth
Starting at$1675.00What's included
STEP 1Bedrooms
STEP 2Bedrooms
STEP 3Bedrooms

Subtotal:$0
Plan Collection

How much will it cost to build?

Estimate your costs based on your location and materials.

Free Cost Instant Estimator

Floor Plans

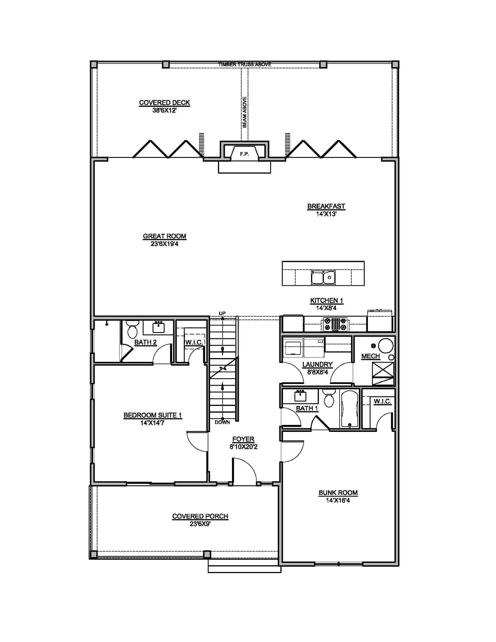
Main Level
Main Level
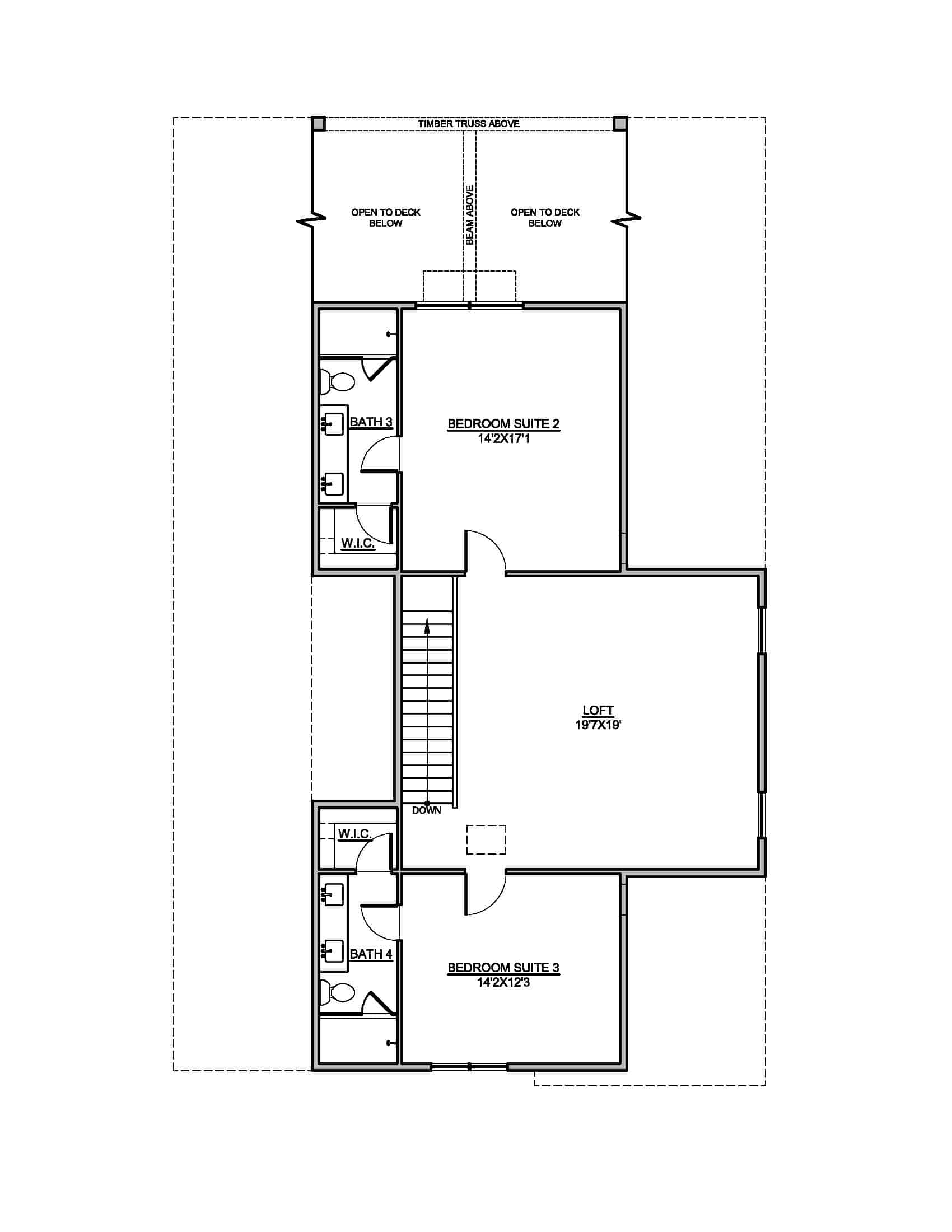
Upper Level
Upper Level
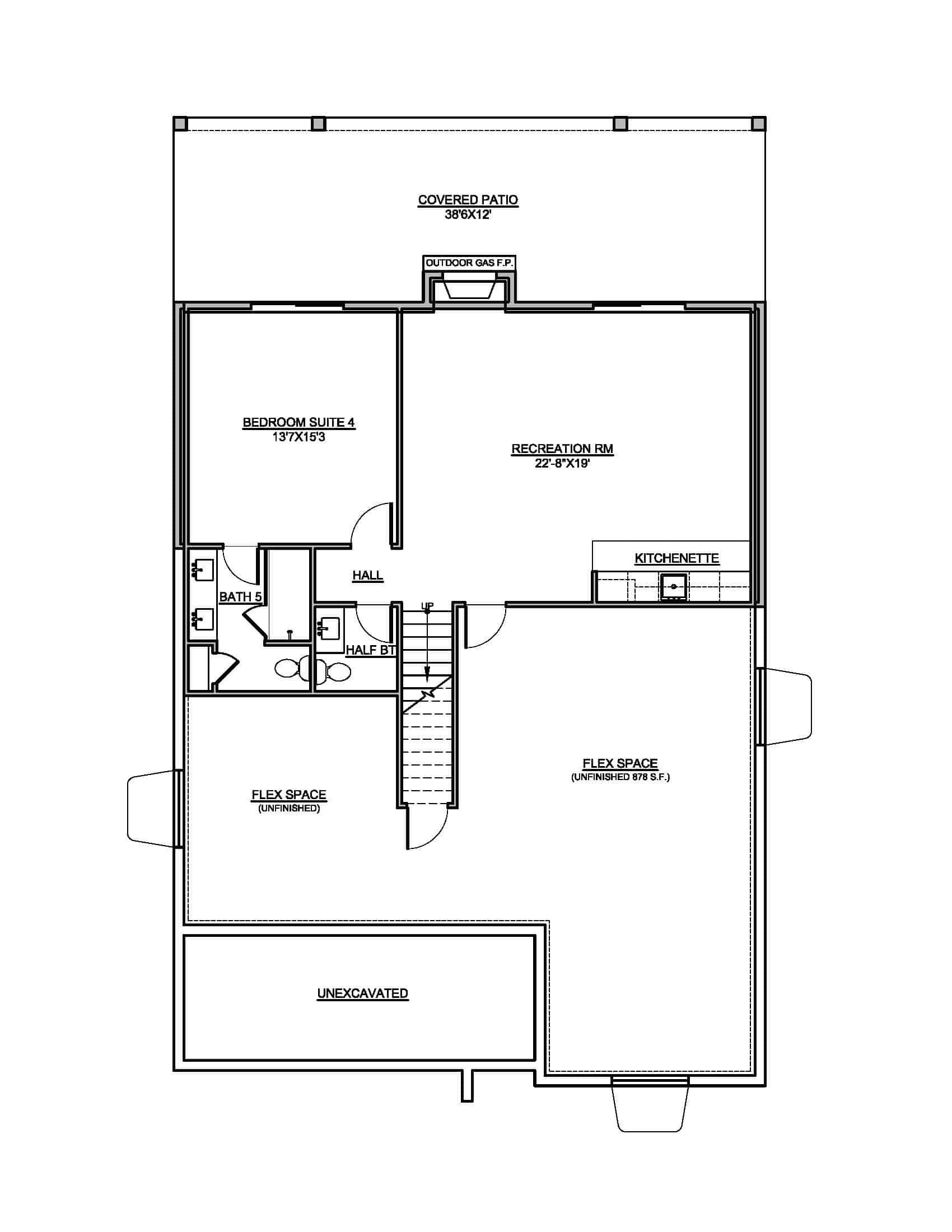
Basement
Basement
Plan Collection

Can I modify this plan?

Yes! This plan can be customized—contact us for a free quote.

Additional Notes from Designer

PLEASE NOTE: This designer's 5 sets, 8 sets & CADs all come with a PDF as well.

This single-family Farmhouse Style House Plan has 3688 living square feet, 5 bedrooms, and 5.5 bathrooms.

Porch Sq Ft figures may include any deck sq ft as well.

 

 

House Plan Description

Comfort and style await you with this adorable luxurious Farmhouse style home with Country characteristics. The awesome, cozy entry porch with turned columns, forward-facing gables, lovely windows, and timber accents in front give the house great curb appeal and make a lasting favorable impression. The pleasant home's 2-story floor plan has 3688 square feet of heated and cooled living space and includes these special amenities:

• Huge 5 bedrooms
• Recreation room
• Mechanical room

Home Details

Summary
Plan #:208-1033
Starting at:$1675.00
Floors:2
Bedrooms:5
Full Baths:5
Half Baths:1
Garage:
Square Footage
Heated Area:3688 Sq. Ft.
Basement:861 Sq. Ft.
First Floor:1740 Sq. Ft.
Second Floor:1070 Sq. Ft.
Unheated Area:
Basement:878 Sq. Ft.
Porch:1111 Sq. Ft.
Dimensions
Width:38' 6''
Architectural Styles
Exterior Wall Material
Vinyl SidingWood Siding
Roofing Type
Gable/Dormer
Roofing Material
Asphalt Shingles
Roof Pitch
12/124/12
Ceiling Height
9 Foot Ceiling
Special Feature
FireplaceFamily RoomMain Level LaundryLoftStorageOpen Floor Plan
Fireplaces
Two Fireplaces
Exterior Wall Framing
2x6
Building Lot Type
Narrow Lot Design
Kitchen Features
Kitchen IslandNook/Breakfast Area
Porches and Exterior Features
Covered Front PorchSundeck
Master Suite Features
Main Floor MasterMaster BathroomWalk In ClosetSplit Master Bedroom

What’s Included

Most plan sets include the following:

icon text-secondary-400 includedCover sheet with Rendering on front

icon text-secondary-400 includedGeneral IRC notes page

icon text-secondary-400 includedFront & Rear Elevation Page

icon text-secondary-400 includedLeft / Right elevation page

icon text-secondary-400 includedMonolithic foundation plan

icon text-secondary-400 includedMain Floor Plan – Wood Frame

icon text-secondary-400 includedRoof slope and drainage Plan

icon text-secondary-400 includedRoof Framing Plan (Truss)

icon text-secondary-400 includedBuilding Section (wood frame)

icon text-secondary-400 includedMain Electrical Plan

What’s Not Included

These items are  NOT included:

icon text-secondary-400 includedArchitectural or Engineering Stamp - handled locally if required.

icon text-secondary-400 includedSite Plan - handled locally when required.

icon text-secondary-400 includedMechanical Drawings (location of heating and air equipment and ductwork) - your subcontractors handle this.

icon text-secondary-400 includedPlumbing Drawings (drawings showing the actual plumbing pipe sizes and locations) - your subcontractors handle this.

icon text-secondary-400 includedEnergy calculations - handled locally when required.

Related House Plans

Plan Collection
Plan Collection
Plan Collection
Plan#202-1017
Starting at$795
4412
Sq Ft
2
Story
5
Bed
5.5
Bath
3
Car
Plan Collection
Plan Collection
Plan Collection
Plan#153-1121
Starting at$2050
4501
Sq Ft
2
Story
5
Bed
5.5
Bath
3
Car
Plan Collection
Plan Collection
Plan Collection
Plan#168-1132
Starting at$3050
4580
Sq Ft
2
Story
5
Bed
5
Bath
3
Car
View All

Other Plans By This Designer

Plan Collection
Plan Collection
Plan Collection
Plan#208-1005
Starting at$1145
1791
Sq Ft
1
Story
3
Bed
2
Bath
2
Car
Plan Collection
Plan Collection
Plan Collection
Plan#208-1025
Starting at$1145
2621
Sq Ft
1
Story
4
Bed
4.5
Bath
2
Car
Plan Collection
Plan Collection
Plan Collection
Plan#208-1027
Starting at$1145
1638
Sq Ft
1
Story
2
Bed
2
Bath
3
Car