Estimate your costs based on your location and materials.
Yes! This plan can be customized—contact us for a free quote.
Yes! This plan can be customized—contact us for a free quote.
The plans by this designer do NOT include framing. PLEASE NOTE: An Unlimited Use License is available for purchase through the designer BUT YOU MUST purchase a CAD package!
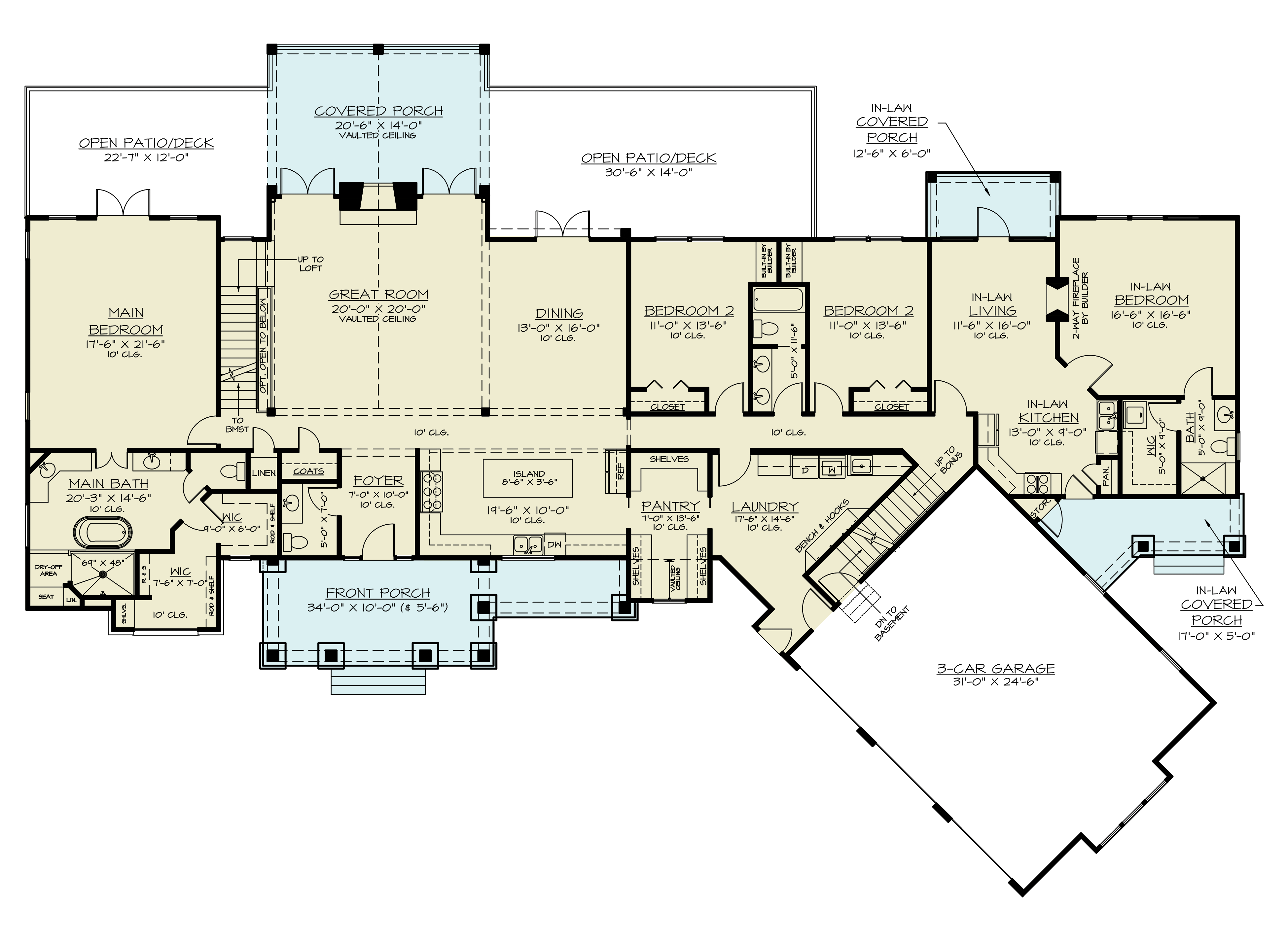
Spacious 4-bed, 3.5-bath, 3686 sq ft home designed for entertaining. Features an in-law suite that is 695 sq ft, an open floor plan, bonus room, kitchen island, mudroom, rear and front porch, and elegant dining space – perfect for hosting guests or accommodating parents. The home also has extra an storage capacity of 209 sq ft and a courtyard garage load.
Estimate your costs based on your location and materials.
All sales of house plans, modifications, and other products found on this site are final. No refunds or exchanges can be given once your order has begun the fulfillment process. Please see our Policies for additional information.
All plans offered on ThePlanCollection.com are designed to conform to the local building codes when and where the original plan was drawn.
The homes as shown in photographs and renderings may differ from the actual blueprints. For more detailed information, please review the floor plan images herein carefully.
Estimate your costs based on your location and materials.