Estimate your costs based on your location and materials.
Yes! This plan can be customized—contact us for a free quote.
Yes! This plan can be customized—contact us for a free quote.
PLEASE NOTE! If you order an optional foundation and a materials list, the materials list will NOT include the optional foundation, only the standard foundation. The designer can provide an updated materials list for a fee, so please ask for a quote!
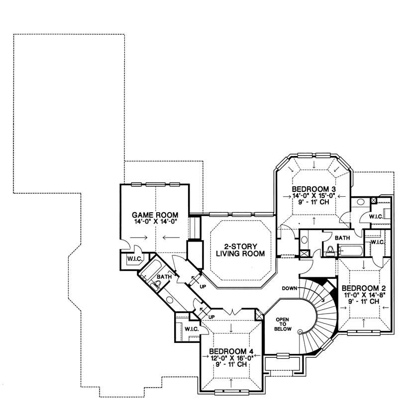
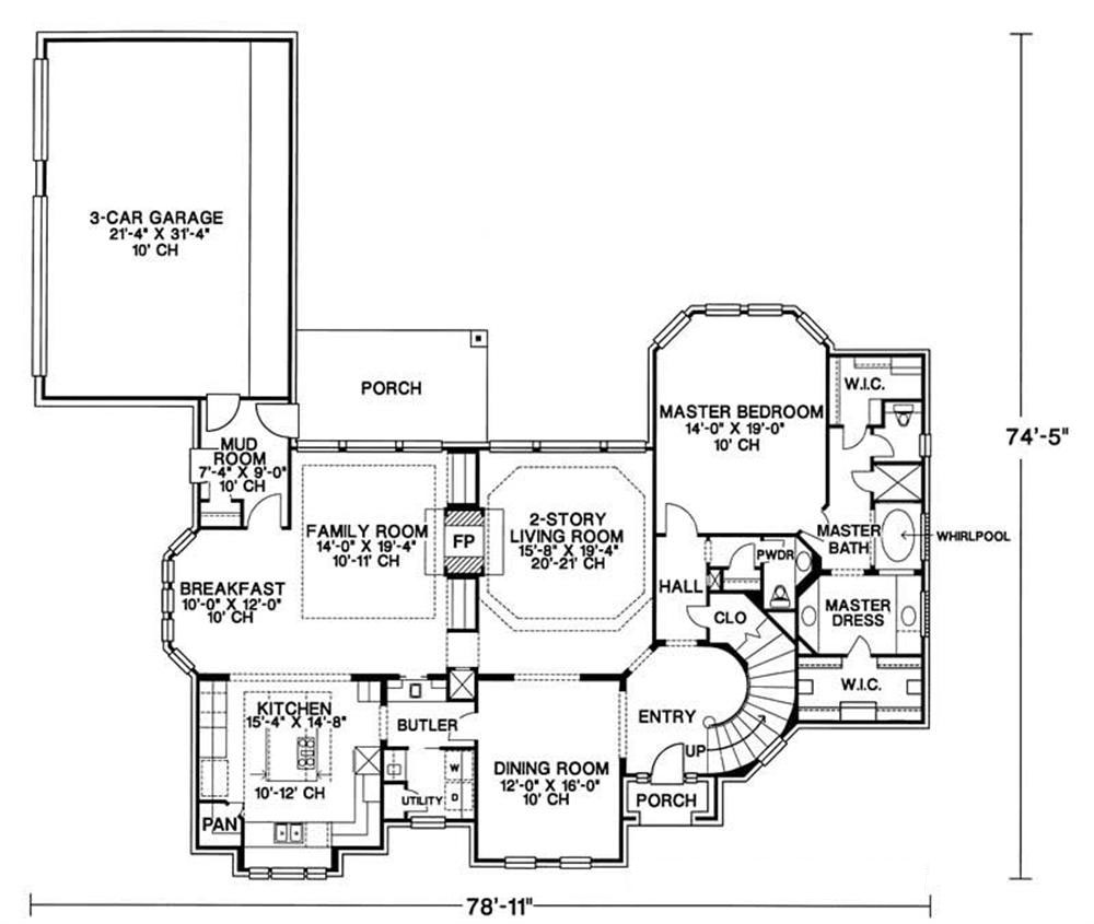
If you're looking for luxury and space, this two story European Style house plan is for you. The main level Master Bedroom is very roomy and has private entry to the Master Bath and two walk-in closets. You'll be sure to enjoy the great and spacious Dining Room, which is right next to the equally large Family Room and Living Room. The Living Room will be sure to give you a sense of openness with its 20-21 foot ceiling, yet will still keep home-like comfort due to its shared fireplace. The feeling of roominess also extends to the second story with 11 foot ceilings the three...
Estimate your costs based on your location and materials.
All sales of house plans, modifications, and other products found on this site are final. No refunds or exchanges can be given once your order has begun the fulfillment process. Please see our Policies for additional information.
All plans offered on ThePlanCollection.com are designed to conform to the local building codes when and where the original plan was drawn.
The homes as shown in photographs and renderings may differ from the actual blueprints. For more detailed information, please review the floor plan images herein carefully.
Estimate your costs based on your location and materials.