4-Bedroom, 3631 Sq Ft Spanish Plan with Sitting Area

Front elevation of Spanish home (ThePlanCollection: House Plan #156-2147)

Images/Plans copyrighted by designer. Photos may reflect homeowner modifications.

About House Plan #156-2147

Sq Ft
3631
Sq Ft
Bedrooms
4
Bedrooms
Bathroom
3
Baths
Half Baths
0
Half Baths
Bedrooms
2
Cars
Bedrooms
3
Stories
Bedrooms
73' 0'
Width
Bedrooms
34
Depth
Starting at$1100.00What's included
STEP 1Bedrooms
STEP 2Bedrooms
STEP 3Bedrooms

Subtotal:$0
Plan Collection

How much will it cost to build?

Estimate your costs based on your location and materials.

Free Cost Instant Estimator

Floor Plans

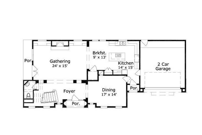
FIRST STORY FLOOR PLAN
FIRST STORY FLOOR PLAN
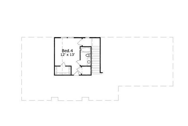
SECOND STORY FLOOR PLAN
SECOND STORY FLOOR PLAN
THIRD STORY FLOOR PLAN
THIRD STORY FLOOR PLAN
Plan Collection

Can I modify this plan?

Yes! This plan can be customized—contact us for a free quote.

Additional Notes from Designer

CAD files may take up to 3 business days to receive - please contact us for availability.

House Plan Description

This is a three-story, Tuscan-style home with a total square footage of 3,631. There are 4 bedrooms and 3 and 1/2 bathrooms and a straight in, front-loading, 2 car garage. The master bedroom includes a sitting area and separate closets. Plan number 30624 has a covered side porch. Its features include a computer alcove, foyer, optional elevator, unfinished storage, gallery, and a metal roof.

Home Details

Summary
Plan #:156-2147
Starting at:$1100.00
Floors:3
Bedrooms:4
Full Baths:3
Half Baths:0
Garage:
Square Footage
Heated Area:3631 Sq. Ft.
First Floor:1410 Sq. Ft.
Second Floor:2221 Sq. Ft.
Unheated Area:
Dimensions
Ridge Height:37' 0''
Architectural Styles
Exterior Wall Material
StuccoRock/Stone
Ceiling Height
10 Foot Ceiling
Garage Type
Attached GarageFront Entry

What’s Included

Most plan sets include the following:

icon text-secondary-400 includedExterior,

icon text-secondary-400 includedElevations

icon text-secondary-400 includedFloor Plans

icon text-secondary-400 includedElectrical Layout

icon text-secondary-400 includedBuilding Sections

icon text-secondary-400 includedRoofing Plan

icon text-secondary-400 includedInterior Elevations

icon text-secondary-400 includedGeneral Details

icon text-secondary-400 includedWall Sections

What’s Not Included

These items are  NOT included:

icon text-secondary-400 includedArchitectural or Engineering Stamp - handled locally if required.

icon text-secondary-400 includedSite Plan - handled locally when required.

icon text-secondary-400 includedMechanical Drawings (location of heating and air equipment and ductwork) - your subcontractors handle this.

icon text-secondary-400 includedPlumbing Drawings (drawings showing the actual plumbing pipe sizes and locations) - your subcontractors handle this.

icon text-secondary-400 includedEnergy calculations - handled locally when required.

Related House Plans

Plan Collection
Plan Collection
Plan Collection
Plan#156-1062
Starting at$975
2791
Sq Ft
3
Story
4
Bed
3
Bath
2
Car
Plan Collection
Plan Collection
Plan Collection
Plan#156-1595
Starting at$1100
3898
Sq Ft
3
Story
4
Bed
3.5
Bath
2
Car
Plan Collection
Plan Collection
Plan Collection
Plan#156-2375
Starting at$1000
3015
Sq Ft
3
Story
4
Bed
3
Bath
2
Car
View All

Other Plans By This Designer

Plan Collection
Plan Collection
Plan Collection
Plan#156-1607
Starting at$1450
5509
Sq Ft
3
Story
6
Bed
6.5
Bath
3
Car
Plan Collection
Plan Collection
Plan Collection
Plan#156-1085
Starting at$1100
3900
Sq Ft
2
Story
4
Bed
3.5
Bath
3
Car
Plan Collection
Plan Collection
Plan Collection
Plan#156-1734
Starting at$1700
6775
Sq Ft
2
Story
6
Bed
4.5
Bath
2
Car