3-Bedroom, 3535 Sq Ft Modern Farmhouse Plan with Safe Room

Front elevation of Modern Farmhouse home (ThePlanCollection: House Plan #163-1110)

Images/Plans copyrighted by designer. Photos may reflect homeowner modifications.

About House Plan #163-1110

Sq Ft
3535
Sq Ft
Bedrooms
3
Bedrooms
Bathroom
3
Baths
Half Baths
0
Half Baths
Bedrooms
3
Cars
Bedrooms
1.5
Stories
Bedrooms
85' 0'
Width
Bedrooms
63
Depth
Starting at$1390.00What's included
STEP 1Bedrooms
STEP 2Bedrooms
STEP 3Bedrooms

Subtotal:$0
Plan Collection

How much will it cost to build?

Estimate your costs based on your location and materials.

Free Cost Instant Estimator

Floor Plans

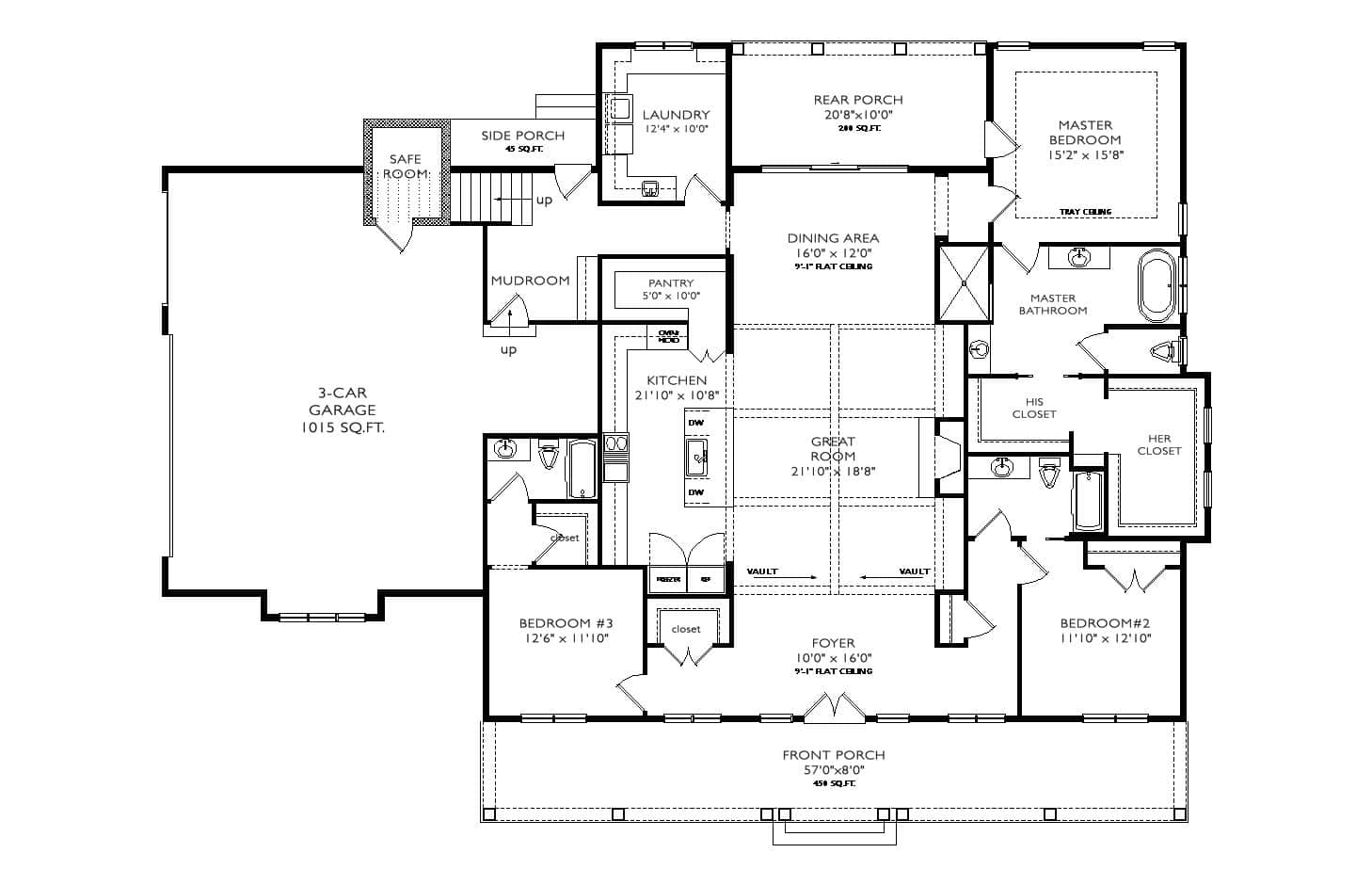
Floor Plan First Story
Floor Plan First Story
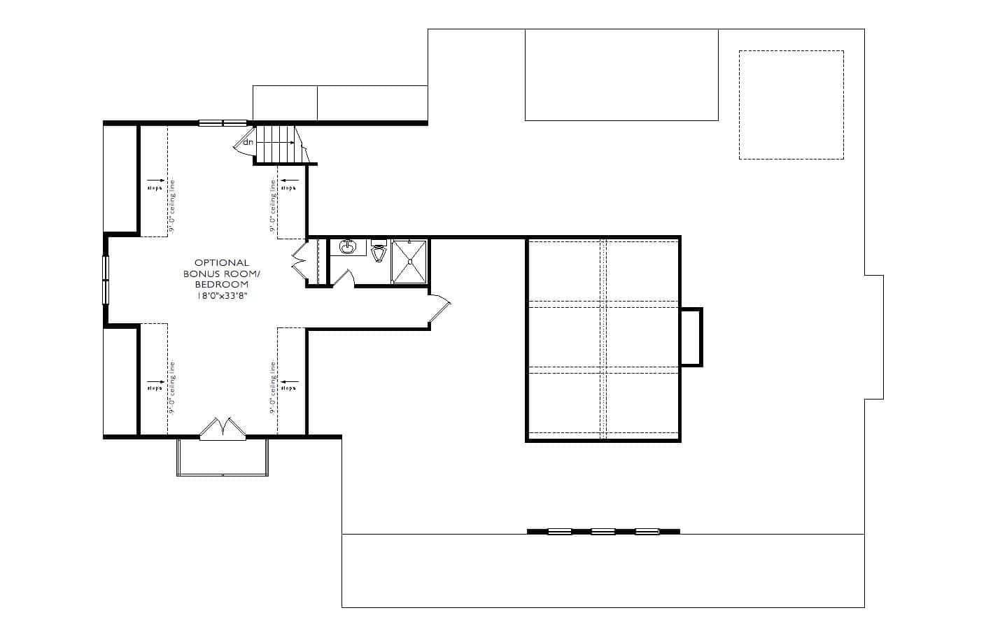
Floor Plan Second Story
Floor Plan Second Story
Plan Collection

Can I modify this plan?

Yes! This plan can be customized—contact us for a free quote.

Additional Notes from Designer

Please Note: There might be a 4-5 day delay in getting the sales orders out due to updates being made to the designer's plans.

NOTE: Porch sq ft figures may include any deck sq ft as well.

House Plan Description

Enriched by its evocative Modern Farmhouse features, this 3,535 square feet Arts and Crafts style jewel includes 3 bedrooms, 3 baths, and a 3-car garage. Notably, the residence provides a captivating range of extras:

  • Mudroom, Great Room, Safe Room
  • Kitchen with Walk-in Pantry
  • Master Bedroom with Walk-in Closet, Master Bathroom, Private Deck
  • Open Floor Plan, Vaulted Ceiling, Bonus Room

Home Details

Summary
Plan #:163-1110
Starting at:$1390.00
Floors:1.5
Bedrooms:3
Full Baths:3
Half Baths:0
Garage:
Square Footage
Heated Area:3535 Sq. Ft.
First Floor:2790 Sq. Ft.
Second Floor:745 Sq. Ft.
Unheated Area:
Bonus Room:745 Sq. Ft.
Garage:1105 Sq. Ft.
Porch:695 Sq. Ft.
Dimensions
Architectural Styles
Exterior Wall Material
Vinyl SidingWood SidingLap Siding
Roofing Type
GableHalf HipShed
Roofing Material
Asphalt ShinglesMetal
Roof Pitch
12/12
Ceiling Height
9 Foot Ceiling
Special Feature
FireplaceMud RoomBonus RoomFamily RoomMain Level LaundryColor PhotosVaulted CeilingsOpen Floor Plan
Garage Type
Attached GarageSide Entry
Fireplaces
One Fireplace
Exterior Wall Framing
2x6
Building Lot Type
Flat Site
Kitchen Features
Kitchen IslandWalk-in PantryEat-In Kitchen
Porches and Exterior Features
Covered Front PorchCovered Rear Porch
Master Suite Features
Main Floor MasterMaster BathroomWalk In ClosetPrivate Deck

What’s Included

Most plan sets include the following:

icon text-secondary-400 includedFLOOR PLAN: Showing all dimensions, window and door locations, laminated beams, columns, floor materials, ceiling heights, fireplace size, and specifications.

icon text-secondary-400 includedFOUNDATION PLAN: Dimensioned plan detailing the location and size of footings, slabs, reinforcing steel, and other structural elements that are required to support the load of the upper floors.

icon text-secondary-400 includedROOF PLAN: Dimensioned plan showing the elements that make up the roof, including notation of spacing and schematics of peaks and valleys.

icon text-secondary-400 includedFRONT, REAR, AND SIDE ELEVATIONS:The front, rear, and side elevations of the house as drawn. Shows placement of doors & windows on exterior of house, as well as roof pitches, ridge heights, and locations of chimney, exterior vents, etc. The elevations show the positioning of the final grade of the lot, exterior finishes, and other details that are necessary to give the home exterior architectural styling.

icon text-secondary-400 includedCROSS SECTIONS AND INTERIOR DETAILS:Explain certain special conditions more appropriately. A cross section is basically a view of the home (or parts of the home) if it were sliced down the center. These details can be helpful for the contractor.Includes cabinet details and typical details.

What’s Not Included

These items are  NOT included:

icon text-secondary-400 includedArchitectural or Engineering Stamp - handled locally if required.

icon text-secondary-400 includedSite Plan - handled locally when required.

icon text-secondary-400 includedElectrical Layout (location of light fixtures, switches, and fans)- Although may be available for an additional charge.

icon text-secondary-400 includedMechanical Drawings (location of heating and air equipment and ductwork) - your subcontractors handle this.

icon text-secondary-400 includedPlumbing Drawings (drawings showing the actual plumbing pipe sizes and locations) - your subcontractors handle this.

icon text-secondary-400 includedEnergy calculations - handled locally when required.

Related House Plans

Plan Collection
Plan Collection
Plan Collection
Plan#202-1024
Starting at$995
3345
Sq Ft
1.5
Story
3
Bed
3.5
Bath
3
Car
Plan Collection
Plan Collection
Plan Collection
Plan#187-1154
Starting at$1350
2920
Sq Ft
1.5
Story
3
Bed
3.5
Bath
3
Car
Plan Collection
Plan Collection
Plan Collection
Plan#161-1142
Starting at$2200
3456
Sq Ft
1.5
Story
3
Bed
3.5
Bath
4
Car
View All

Other Plans By This Designer

Plan Collection
Plan Collection
Plan Collection
Plan#163-1055
Starting at$1230
2618
Sq Ft
1
Story
5
Bed
4.5
Bath
3
Car
Plan Collection
Plan Collection
Plan Collection
Plan#163-1041
Starting at$600
906
Sq Ft
2
Story
1
Bed
1
Bath
2
Car
Plan Collection
Plan Collection
Plan Collection
Plan#163-1052
Starting at$1150
4225
Sq Ft
1
Story
5
Bed
4.5
Bath
3
Car