3–4-Bedroom, 3455 Sq Ft Luxury Plan with Home Office

Luxury Colonial house (ThePlanCollection: Plan #196-1267)

Images/Plans copyrighted by designer. Photos may reflect homeowner modifications.

About House Plan #196-1267

Sq Ft
3455
Sq Ft
Bedrooms
3
Bedrooms
Bathroom
3
Baths
Half Baths
0
Half Baths
Bedrooms
2
Cars
Bedrooms
1.5
Stories
Bedrooms
75' 9'
Width
Bedrooms
72
Depth
Starting at$2125.00What's included
STEP 1Bedrooms
STEP 2Bedrooms
STEP 3Bedrooms

Subtotal:$0
Plan Collection

How much will it cost to build?

Estimate your costs based on your location and materials.

Free Cost Instant Estimator

Floor Plans

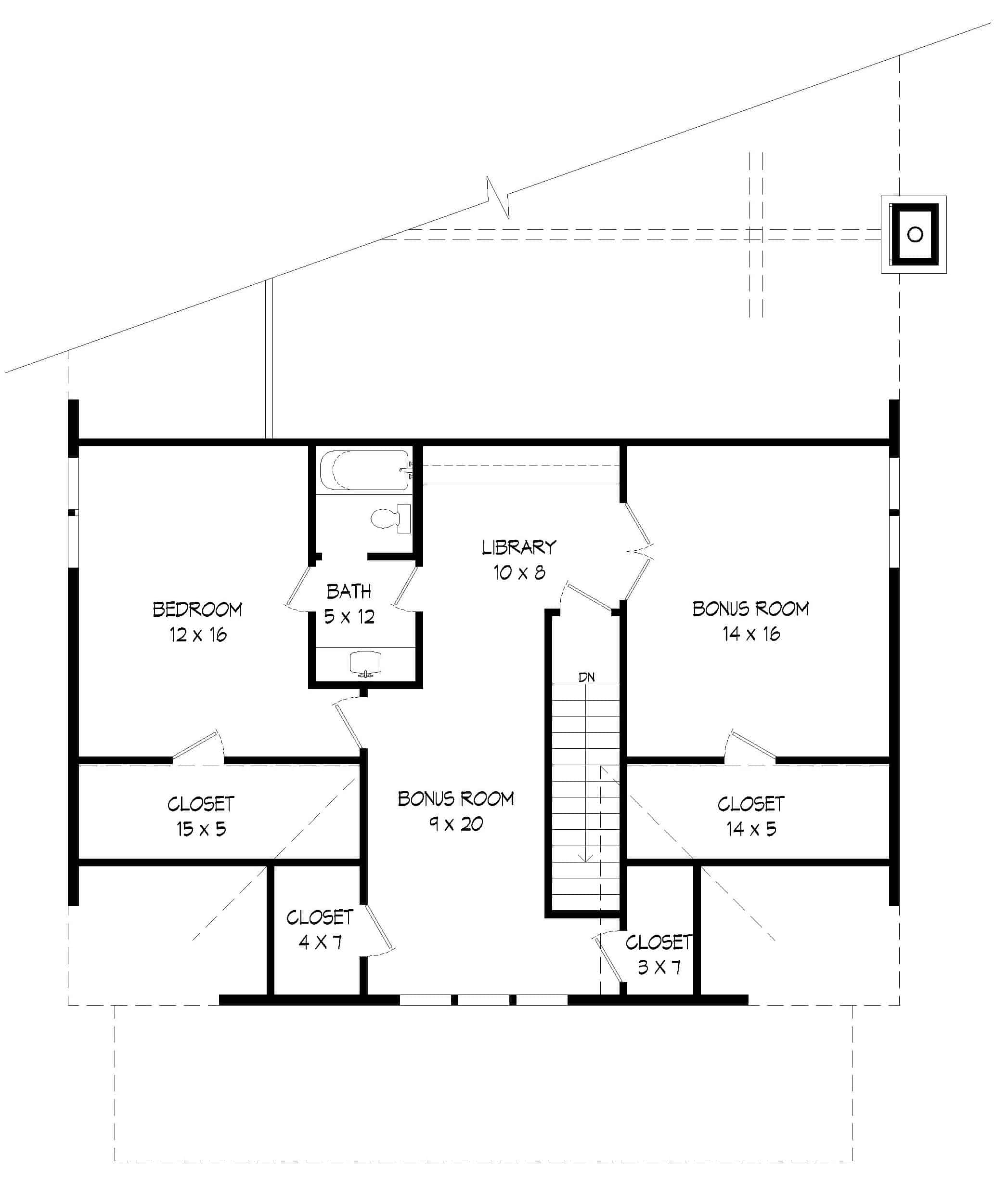
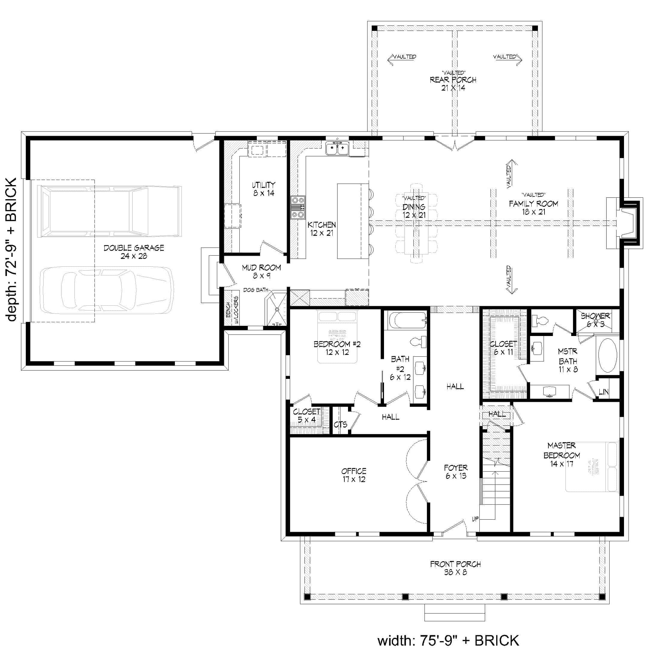
Main Level
Main Level
Upper Level
Upper Level
Plan Collection

Can I modify this plan?

Yes! This plan can be customized—contact us for a free quote.

Additional Notes from Designer

NOTE FROM DESIGNER REGARDING PLAN PURCHASES: 80% of a 5 set purchase price can be applied to any PDF or CAD license upgrade. Additionally, 80% of PDF Study purchase price can be applied to any CAD or PDF license upgrade.

House Plan Description

This Luxry Colonial style house fits perfectly on a corner lot, with the front of the house facing the main road and the car entrance facing the intersecting street. Inside provides you with a very flexible open space that's perfect for a family and for those who enjoy entertaining. The delightful home's 1.5-story floor plan has 3455 square feet of living space and includes 3–4 bedrooms and 3 full bathrooms.

Home Details

Summary
Plan #:196-1267
Starting at:$2125.00
Floors:1.5
Bedrooms:3
Full Baths:3
Half Baths:0
Garage:
Square Footage
Heated Area:3455 Sq. Ft.
First Floor:2376 Sq. Ft.
Second Floor:1079 Sq. Ft.
Unheated Area:
Garage:711 Sq. Ft.
Porch:598 Sq. Ft.
Dimensions
Width:75' 9''
Depth:72' 9''
Architectural Styles
Exterior Wall Material
Vinyl SidingBrickWood Siding
Roofing Type
GableDutch Gable
Roofing Material
Asphalt ShinglesMetal
Roof Pitch
3/1210/12
Ceiling Height
10 Foot Ceiling9 Foot Ceiling
Special Feature
FireplaceHome OfficeMud RoomBonus RoomFamily RoomMain Level LaundryLibrarySplit BathroomStorageVaulted CeilingsOpen Floor PlanL-Shaped
Garage Type
Attached GarageSide Entry
Fireplaces
One Fireplace
Exterior Wall Framing
2x6
Building Lot Type
Corner Lot
Kitchen Features
Kitchen IslandPeninsula/Eating Bar
Porches and Exterior Features
Covered Front PorchCovered Rear Porch
Master Suite Features
Main Floor MasterMaster BathroomWalk In Closet

What’s Included

Most plan sets include the following:

What’s Not Included

These items are  NOT included:

Related House Plans

Plan Collection
Plan Collection
Plan Collection
Plan#116-1003
Starting at$0
2621
Sq Ft
1.5
Story
3
Bed
3
Bath
0
Car
Plan Collection
Plan Collection
Plan Collection
Plan#187-1006
Starting at$1350
2631
Sq Ft
1.5
Story
3
Bed
3
Bath
2
Car
Plan Collection
Plan Collection
Plan Collection
Plan#202-1024
Starting at$995
3345
Sq Ft
1.5
Story
3
Bed
3.5
Bath
3
Car
View All

Other Plans By This Designer

Plan Collection
Plan Collection
Plan Collection
Plan#196-1211
Starting at$695
650
Sq Ft
2
Story
1
Bed
1
Bath
2
Car
Plan Collection
Plan Collection
Plan Collection
Plan#196-1196
Starting at$810
1500
Sq Ft
1
Story
2
Bed
2
Bath
3
Car
Plan Collection
Plan Collection
Plan Collection
Plan#196-1216
Starting at$845
1727
Sq Ft
2
Story
2
Bed
2
Bath
2
Car