Multi-Family Farmhouse with 4 Bedroom, 1703 Square Feet of Living Space per Unit with Breezeway

Front elevation of Multi-Unit home (ThePlanCollection: House Plan #193-1234)

Images/Plans copyrighted by designer. Photos may reflect homeowner modifications.

About House Plan #193-1234

Sq Ft
3406
Sq Ft
Bedrooms
8
Bedrooms
Bathroom
6
Baths
Half Baths
0
Half Baths
Bedrooms
0
Cars
Bedrooms
1.5
Stories
Bedrooms
91' 0'
Width
Bedrooms
48
Depth
Starting at$1850.00What's included
STEP 1Bedrooms
STEP 2Bedrooms
STEP 3Bedrooms

Subtotal:$0
Plan Collection

How much will it cost to build?

Estimate your costs based on your location and materials.

Free Cost Instant Estimator

Floor Plans

Main Level
Main Level
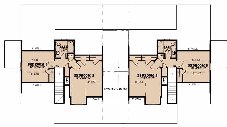
Upper Level
Upper Level
Plan Collection

Can I modify this plan?

Yes! This plan can be customized—contact us for a free quote.

Additional Notes from Designer

For this designer, if you choose optional features such as but not limited to: 2x6 exterior walls, reverse or optional basement, the designer will need an additional 2-5 business days to adjust the plan accordingly. Please keep this in mind when choosing your shipping option. if you would like Express or Priority shipping, the designer will ship the plan to you using the method you choose but you will still have the 2-5 business day waiting period BEFORE they ship! This designer does not offer Framing. Please feel free to contact us with any questions!

Each unit has 4 bedrooms, 1703 square feet of living space and shares 1221 square feet of porch space

Each main level has 1164 square feet & upper level is 539 square feet 

House Plan Description

This is truly one-of-a-kind, absolutely spectacular Multi-Family Farmhouse style home.  The sweet 1.5-story floor plan has 1703 square feet of fully conditioned living space per unit and includes 4 bedrooms per unit.  The covered porch with wonderful space and turned columns is certain to be a spot for gathering on warm evenings. You'll also love these amenities as follows:

• Fireplace in the Great Room 
• Spacious walk-in closets 
• Walk-in kitchen pantry
• Lots of storage space

Home Details

Summary
Plan #:193-1234
Starting at:$1850.00
Floors:1.5
Bedrooms:8
Full Baths:6
Half Baths:0
Garage:
Square Footage
Heated Area:3406 Sq. Ft.
First Floor:2328 Sq. Ft.
Second Floor:1078 Sq. Ft.
Unheated Area:
Porch:1221 Sq. Ft.
Dimensions
Depth:48' 6''
Architectural Styles
Exterior Wall Material
Vinyl SidingRock/StoneWood Siding
Roofing Type
Gable/Dormer
Roofing Material
Metal
Roof Pitch
5/129/12
Ceiling Height
9 Foot Ceiling8 Foot Ceiling
Special Feature
FireplaceMain Level LaundryColor PhotosStorageOpen Floor Plan
Fireplaces
One Fireplace
Exterior Wall Framing
2x6
Kitchen Features
Kitchen IslandWalk-in PantryPeninsula/Eating Bar
Porches and Exterior Features
Covered Front PorchCovered Rear Porch
Master Suite Features
Main Floor MasterMaster BathroomWalk In Closet

What’s Included

Most plan sets include the following:

icon text-secondary-400 included Each plan set includes the following:

icon text-secondary-400 included floorplan

icon text-secondary-400 included 4 side exterior elevations,

icon text-secondary-400 included electrical plan,

icon text-secondary-400 included birds-eye view of the roof,

icon text-secondary-400 included foundation plan,

icon text-secondary-400 included and some miscellaneous details. Please Note We do not offer framing, plumbing, HVAC, or window scheduling. This will have to be done on a local level, probably by your building team!

What’s Not Included

These items are  NOT included:

icon text-secondary-400 includedArchitectural or Engineering Stamp - handled locally if required.

icon text-secondary-400 includedSite Plan - handled locally when required.

icon text-secondary-400 includedMechanical Drawings (location of heating and air equipment and ductwork) - your subcontractors handle this.

icon text-secondary-400 includedPlumbing Drawings (drawings showing the actual plumbing pipe sizes and locations) - your subcontractors handle this.

icon text-secondary-400 includedEnergy calculations - handled locally when required.

icon text-secondary-400 includedNo Framing

Other Plans By This Designer

Plan Collection
Plan Collection
Plan Collection
Plan#193-1108
Starting at$1350
1905
Sq Ft
1.5
Story
3
Bed
2
Bath
0
Car
Plan Collection
Plan Collection
Plan Collection
Plan#193-1179
Starting at$1000
2006
Sq Ft
1.5
Story
3
Bed
2.5
Bath
2
Car
Plan Collection
Plan Collection
Plan Collection
Plan#193-1145
Starting at$1200
1897
Sq Ft
1
Story
4
Bed
2.5
Bath
3
Car