3-Bedroom, 3388 Sq Ft Modern Plan with Home Office

Front elevation of Modern home (ThePlanCollection: House Plan #120-2800)

Images/Plans copyrighted by designer. Photos may reflect homeowner modifications.

About House Plan #120-2800

Sq Ft
3388
Sq Ft
Bedrooms
3
Bedrooms
Bathroom
4
Baths
Half Baths
0
Half Baths
Bedrooms
2
Cars
Bedrooms
1
Stories
Bedrooms
93' 3'
Width
Bedrooms
73
Depth
Starting at$1255.00What's included
STEP 1Bedrooms
STEP 2Bedrooms
STEP 3Bedrooms

Subtotal:$0
Plan Collection

How much will it cost to build?

Estimate your costs based on your location and materials.

Free Cost Instant Estimator

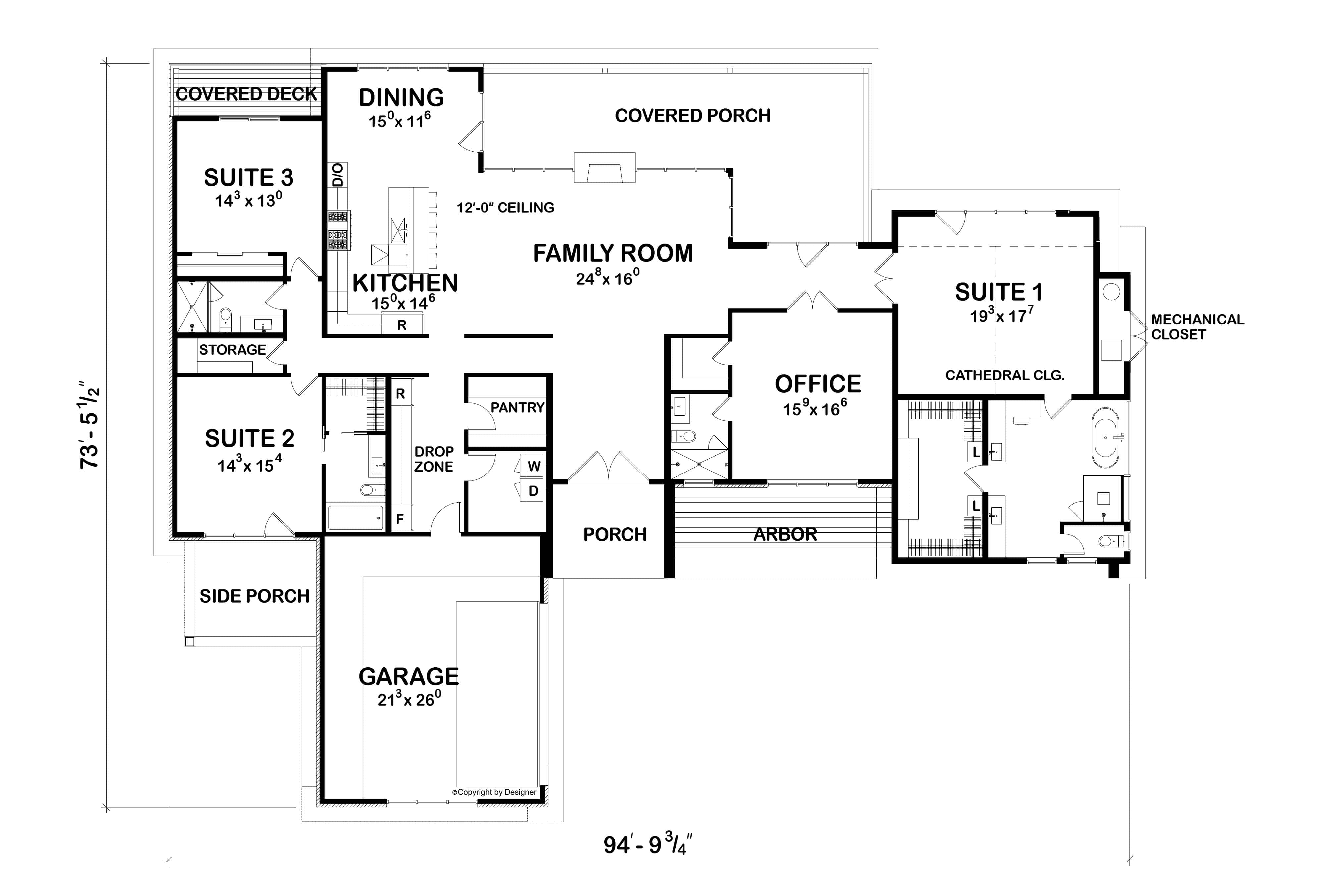
Floor Plans

Floor Plan First Story
Floor Plan First Story
Plan Collection

Can I modify this plan?

Yes! This plan can be customized—contact us for a free quote.

Additional Notes from Designer

PLEASE NOTE! If you order an optional foundation and a materials list, the materials list will NOT include the optional foundation, only the standard foundation. The designer can provide an updated materials list for a fee, so please ask for a quote!

NOTE 1: Porch sq ft figures may include any deck sq ft as well.

NOTE 2: This plan is not quite ready for sale and will require an additional 20-30 business days to complete BEFORE it can be shipped out regardless of the plan package or shipping method you order!

House Plan Description

With its Modern flair, this 3,388 square feet Rustic home comprises 3 bedrooms, 4 baths, and a 2-car garage. Additionally, it includes an impressive range of amenities for a delightful living experience:

  • Family Room, Home Office, Kitchen with Walk-in Pantry
  • Master Bedroom with Walk-in Closet, Master Bathroom

Home Details

Summary
Plan #:120-2800
Starting at:$1255.00
Floors:1
Bedrooms:3
Full Baths:4
Half Baths:0
Garage:
Square Footage
Heated Area:3388 Sq. Ft.
First Floor:3388 Sq. Ft.
Unheated Area:
Garage:586 Sq. Ft.
Porch:651 Sq. Ft.
Dimensions
Width:93' 3''
Depth:73' 5''
Architectural Styles
Exterior Wall Material
Vinyl SidingRock/StoneLap Siding
Roofing Type
GableFlat
Roofing Material
Asphalt ShinglesMetal
Roof Pitch
4/12
Ceiling Height
9 Foot Ceiling
Special Feature
FireplaceHome OfficeMud RoomFamily RoomMain Level LaundryColor PhotosStorageOpen Floor Plan
Garage Type
Attached GarageCourtyard Entry
Fireplaces
One Fireplace
Exterior Wall Framing
2x4
Building Lot Type
Flat Site
Kitchen Features
Kitchen IslandWalk-in PantryEat-In Kitchen
Porches and Exterior Features
Covered Front PorchCovered Rear PorchCovered Rear Patio
Master Suite Features
Main Floor MasterMaster BathroomWalk In ClosetSplit Master Bedroom

What’s Included

Most plan sets include the following:

icon text-secondary-400 includedCover Page. Each home plan features the front elevation and informative reference sections including, general notes and design criteria*, abbreviations, and symbols for your plan.

icon text-secondary-400 includedElevations. Scaled elevations for the front, rear, and sides are provided. All elevations are detailed and an aerial view of the roof is provided.

icon text-secondary-400 includedFoundations. Foundations are fully engineered for each design, whether slab or basement.

icon text-secondary-400 includedMain Level Floor Plan

icon text-secondary-400 includedSecond Level Floor Plan

icon text-secondary-400 includedElectrical layout

icon text-secondary-400 includedWall & Stair Sections

What’s Not Included

These items are  NOT included:

icon text-secondary-400 includedArchitectural or Engineering Stamp - handled locally if required.

icon text-secondary-400 includedSite Plan - handled locally when required.

icon text-secondary-400 includedMechanical Drawings (location of heating and air equipment and ductwork) - your subcontractors handle this.

icon text-secondary-400 includedPlumbing Drawings (drawings showing the actual plumbing pipe sizes and locations) - your subcontractors handle this.

icon text-secondary-400 includedEnergy calculations - handled locally when required.

Related House Plans

Plan Collection
Plan Collection
Plan Collection
Plan#194-1034
Starting at$1395
2923
Sq Ft
1
Story
3
Bed
4.5
Bath
2
Car
Plan Collection
Plan Collection
Plan Collection
Plan#133-1018
Starting at$0
3250
Sq Ft
1
Story
3
Bed
4
Bath
3
Car
Plan Collection
Plan Collection
Plan Collection
Plan#189-1001
Starting at$1595
4086
Sq Ft
1
Story
3
Bed
4.5
Bath
3
Car
View All

Other Plans By This Designer

Plan Collection
Plan Collection
Plan Collection
Plan#120-2655
Starting at$1005
800
Sq Ft
1
Story
2
Bed
1
Bath
0
Car
Plan Collection
Plan Collection
Plan Collection
Plan#120-2696
Starting at$1105
1642
Sq Ft
1
Story
3
Bed
2.5
Bath
2
Car
Plan Collection
Plan Collection
Plan Collection
Plan#120-1117
Starting at$1105
1699
Sq Ft
2
Story
3
Bed
2.5
Bath
2
Car