Estimate your costs based on your location and materials.
Yes! This plan can be customized—contact us for a free quote.
Yes! This plan can be customized—contact us for a free quote.
PLEASE NOTE!! For this designer, The PDF that comes with the PRINT Packages (5 set+PDF and 8 set+PDF) is NOT Modifiable - it is for printing ONLY!
PLEASE NOTE!! Optional Foundations (foundations that cost extra money) will take 5-10 business days to complete.
Total under-roof square footage: 4182 square feet
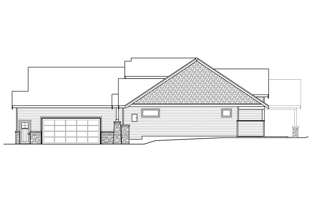
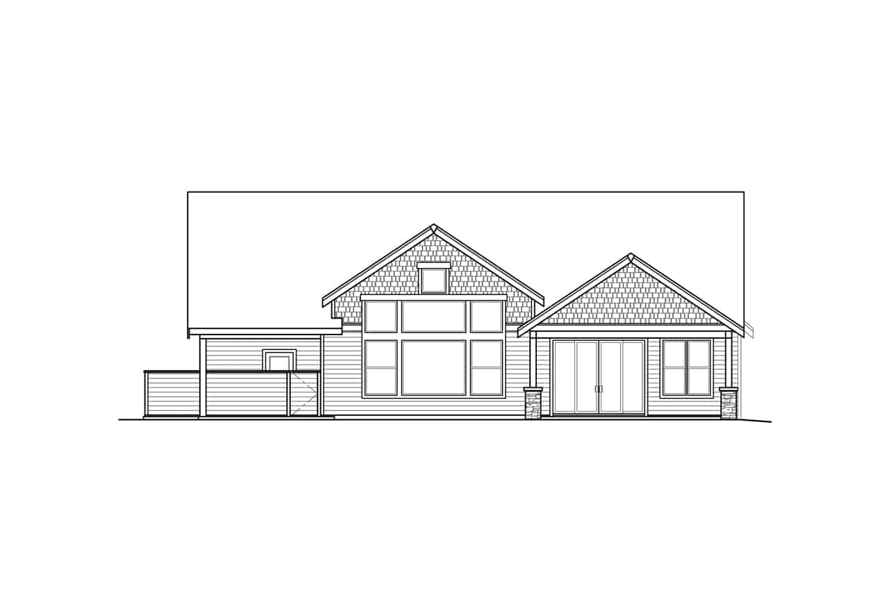
This stylish Traditional home with rustic Craftsman design elements has a great combination of tasteful interior style with a home that also captures the tranquil feel of its expansive outdoor living areas. This well-done 2-story home's floor plan has 3309 square feet of heated and cooled living space and includes wonderful features such as
• Walk-in closets in every bedroom
• Spacious walk-in kitchen pantry
• Vaulted ceilings
• Fireplace in the Great Room
• Den
• Mudroom with a...
Estimate your costs based on your location and materials.
All sales of house plans, modifications, and other products found on this site are final. No refunds or exchanges can be given once your order has begun the fulfillment process. Please see our Policies for additional information.
All plans offered on ThePlanCollection.com are designed to conform to the local building codes when and where the original plan was drawn.
The homes as shown in photographs and renderings may differ from the actual blueprints. For more detailed information, please review the floor plan images herein carefully.
Estimate your costs based on your location and materials.