4-Bedroom, 3238 Sq Ft Tudor Plan with Vaulted Foyer

Front elevation of Tudor home (ThePlanCollection: House Plan #168-1063)

Images/Plans copyrighted by designer. Photos may reflect homeowner modifications.

About House Plan #168-1063

Sq Ft
3238
Sq Ft
Bedrooms
4
Bedrooms
Bathroom
3
Baths
Half Baths
1
Half Baths
Bedrooms
3
Cars
Bedrooms
2
Stories
Bedrooms
65' 0'
Width
Bedrooms
54
Depth
Starting at$2600.00What's included
STEP 1Bedrooms
STEP 2Bedrooms
STEP 3Bedrooms

Subtotal:$0
Plan Collection

How much will it cost to build?

Estimate your costs based on your location and materials.

Free Cost Instant Estimator

Floor Plans

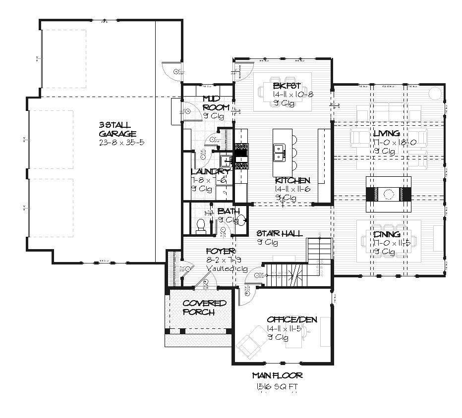
Main level
Main level
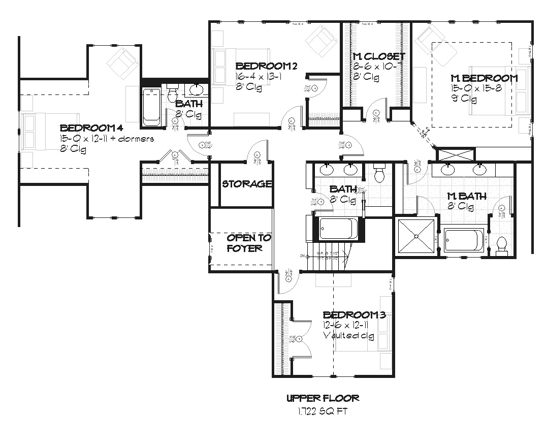
Upper Floor
Upper Floor
Plan Collection

Can I modify this plan?

Yes! This plan can be customized—contact us for a free quote.

House Plan Description

Live in a Traditional English Tudor style house plan with your own personal Great Hall, now in the form of a large, airy kitchen with breakfast room and a two-way fireplace dividing the living and dining spaces. The home plan's centrally located foyer adds even more open space to the first floor plan, yet there's still room for a private home office. Upstairs, there's a master bedroom suite with a unique coffered ceiling and three additional bedrooms – with a charming sitting area in the fourth bedroom – and two additional...

Home Details

Summary
Plan #:168-1063
Starting at:$2600.00
Floors:2
Bedrooms:4
Full Baths:3
Half Baths:1
Garage:
Square Footage
Heated Area:3238 Sq. Ft.
First Floor:1516 Sq. Ft.
Second Floor:1722 Sq. Ft.
Unheated Area:
Dimensions
Architectural Styles
Exterior Wall Material
StuccoRock/StoneWood Siding
Roofing Type
Gable/Shed Dormer
Roofing Material
Asphalt Shingles
Special Feature
FireplaceHome OfficeMud RoomMain Level LaundryColor PhotosSplit BathroomStorageDenVaulted CeilingsOpen Floor Plan
Garage Type
Attached GarageSide Entry
Fireplaces
One Fireplace
Building Lot Type
Flat Site
Kitchen Features
Kitchen IslandNook/Breakfast AreaEat-In Kitchen
Porches and Exterior Features
Covered Front Porch
Master Suite Features
Master BathroomWalk In ClosetSecond Floor Master

What’s Included

Most plan sets include the following:

icon text-secondary-400 includedTitle Sheet

icon text-secondary-400 includedFloor Plans

icon text-secondary-400 includedWindow & Door Sizes

icon text-secondary-400 includedExterior Elevations

icon text-secondary-400 includedBuilding and/or Wall sections

icon text-secondary-400 includedRoof plans

icon text-secondary-400 includedFoundation Plans

What’s Not Included

These items are  NOT included:

icon text-secondary-400 includedArchitectural or Engineering Stamp - handled locally if required.

icon text-secondary-400 includedSite Plan - handled locally when required.

icon text-secondary-400 includedMechanical Drawings (location of heating and air equipment and duct work) - your subcontractors handle this.

icon text-secondary-400 includedPlumbing Drawings (drawings showing the actual plumbing pipe sizes and locations) - your subcontractors handle this.

icon text-secondary-400 includedEnergy calculations - handled locally when required.

Related House Plans

Plan Collection
Plan Collection
Plan Collection
Plan#161-1067
Starting at$2400
3897
Sq Ft
2
Story
4
Bed
3.5
Bath
3
Car
Plan Collection
Plan Collection
Plan Collection
Plan#120-2176
Starting at$1255
3124
Sq Ft
2
Story
4
Bed
3.5
Bath
2
Car
Plan Collection
Plan Collection
Plan Collection
Plan#109-1191
Starting at$1495
2909
Sq Ft
2
Story
4
Bed
3.5
Bath
0
Car
View All

Other Plans By This Designer

Plan Collection
Plan Collection
Plan Collection
Plan#168-1132
Starting at$3050
4580
Sq Ft
2
Story
5
Bed
5
Bath
3
Car
Plan Collection
Plan Collection
Plan Collection
Plan#168-1129
Starting at$2500
1930
Sq Ft
2
Story
3
Bed
2.5
Bath
2
Car
Plan Collection
Plan Collection
Plan Collection
Plan#168-1099
Starting at$2600
2609
Sq Ft
2
Story
4
Bed
3.5
Bath
3
Car