5-Bedroom, 3155 Sq Ft Country Plan with Main Floor Master

Front elevation of Country home (ThePlanCollection: House Plan #153-1853)

Images/Plans copyrighted by designer. Photos may reflect homeowner modifications.

About House Plan #153-1853

Sq Ft
3155
Sq Ft
Bedrooms
5
Bedrooms
Bathroom
4
Baths
Half Baths
1
Half Baths
Bedrooms
2
Cars
Bedrooms
2
Stories
Bedrooms
75' 0'
Width
Bedrooms
54
Depth
Starting at$1350.00What's included
STEP 1Bedrooms
STEP 2Bedrooms
STEP 3Bedrooms

Subtotal:$0
Plan Collection

How much will it cost to build?

Estimate your costs based on your location and materials.

Free Cost Instant Estimator

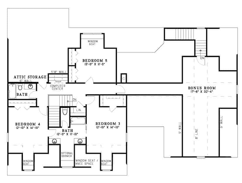
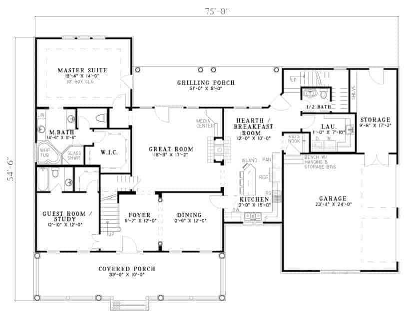
Floor Plans

Floor Plan Main Level
Floor Plan Main Level
Floor Plan Upper Level
Floor Plan Upper Level
Plan Collection

Can I modify this plan?

Yes! This plan can be customized—contact us for a free quote.

Additional Notes from Designer

Plans by this designer do NOT usually come with FRAMING - some plans may have framing available for an extra fee - please contact us to find out about a specific plan & we will check with the designer!! Additionally: For this designer, if you choose optional features such as but not limited to: 2x6 framing, reverse or optional basement, the designer will need an additional 2-5 business days to adjust the plan accordingly. Please keep this in mind when choosing your shipping option. If you would like Express or Priority shipping, the designer will ship the plan to you using the method you choose but you will still have the 2-5 business day waiting period BEFORE they ship! Please feel free to contact us with any questions! PLEASE NOTE: Multi-licenses are available. The plans do not come with ICF specifications. If ICF construction method is desired, the CAD plan can be purchased and then forwarded to the ICF dealer and they’ll do a takeoff to assist with that specific projec

House Plan Description

This home has so much more than initially meets the eye. With attractive curb appeal heightened by the front porch and the dormer windows, step inside to be really amazed by the floor plan and all it offers.

  • Spacious foyer with wide staircase to the second floor.
  • Wide entry to the formal dining room.
  • Great room with fireplace, media center and windows overlooking the rear porch.
  • Gourmet kitchen with island and plenty of seating plus an adjoining hearth/breakfast area.
  • Kids' nook (mud room) right off of the...

Home Details

Summary
Plan #:153-1853
Starting at:$1350.00
Floors:2
Bedrooms:5
Full Baths:4
Half Baths:1
Garage:
Square Footage
Heated Area:3155 Sq. Ft.
First Floor:2025 Sq. Ft.
Second Floor:1130 Sq. Ft.
Unheated Area:
Bonus Room:572 Sq. Ft.
Garage:744 Sq. Ft.
Porch:627 Sq. Ft.
Dimensions
Depth:54' 6''
Ridge Height:25' 0''
Architectural Styles
Roof Pitch
10/12
Ceiling Height
9 Foot Ceiling8 Foot Ceiling
Special Feature
FireplaceDining RoomGuest RoomMud RoomBonus RoomMain Level LaundrySplit BathroomStorageDenOpen Floor Plan
Garage Type
Attached GarageSide Entry
Exterior Wall Framing
2x4
Kitchen Features
Kitchen IslandNook/Breakfast AreaPeninsula/Eating Bar
Porches and Exterior Features
Covered Front PorchCovered Rear Porch
Master Suite Features
Main Floor MasterMaster BathroomSplit Master Bedroom

What’s Included

Most plan sets include the following:

icon text-secondary-400 included floorplan

icon text-secondary-400 included 4 side exterior elevations,

icon text-secondary-400 included electrical plan,

icon text-secondary-400 included birds-eye view of the roof,

icon text-secondary-400 included foundation plan,

icon text-secondary-400 included and some miscellaneous details. Please Note We do not offer plumbing, HVAC, or window scheduling. This will have to be done on a local level, probably by your building team!

What’s Not Included

These items are  NOT included:

icon text-secondary-400 includedArchitectural or Engineering Stamp - handled locally if required.

icon text-secondary-400 includedSite Plan - handled locally when required.

icon text-secondary-400 includedMechanical Drawings (location of heating and air equipment and ductwork) - your subcontractors handle this.

icon text-secondary-400 includedPlumbing Drawings (drawings showing the actual plumbing pipe sizes and locations) - your subcontractors handle this.

icon text-secondary-400 includedEnergy calculations - handled locally when required.

Related House Plans

Plan Collection
Plan Collection
Plan Collection
Plan#126-1168
Starting at$2230
3126
Sq Ft
2
Story
5
Bed
4.5
Bath
2
Car
Plan Collection
Plan Collection
Plan Collection
Plan#198-1068
Starting at$1445
3314
Sq Ft
2
Story
5
Bed
4
Bath
2
Car
Plan Collection
Plan Collection
Plan Collection
Plan#189-1102
Starting at$1595
3942
Sq Ft
2
Story
5
Bed
4.5
Bath
3
Car
View All

Other Plans By This Designer

Plan Collection
Plan Collection
Plan Collection
Plan#153-1432
Starting at$1200
2096
Sq Ft
1
Story
3
Bed
2.5
Bath
3
Car
Plan Collection
Plan Collection
Plan Collection
Plan#153-1744
Starting at$800
1800
Sq Ft
1
Story
3
Bed
2
Bath
2
Car
Plan Collection
Plan Collection
Plan Collection
Plan#153-1608
Starting at$700
1382
Sq Ft
1
Story
3
Bed
2
Bath
2
Car