4-Bedroom, 3124 Sq Ft Modern Farmhouse Plan with Formal Dining Room

Front elevation of Modern Farmhouse home (ThePlanCollection: House Plan #189-1150)

Images/Plans copyrighted by designer. Photos may reflect homeowner modifications.

About House Plan #189-1150

Sq Ft
3124
Sq Ft
Bedrooms
4
Bedrooms
Bathroom
3
Baths
Half Baths
1
Half Baths
Bedrooms
2
Cars
Bedrooms
1.5
Stories
Bedrooms
66' 5'
Width
Bedrooms
74
Depth
Starting at$1595.00What's included
STEP 1Bedrooms
STEP 2Bedrooms
STEP 3Bedrooms

Subtotal:$0
Plan Collection

How much will it cost to build?

Estimate your costs based on your location and materials.

Free Cost Instant Estimator

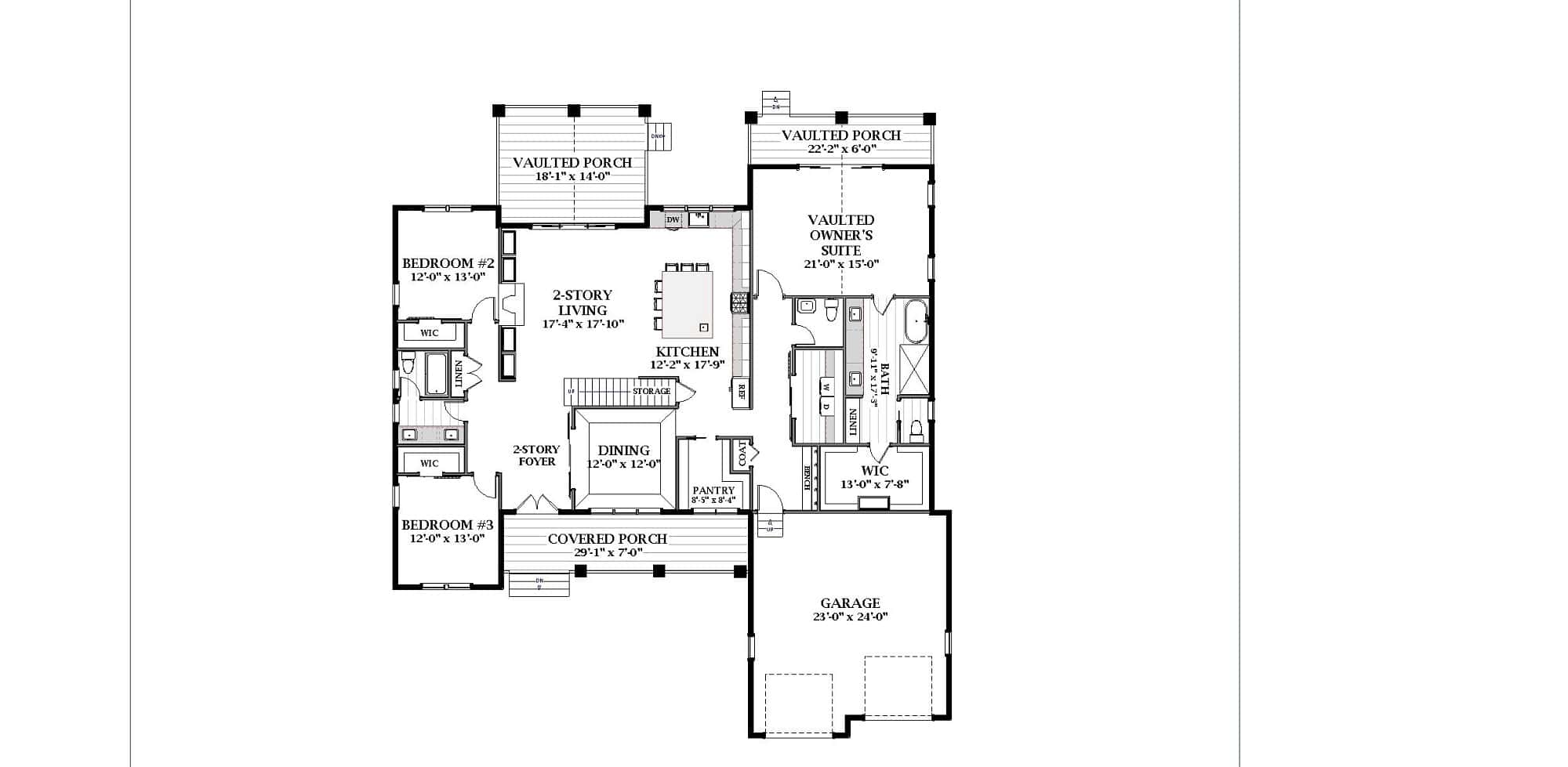
Floor Plans

Floor Plan First Story
Floor Plan First Story
Floor Plan Second Story
Floor Plan Second Story
Plan Collection

Can I modify this plan?

Yes! This plan can be customized—contact us for a free quote.

Additional Notes from Designer

Please Note: CAD Files for this plan typically take 2-3 additional business days to prepare. PLEASE NOTE: Some options (different foundations, RRR, etc.) may take an additional 2-3 business days to prepare! Please keep this in mind regarding shipping when ordering. Thank you!

NOTE: Pporch sq ft figures may include any deck sq ft as well.

PLEASE NOTE: This plan is a concept plan and will need an additional 20-25 business days to complete BEFORE being shipped out, regardless of the plan package you purchased. Please keep this in mind when ordering!

House Plan Description

Embracing Modern Farmhouse design elements, this picturesque Country home encompasses 3,124 square feet, providing ample space with 4 bedrooms, 3.5 baths, and a 2-car garage. The residence also includes an array of exceptional amenities:

  • Living Room, Dining Room, Kitchen with Walk-in Pantry, Bonus Room
  • Guest Room, Master Bedroom with Walk-in Closet, Master Bathroom

Home Details

Summary
Plan #:189-1150
Starting at:$1595.00
Floors:1.5
Bedrooms:4
Full Baths:3
Half Baths:1
Garage:
Square Footage
Heated Area:3124 Sq. Ft.
First Floor:2541 Sq. Ft.
Second Floor:583 Sq. Ft.
Unheated Area:
Bonus Room:497 Sq. Ft.
Garage:618 Sq. Ft.
Porch:598 Sq. Ft.
Dimensions
Width:66' 5''
Depth:74' 6''
Architectural Styles
Exterior Wall Material
Lap Siding
Roofing Type
Gable/Dormer
Roofing Material
Metal
Ceiling Height
10 Foot Ceiling9 Foot Ceiling
Special Feature
FireplaceDining RoomGuest RoomMud RoomBonus RoomFamily RoomMain Level LaundryColor PhotosLoftStorageVaulted CeilingsOpen Floor Plan
Garage Type
Attached GarageFront Entry
Fireplaces
One Fireplace
Exterior Wall Framing
2x6
Building Lot Type
Flat Site
Kitchen Features
Kitchen IslandWalk-in Pantry
Porches and Exterior Features
Covered Front PorchCovered Rear Porch
Master Suite Features
Main Floor MasterMaster BathroomWalk In ClosetPrivate DeckSplit Master Bedroom

What’s Included

Most plan sets include the following:

icon text-secondary-400 includedFoundation Detail

icon text-secondary-400 includedFloor plans

icon text-secondary-400 includedExterior Elevations

icon text-secondary-400 includedCross-section elevations

icon text-secondary-400 includedInterior elevations

icon text-secondary-400 includedArial view

icon text-secondary-400 includedColor rendering of the front elevation

icon text-secondary-400 includedRoof plan

icon text-secondary-400 includedRoof Framing

icon text-secondary-400 includedCeiling Framing

icon text-secondary-400 includedFloor Framing

icon text-secondary-400 includedElectrical Layout

icon text-secondary-400 includedNotes and Details

What’s Not Included

These items are  NOT included:

icon text-secondary-400 includedArchitectural or Engineering Stamp - handled locally if required.

icon text-secondary-400 includedSite Plan - handled locally when required.

icon text-secondary-400 includedMechanical Drawings (location of heating and air equipment and ductwork) - your subcontractors handle this.

icon text-secondary-400 includedPlumbing Drawings (drawings showing the actual plumbing pipe sizes and locations) - your subcontractors handle this.

icon text-secondary-400 includedEnergy calculations - handled locally when required.

Related House Plans

Plan Collection
Plan Collection
Plan Collection
Plan#142-1185
Starting at$1395
2742
Sq Ft
1.5
Story
4
Bed
3.5
Bath
2
Car
Plan Collection
Plan Collection
Plan Collection
Plan#161-1001
Starting at$2200
3339
Sq Ft
1.5
Story
4
Bed
3.5
Bath
3
Car
Plan Collection
Plan Collection
Plan Collection
Plan#153-1990
Starting at$1850
3084
Sq Ft
1.5
Story
4
Bed
3.5
Bath
2
Car
View All

Other Plans By This Designer

Plan Collection
Plan Collection
Plan Collection
Plan#189-1118
Starting at$1595
2737
Sq Ft
2
Story
4
Bed
3
Bath
2
Car
Plan Collection
Plan Collection
Plan Collection
Plan#189-1013
Starting at$1595
3263
Sq Ft
2
Story
5
Bed
3.5
Bath
2
Car
Plan Collection
Plan Collection
Plan Collection
Plan#189-1135
Starting at$1595
2954
Sq Ft
1
Story
3
Bed
3
Bath
3
Car