4-Bedroom, 3070 Sq Ft Modern Farmhouse Plan with Friend's Entry

Front elevation of Modern Farmhouse home (ThePlanCollection: House Plan #142-1471)

Images/Plans copyrighted by designer. Photos may reflect homeowner modifications.

About House Plan #142-1471

Sq Ft
3070
Sq Ft
Bedrooms
4
Bedrooms
Bathroom
3
Baths
Half Baths
1
Half Baths
Bedrooms
3
Cars
Bedrooms
1
Stories
Bedrooms
80' 4'
Width
Bedrooms
100
Depth
Starting at$1545.00What's included
STEP 1Bedrooms
STEP 2Bedrooms
STEP 3Bedrooms

Subtotal:$0
Plan Collection

How much will it cost to build?

Estimate your costs based on your location and materials.

Free Cost Instant Estimator

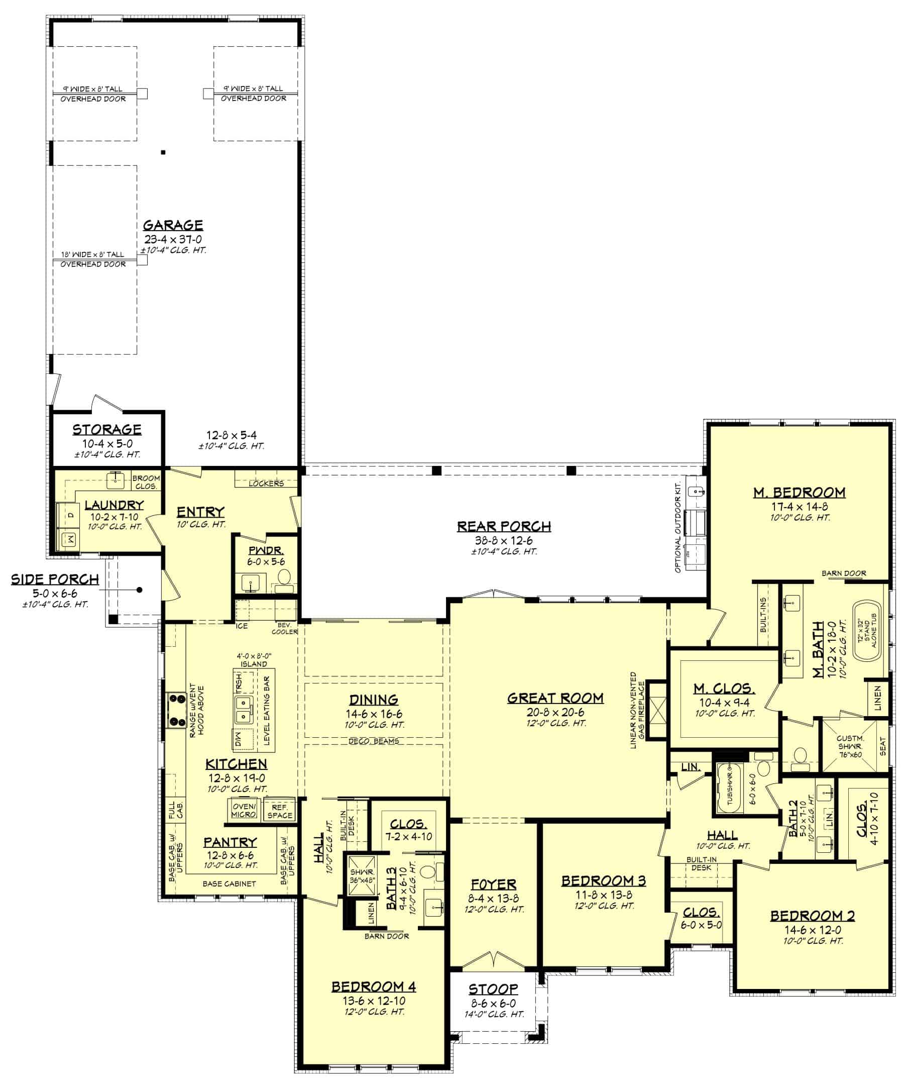
Floor Plans

Floor Plan First Story
Floor Plan First Story
Basement Option Stair Location
Basement Option Stair Location
Plan Collection

Can I modify this plan?

Yes! This plan can be customized—contact us for a free quote.

Additional Notes from Designer

On some plans, Basement Foundations, Walkout Basement Foundations & 2x6 Conversions could take up to ONE WEEK to produce. Materials Lists could take up to FOUR WEEKS to produce and they will be for the ORIGINAL plan! Any modifications will NOT be reflected on the Materials List. NOTE FROM DESIGNER: If you purchase a CAD, you will automatically receive the unlimited build license - no need to purchase separately!

House Plan Description

Embrace this charming Southern home with 4 beds, 3.5 baths, open kitchen, walk-in pantry, large dining & great room. The main suite has built-ins, huge bath & closet. Ideal for country living with 10', 12' and 14' Ceilings. It also boast a rear porch, front stoop and a side porch (friend's entry). The rear - left entry garage holds 3 cars, which is just right for any family.

Home Details

Summary
Plan #:142-1471
Starting at:$1545.00
Floors:1
Bedrooms:4
Full Baths:3
Half Baths:1
Garage:
Square Footage
Heated Area:3070 Sq. Ft.
First Floor:3070 Sq. Ft.
Unheated Area:
Garage:965 Sq. Ft.
Porch:570 Sq. Ft.
Dimensions
Width:80' 4''
Depth:100' 2''
Ridge Height:29' 0''
Architectural Styles
Exterior Wall Material
BrickBoard and Batten
Roofing Type
Gable
Roofing Material
Asphalt ShinglesMetal
Roof Pitch
12/124/128/12
Ceiling Height
10 Foot Ceiling12 Foot Ceiling
Special Feature
Dining RoomMain Level LaundryStorageOpen Floor PlanL-Shaped
Garage Type
Attached Garage
Exterior Wall Framing
2x4
Building Lot Type
Corner Lot
Porches and Exterior Features
Covered Front PorchCovered Rear PorchFriend's Entry
Master Suite Features
Main Floor MasterMaster BathroomWalk In Closet

What’s Included

Most plan sets include the following:

icon text-secondary-400 includedCover sheet

icon text-secondary-400 includedFoundation plan

icon text-secondary-400 includedDimensional floor plan

icon text-secondary-400 includedExterior views

icon text-secondary-400 includedRoof plan

icon text-secondary-400 includedElectrical layout

icon text-secondary-400 includedWall section(s)

icon text-secondary-400 includedBuilding section(s)

icon text-secondary-400 includedCabinet elevations

What’s Not Included

These items are  NOT included:

icon text-secondary-400 includedArchitectural or Engineering Stamp - handled locally if required.

icon text-secondary-400 includedSite Plan - handled locally when required.

icon text-secondary-400 includedMechanical Drawings (location of heating and air equipment and ductwork) - your subcontractors handle this.

icon text-secondary-400 includedPlumbing Drawings (drawings showing the actual plumbing pipe sizes and locations) - your subcontractors handle this.

icon text-secondary-400 includedEnergy calculations - handled locally when required.

icon text-secondary-400 includedNo Framing

Related House Plans

Plan Collection
Plan Collection
Plan Collection
Plan#142-1102
Starting at$1395
2639
Sq Ft
1
Story
4
Bed
3
Bath
2
Car
Plan Collection
Plan Collection
Plan Collection
Plan#146-2173
Starting at$1015
2464
Sq Ft
1
Story
4
Bed
3
Bath
3
Car
Plan Collection
Plan Collection
Plan Collection
Plan#142-1005
Starting at$1395
2500
Sq Ft
1
Story
4
Bed
3
Bath
2
Car
View All

Other Plans By This Designer

Plan Collection
Plan Collection
Plan Collection
Plan#142-1244
Starting at$1545
3086
Sq Ft
1
Story
4
Bed
3.5
Bath
3
Car
Plan Collection
Plan Collection
Plan Collection
Plan#142-1256
Starting at$1295
1599
Sq Ft
1
Story
3
Bed
2.5
Bath
2
Car
Plan Collection
Plan Collection
Plan Collection
Plan#142-1265
Starting at$1245
1448
Sq Ft
1
Story
2
Bed
2
Bath
1
Car