Estimate your costs based on your location and materials.
Yes! This plan can be customized—contact us for a free quote.
Yes! This plan can be customized—contact us for a free quote.
The plans by this designer do NOT include framing. PLEASE NOTE: An Unlimited Use License is available for purchase through the designer BUT YOU MUST purchase a CAD package!
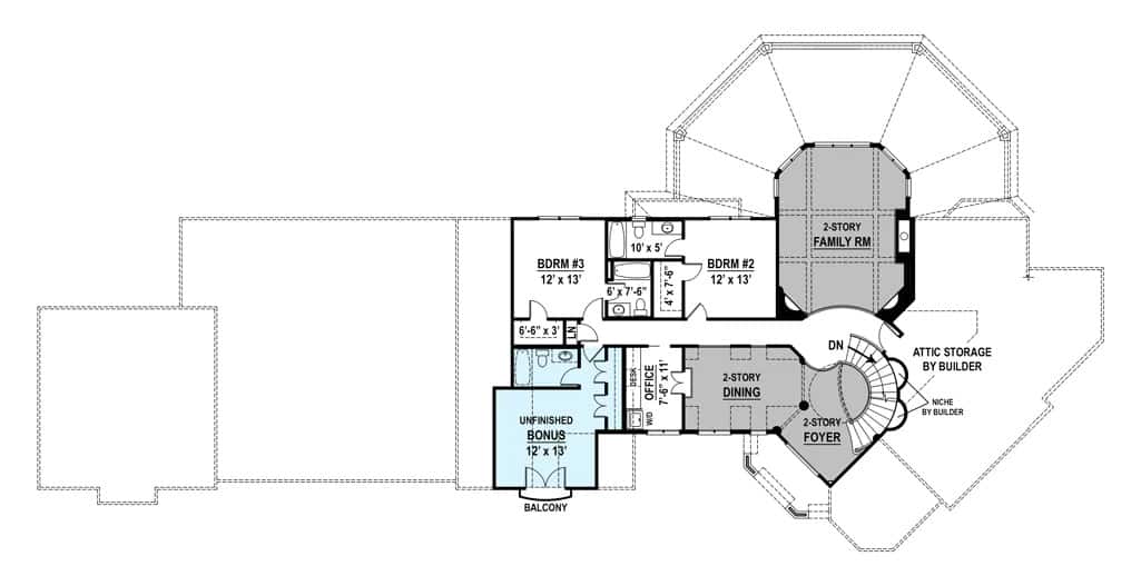
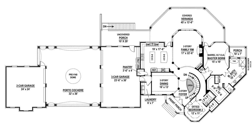
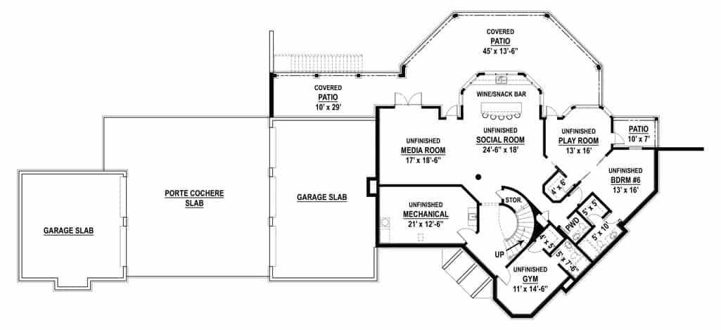
This stunning 4-bedroom, 3027 square feet European plan with a 5-car garage home design is a classic European style has an exterior made of stonework or brickwork, adding a sense of luxury and sophistication. The main living area is an open concept space that includes a great room with vaulted or volume ceilings, a fireplace, and large windows that bring in plenty of natural light. The gourmet kitchen features a large island and a walk-in pantry, an eating bar, which is perfect for casual dining or entertaining guests. The first floor master suite is spacious and luxurious, with a...
Estimate your costs based on your location and materials.
All sales of house plans, modifications, and other products found on this site are final. No refunds or exchanges can be given once your order has begun the fulfillment process. Please see our Policies for additional information.
All plans offered on ThePlanCollection.com are designed to conform to the local building codes when and where the original plan was drawn.
The homes as shown in photographs and renderings may differ from the actual blueprints. For more detailed information, please review the floor plan images herein carefully.
Estimate your costs based on your location and materials.