Contemporary Duplex Plan with 2-3 Bedrooms Per Unit & RV Garage

Contemporary duplex home (ThePlanCollection: Plan #196-1217)

Images/Plans copyrighted by designer. Photos may reflect homeowner modifications.

About House Plan #196-1217

Sq Ft
3020
Sq Ft
Bedrooms
5
Bedrooms
Bathroom
3
Baths
Half Baths
1
Half Baths
Bedrooms
2
Cars
Bedrooms
2
Stories
Bedrooms
50' 5'
Width
Bedrooms
50
Depth
Starting at$2025.00What's included
STEP 1Bedrooms
STEP 2Bedrooms
STEP 3Bedrooms

Subtotal:$0
Plan Collection

How much will it cost to build?

Estimate your costs based on your location and materials.

Free Cost Instant Estimator

Floor Plans

Floor Plan Upper Level
Floor Plan Upper Level
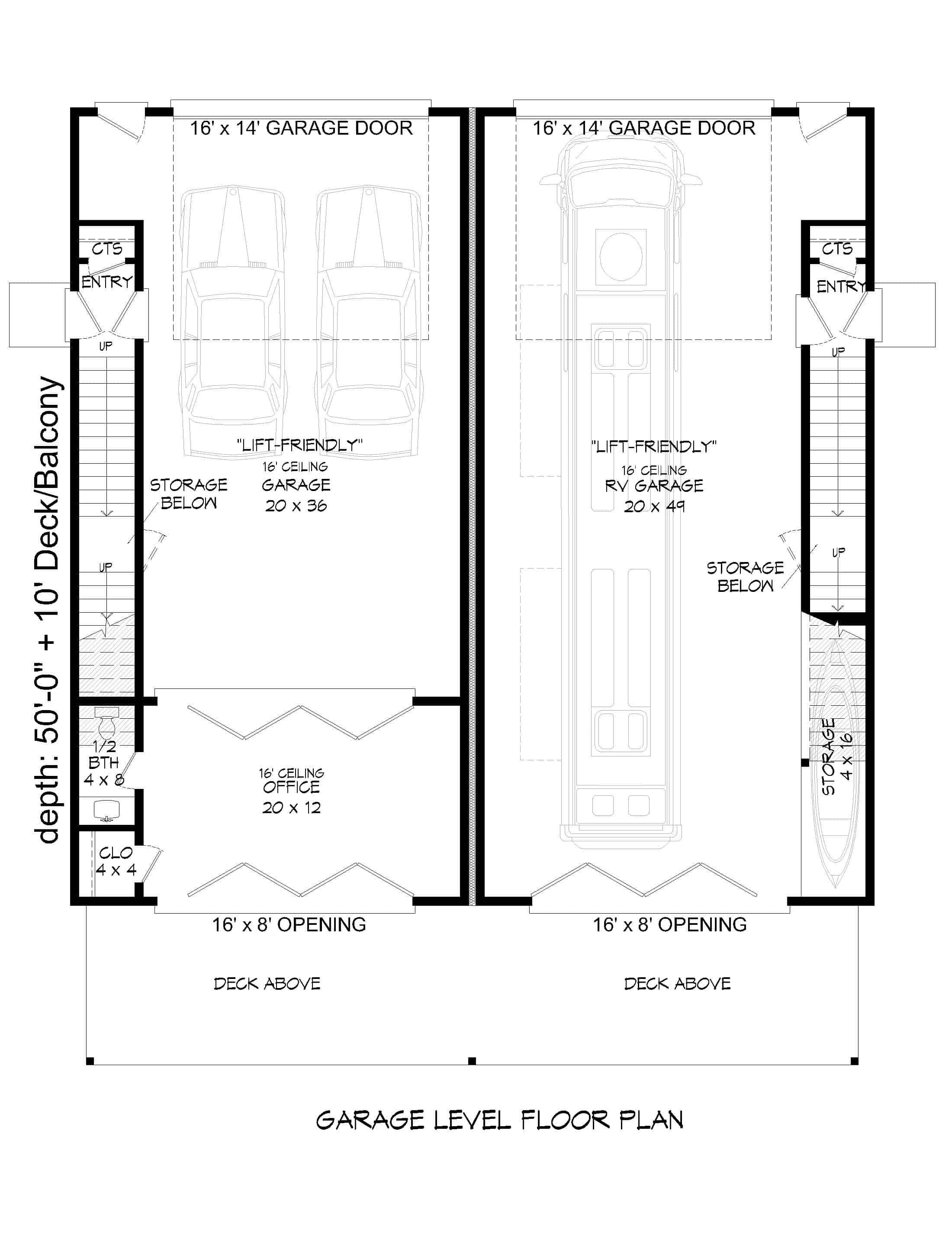
Floor Plan Garage
Floor Plan Garage
Plan Collection

Can I modify this plan?

Yes! This plan can be customized—contact us for a free quote.

Additional Notes from Designer

NOTE FROM DESIGNER REGARDING PLAN PURCHASES: 80% of a 5 set purchase price can be applied to any PDF or CAD license upgrade. Additionally, 80% of PDF Study purchase price can be applied to any CAD or PDF license upgrade.

House Plan Description

This splendid and luxurious multi-unit duplex is truly an amazing house both inside out. This Contemporary style home is the perfect mix of comfort and convenience – complete with roomy RV-size garages that have 16-foot by 14-foot doors! The magnificent two-story floor plan has 3020 total square feet of heated and cooled living space.

Unit A has 1845 square feet of conditioned living space (426 sq. ft. down and 1419 sq. ft. up), 844 square feet of garage and storage space, and 242 square feet of deck area. It comes with 3 bedrooms, 2...

Home Details

Summary
Plan #:196-1217
Starting at:$2025.00
Floors:2
Bedrooms:5
Full Baths:3
Half Baths:1
Garage:
Square Footage
Heated Area:3020 Sq. Ft.
First Floor:525 Sq. Ft.
Second Floor:2495 Sq. Ft.
Unheated Area:
Garage:1995 Sq. Ft.
Porch:484 Sq. Ft.
Dimensions
Width:50' 5''
Depth:50' 10''
Architectural Styles
Exterior Wall Material
Stucco
Roofing Type
Shed
Roofing Material
Asphalt Shingles
Roof Pitch
Other
Ceiling Height
12 Foot Ceiling
Special Feature
Mud RoomFamily RoomStorageVaulted CeilingsBalconySecond Level LaundryOpen Floor Plan
Garage Type
Attached GarageUnder Main Floor EntryFront Entry
Exterior Wall Framing
2x6
Building Lot Type
Flat Site
Kitchen Features
Kitchen IslandNook/Breakfast AreaPeninsula/Eating Bar
Porches and Exterior Features
SundeckPatio
Master Suite Features
Master BathroomWalk In ClosetSecond Floor Master

What’s Included

Most plan sets include the following:

What’s Not Included

These items are  NOT included:

Related House Plans

Plan Collection
Plan Collection
Plan Collection
Plan#108-1543
Starting at$1150
2288
Sq Ft
2
Story
5
Bed
3
Bath
2
Car
Plan Collection
Plan Collection
Plan Collection
Plan#153-1743
Starting at$1550
2516
Sq Ft
2
Story
5
Bed
3
Bath
2
Car
Plan Collection
Plan Collection
Plan Collection
Plan#108-1852
Starting at$1250
2770
Sq Ft
2
Story
5
Bed
3.5
Bath
3
Car
View All

Other Plans By This Designer

Plan Collection
Plan Collection
Plan Collection
Plan#196-1211
Starting at$695
650
Sq Ft
2
Story
1
Bed
1
Bath
2
Car
Plan Collection
Plan Collection
Plan Collection
Plan#196-1196
Starting at$810
1500
Sq Ft
1
Story
2
Bed
2
Bath
3
Car
Plan Collection
Plan Collection
Plan Collection
Plan#196-1216
Starting at$845
1727
Sq Ft
2
Story
2
Bed
2
Bath
2
Car