3-Bedroom, 3014 Sq Ft Farmhouse Plan with Dining Room

Front elevation of Farmhouse home (ThePlanCollection: House Plan #193-1228)

Images/Plans copyrighted by designer. Photos may reflect homeowner modifications.

About House Plan #193-1228

Sq Ft
3014
Sq Ft
Bedrooms
3
Bedrooms
Bathroom
3
Baths
Half Baths
2
Half Baths
Bedrooms
2
Cars
Bedrooms
2
Stories
Bedrooms
65' 0'
Width
Bedrooms
82
Depth
Starting at$1650.00What's included
STEP 1Bedrooms
STEP 2Bedrooms
STEP 3Bedrooms

Subtotal:$0
Plan Collection

How much will it cost to build?

Estimate your costs based on your location and materials.

Free Cost Instant Estimator

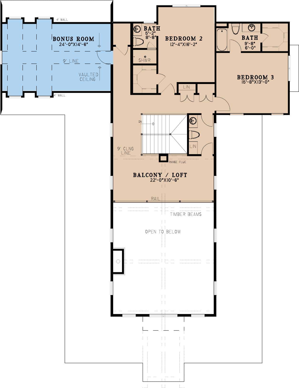
Floor Plans

Main Level
Main Level
Floor Plan Second Story
Floor Plan Second Story
Plan Collection

Can I modify this plan?

Yes! This plan can be customized—contact us for a free quote.

Additional Notes from Designer

For this designer, if you choose optional features such as but not limited to: 2x6 exterior walls, reverse or optional basement, the designer will need an additional 2-5 business days to adjust the plan accordingly. Please keep this in mind when choosing your shipping option. if you would like Express or Priority shipping, the designer will ship the plan to you using the method you choose but you will still have the 2-5 business day waiting period BEFORE they ship! This designer does not offer Framing. Please feel free to contact us with any questions!

This Single Family Farmhouse Traditional Style House Plan has 3014 square feet, 3 bedrooms, 3 bathrooms, and 2 half baths.

House Plan Description

What a spectacular, luxurious  house! This Farmhouse-Traditional style home is loaded with charm, comfort, and convenience, featuring a well designed 3014 square-foot floor plan with its many amenities like:

• Fireplace in the Great Room
• Laundry room with sink
• Huge walk-in kitchen pantry
• Powder room
• Roomy mud room with a bench

 

 

Home Details

Summary
Plan #:193-1228
Starting at:$1650.00
Floors:2
Bedrooms:3
Full Baths:3
Half Baths:2
Garage:
Square Footage
Heated Area:3014 Sq. Ft.
First Floor:1842 Sq. Ft.
Second Floor:1172 Sq. Ft.
Unheated Area:
Bonus Room:381 Sq. Ft.
Garage:621 Sq. Ft.
Porch:1303 Sq. Ft.
Dimensions
Architectural Styles
Exterior Wall Material
Vinyl SidingRock/StoneWood Siding
Roofing Type
Gable
Roofing Material
Metal
Roof Pitch
5/1210/12
Ceiling Height
10 Foot Ceiling9 Foot Ceiling
Special Feature
FireplaceDining RoomMud RoomBonus RoomFamily RoomMain Level LaundryLoftSplit BathroomStorageVaulted CeilingsBalconyOpen Floor Plan
Garage Type
Attached GarageSide Entry
Fireplaces
One Fireplace
Exterior Wall Framing
2x4
Building Lot Type
Corner Lot
Kitchen Features
Kitchen IslandWalk-in Pantry
Porches and Exterior Features
Wrap Around Porch
Master Suite Features
Main Floor MasterMaster BathroomWalk In ClosetSplit Master Bedroom

What’s Included

Most plan sets include the following:

icon text-secondary-400 included Each plan set includes the following:

icon text-secondary-400 included floorplan

icon text-secondary-400 included 4 side exterior elevations,

icon text-secondary-400 included electrical plan,

icon text-secondary-400 included birds-eye view of the roof,

icon text-secondary-400 included foundation plan,

icon text-secondary-400 included and some miscellaneous details. Please Note We do not offer framing, plumbing, HVAC, or window scheduling. This will have to be done on a local level, probably by your building team!

What’s Not Included

These items are  NOT included:

icon text-secondary-400 includedArchitectural or Engineering Stamp - handled locally if required.

icon text-secondary-400 includedSite Plan - handled locally when required.

icon text-secondary-400 includedMechanical Drawings (location of heating and air equipment and ductwork) - your subcontractors handle this.

icon text-secondary-400 includedPlumbing Drawings (drawings showing the actual plumbing pipe sizes and locations) - your subcontractors handle this.

icon text-secondary-400 includedEnergy calculations - handled locally when required.

icon text-secondary-400 includedNo Framing

Related House Plans

Plan Collection
Plan Collection
Plan Collection
Plan#117-1103
Starting at$1345
2847
Sq Ft
2
Story
3
Bed
3
Bath
3
Car
Plan Collection
Plan Collection
Plan Collection
Plan#106-1324
Starting at$1695
2484
Sq Ft
2
Story
3
Bed
3.5
Bath
3
Car
Plan Collection
Plan Collection
Plan Collection
Plan#117-1124
Starting at$1095
2396
Sq Ft
2
Story
3
Bed
3
Bath
2
Car
View All

Other Plans By This Designer

Plan Collection
Plan Collection
Plan Collection
Plan#193-1108
Starting at$1350
1905
Sq Ft
1.5
Story
3
Bed
2
Bath
0
Car
Plan Collection
Plan Collection
Plan Collection
Plan#193-1179
Starting at$1000
2006
Sq Ft
1.5
Story
3
Bed
2.5
Bath
2
Car
Plan Collection
Plan Collection
Plan Collection
Plan#193-1145
Starting at$1200
1897
Sq Ft
1
Story
4
Bed
2.5
Bath
3
Car