4-Bedroom, 3011 Sq Ft Rustic Plan with Outdoor Lounge

Front elevation of Rustic home (ThePlanCollection: House Plan #195-1310)

Images/Plans copyrighted by designer. Photos may reflect homeowner modifications.

About House Plan #195-1310

Sq Ft
3011
Sq Ft
Bedrooms
4
Bedrooms
Bathroom
3
Baths
Half Baths
0
Half Baths
Bedrooms
3
Cars
Bedrooms
2
Stories
Bedrooms
87' 0'
Width
Bedrooms
64
Depth
Starting at$1160.00What's included
STEP 1Bedrooms
STEP 2Bedrooms
STEP 3Bedrooms

Subtotal:$0
Plan Collection

How much will it cost to build?

Estimate your costs based on your location and materials.

Free Cost Instant Estimator

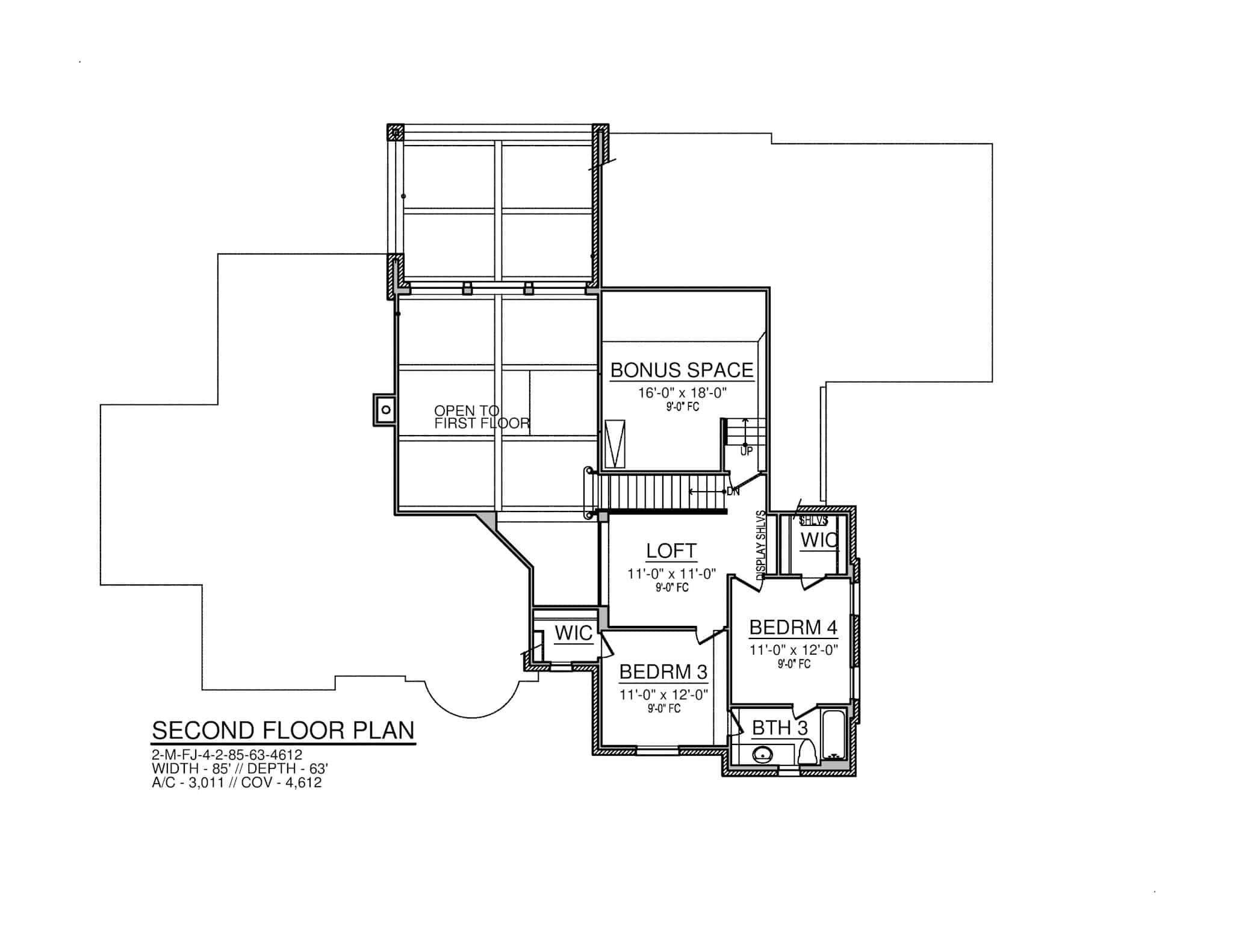
Floor Plans

Main Level
Main Level
Upper Level
Upper Level
Plan Collection

Can I modify this plan?

Yes! This plan can be customized—contact us for a free quote.

Additional Notes from Designer

This designer does not offer ICF!

House Plan Description

Exhibitng Eustic elements, this Tudor style beauty encompasses 3,011 square feet, featuring 4 bedrooms, 3 baths, and a 3-car garage. In addition, it offers a delightful variety of amenities:

  • Family Room, Study Room, Outdoor Lounge, Bonus Room, Loft
  • Jack & Jill Bathroom, Breakfast Area, Kitchen with Walk-in Pantry
  • Master Bedroom with Walk-in Closet, Master Bathroom

Home Details

Summary
Plan #:195-1310
Starting at:$1160.00
Floors:2
Bedrooms:4
Full Baths:3
Half Baths:0
Garage:
Square Footage
Heated Area:3011 Sq. Ft.
First Floor:2350 Sq. Ft.
Second Floor:660 Sq. Ft.
Unheated Area:
Bonus Room:268 Sq. Ft.
Garage:1017 Sq. Ft.
Dimensions
Architectural Styles
Exterior Wall Material
Brick
Roofing Type
Gable/Dormer
Roofing Material
Asphalt Shingles
Roof Pitch
16/12
Ceiling Height
9 Foot Ceiling11 Foot Ceiling
Special Feature
FireplaceHome OfficeMud RoomBonus RoomFamily RoomMain Level LaundryLoftSplit BathroomStorageVaulted CeilingsOpen Floor Plan
Garage Type
Attached GarageSide Entry
Fireplaces
One Fireplace
Building Lot Type
Flat Site
Kitchen Features
Kitchen IslandNook/Breakfast AreaWalk-in Pantry
Porches and Exterior Features
Covered Front PorchPatio
Master Suite Features
Main Floor MasterMaster BathroomWalk In Closet

What’s Included

Most plan sets include the following:

icon text-secondary-400 includedDimension Plan

icon text-secondary-400 includedNotation Plan

icon text-secondary-400 includedElectrical Layout

icon text-secondary-400 includedElevations

icon text-secondary-400 includedRoof Plan

icon text-secondary-400 includedGeneral Specifications

icon text-secondary-400 includedGeneral Details

What’s Not Included

These items are  NOT included:

icon text-secondary-400 includedArchitectural or Engineering Stamp - handled locally if required.

icon text-secondary-400 includedSite Plan - handled locally when required.

icon text-secondary-400 includedMechanical Drawings (location of heating and air equipment and ductwork) - your subcontractors handle this.

icon text-secondary-400 includedPlumbing Drawings (drawings showing the actual plumbing pipe sizes and locations) - your subcontractors handle this.

icon text-secondary-400 includedEnergy calculations - handled locally when required.

Related House Plans

Plan Collection
Plan Collection
Plan Collection
Plan#153-1020
Starting at$1200
2373
Sq Ft
2
Story
4
Bed
3
Bath
3
Car
Plan Collection
Plan Collection
Plan Collection
Plan#175-1132
Starting at$1900
3276
Sq Ft
2
Story
4
Bed
3.5
Bath
2
Car
Plan Collection
Plan Collection
Plan Collection
Plan#102-1026
Starting at$1300
2750
Sq Ft
2
Story
4
Bed
3.5
Bath
2
Car
View All

Other Plans By This Designer

Plan Collection
Plan Collection
Plan Collection
Plan#195-1216
Starting at$3295
7587
Sq Ft
2
Story
5
Bed
6.5
Bath
3
Car
Plan Collection
Plan Collection
Plan Collection
Plan#195-1307
Starting at$7995
12720
Sq Ft
2
Story
5
Bed
6.5
Bath
5
Car
Plan Collection
Plan Collection
Plan Collection
Plan#195-1127
Starting at$9995
14727
Sq Ft
2
Story
9
Bed
8.5
Bath
9
Car