Estimate your costs based on your location and materials.
Yes! This plan can be customized—contact us for a free quote.
Yes! This plan can be customized—contact us for a free quote.
PLEASE NOTE!! For this designer, The PDF that comes with the PRINT Packages (5 set+PDF and 8 set+PDF) is NOT Modifiable - it is for printing ONLY!
PLEASE NOTE!! Optional Foundations (foundations that cost extra money) will take 5-10 business days to complete.
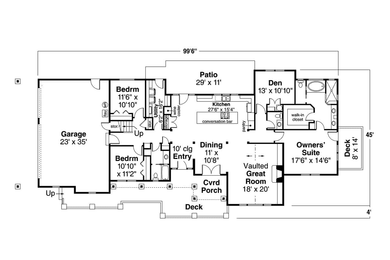
This single-family Ranch Style House Plan has 3002 living square feet, 3 bedrooms, and 2.5 bathrooms.
Experience the comfortable lifestyle offered by this Ranch-style house with Traditional characteristics. You’ll be amazed by the open and desirable ambiance, enhanced by the numerous large multi-pane windows that make the rooms throughout the house sunny and bright. The well-designed 1-story floor plan has 3002 square feet of heated and cooled living space and includes these special amenities:
• Open concept
• Vaulted Ceiling
• Fireplace in the Great Room
• Powder room
Estimate your costs based on your location and materials.
All sales of house plans, modifications, and other products found on this site are final. No refunds or exchanges can be given once your order has begun the fulfillment process. Please see our Policies for additional information.
All plans offered on ThePlanCollection.com are designed to conform to the local building codes when and where the original plan was drawn.
The homes as shown in photographs and renderings may differ from the actual blueprints. For more detailed information, please review the floor plan images herein carefully.
Estimate your costs based on your location and materials.