Estimate your costs based on your location and materials.
Yes! This plan can be customized—contact us for a free quote.
Yes! This plan can be customized—contact us for a free quote.
When ordering RRR, please know that it could take an additional 3-5 business days to complete BEFORE your order is sent out, regardless of the package ordered.
Some of the plans with a RRR will requite drafting and for these specific plans, they will be available and completed March 20th, 2023
NOTE: Porch sq ft figures may inclulde any deck sq ft as well.
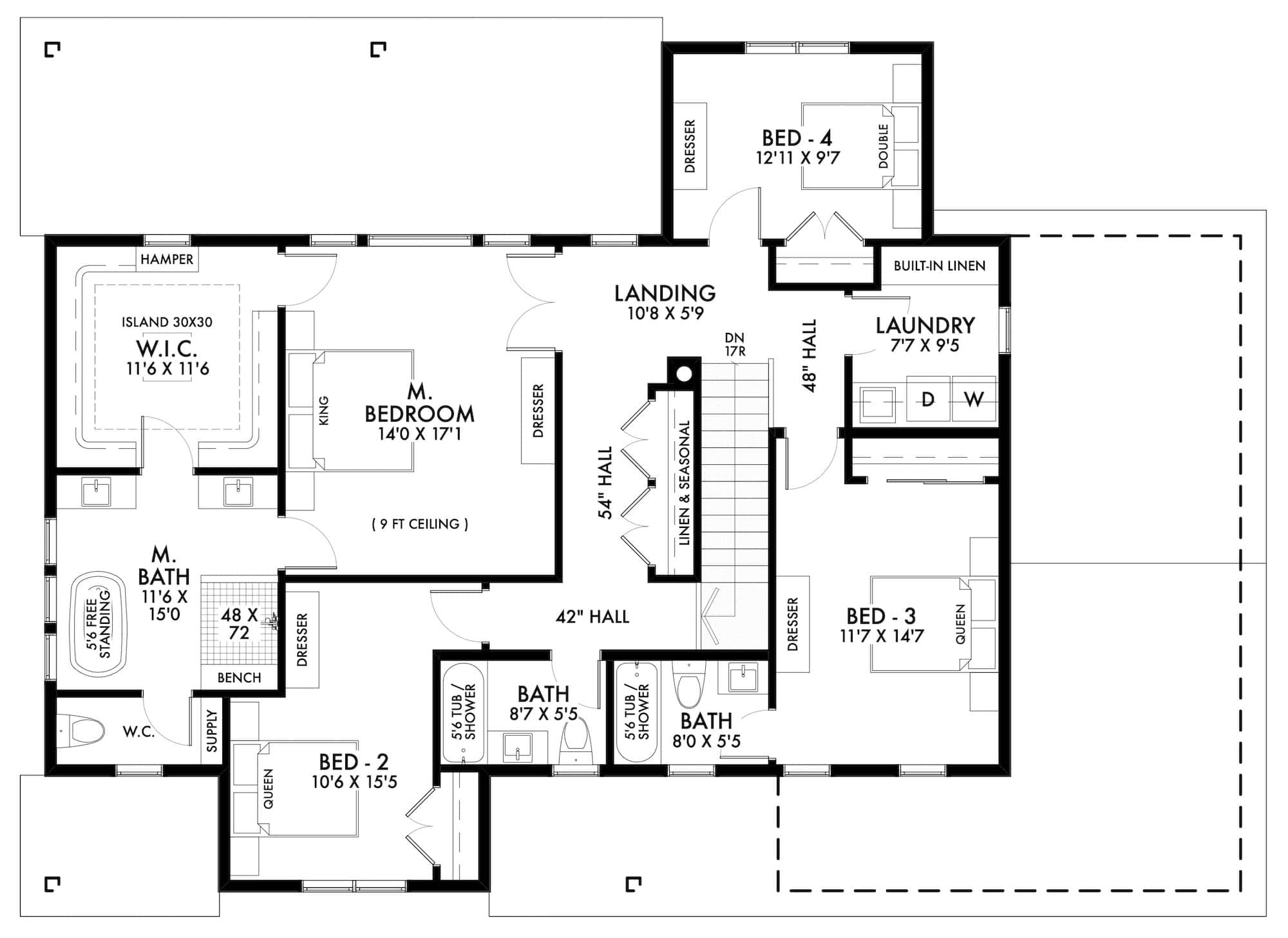
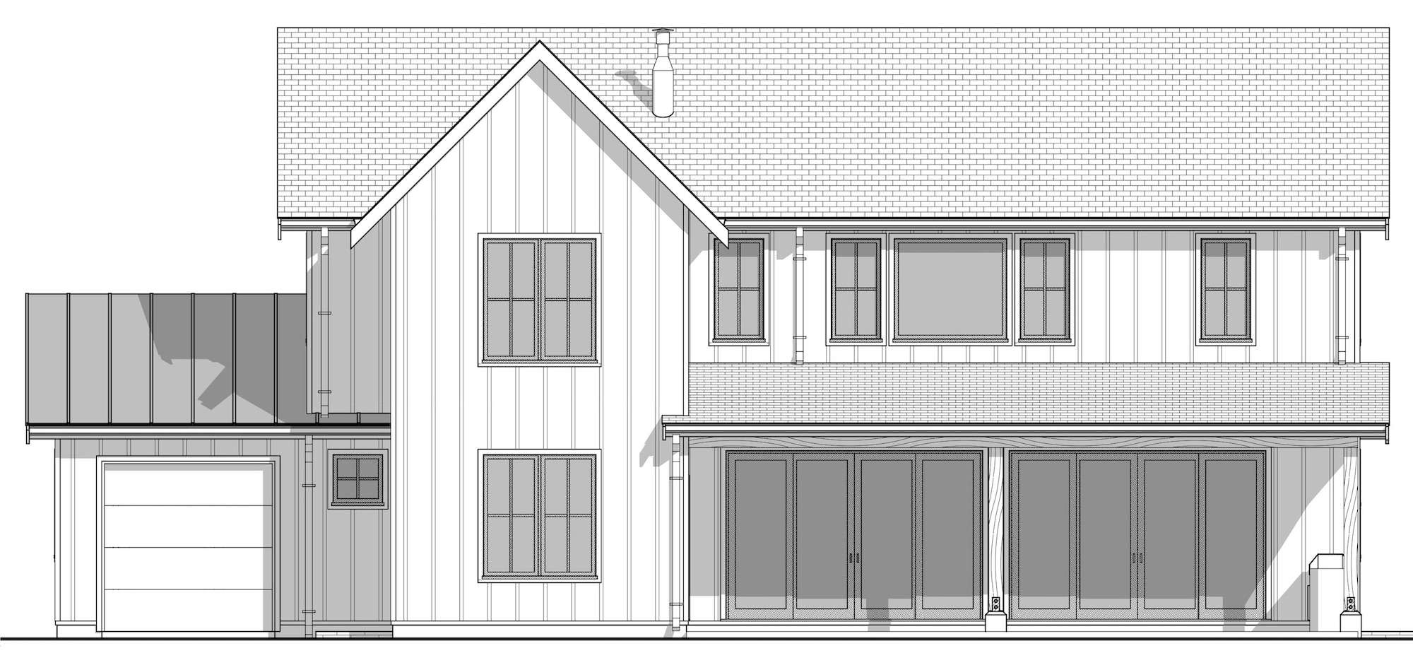
Encompassing 2,995 square feet, this exquisite Modern Farmhouse dwelling infused with Contemporary influences comprises 5 bedrooms, 3.5 baths, and a 2-car garage. The remarkable amenities within this stunning abode includes:
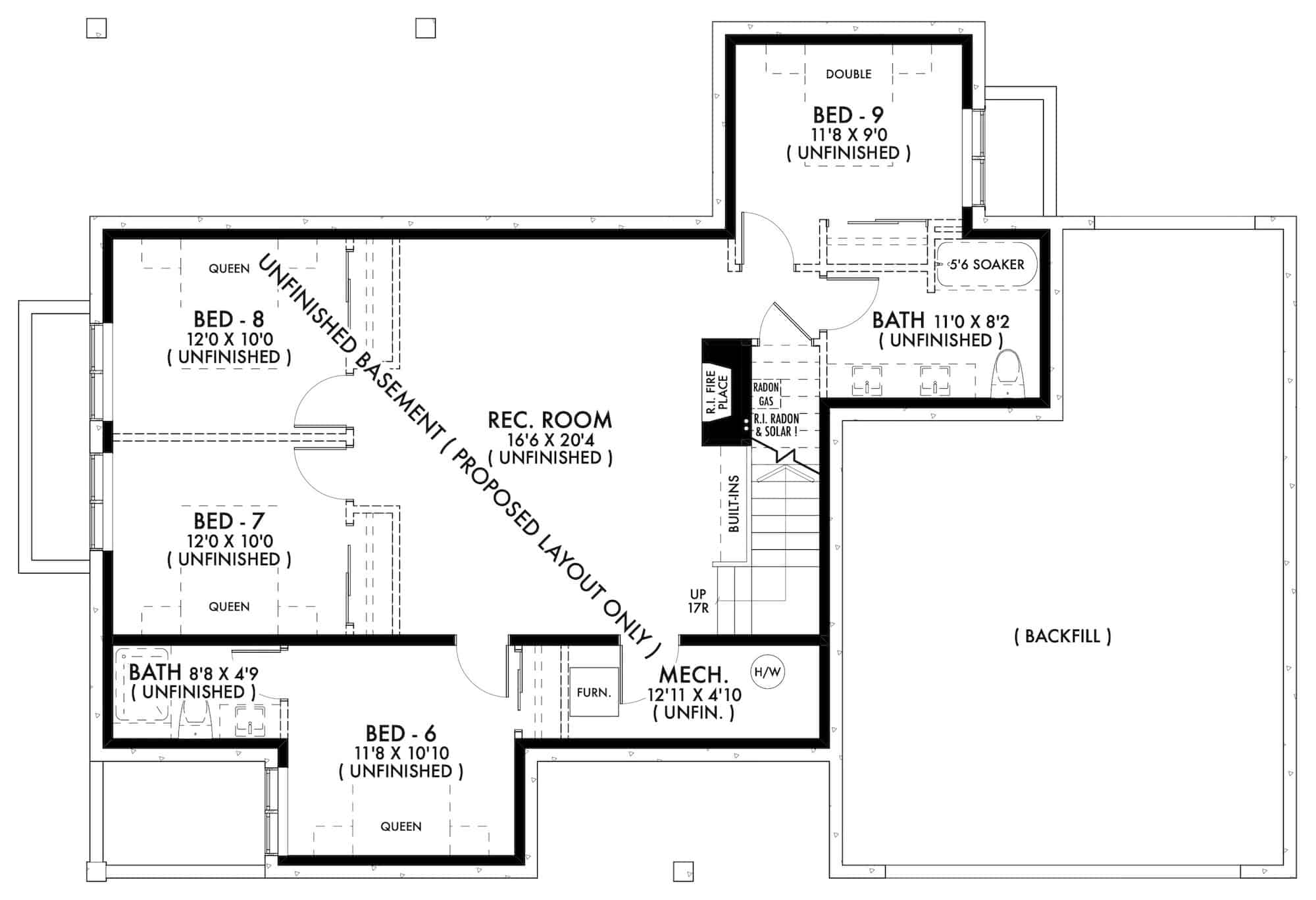
An optional finished basement extends the space by 1,302 square feet, accommodating 4 more bedrooms, 2 more baths, and a rec room.
Estimate your costs based on your location and materials.
All sales of house plans, modifications, and other products found on this site are final. No refunds or exchanges can be given once your order has begun the fulfillment process. Please see our Policies for additional information.
All plans offered on ThePlanCollection.com are designed to conform to the local building codes when and where the original plan was drawn.
The homes as shown in photographs and renderings may differ from the actual blueprints. For more detailed information, please review the floor plan images herein carefully.
Estimate your costs based on your location and materials.