Estimate your costs based on your location and materials.
Yes! This plan can be customized—contact us for a free quote.
Yes! This plan can be customized—contact us for a free quote.
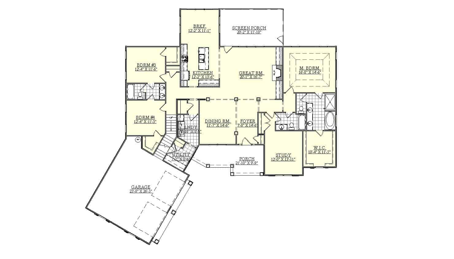
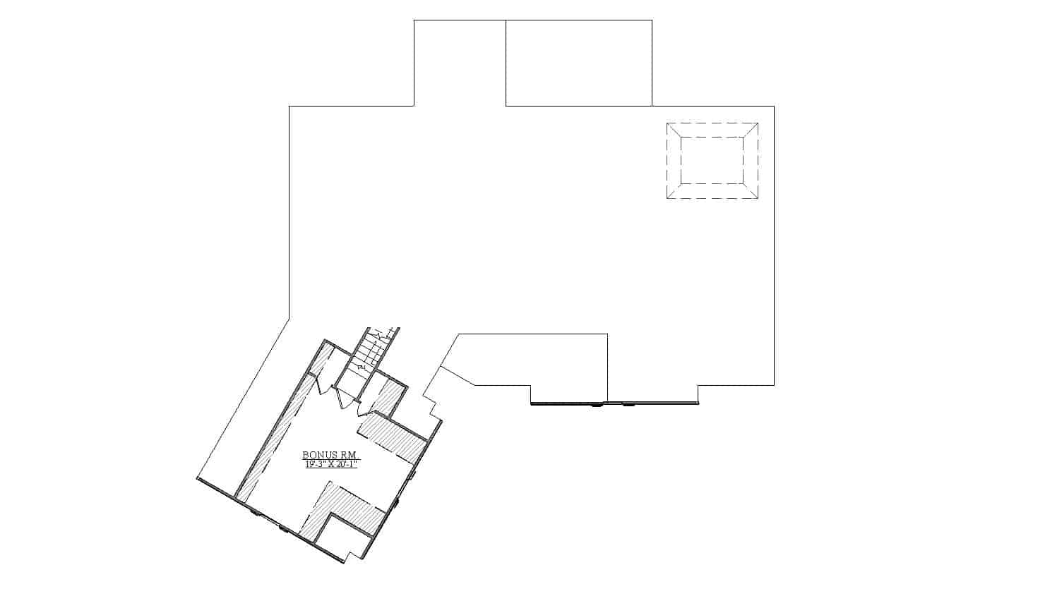
You'll love the simple design of this Country Ranch style home. The plan features an angled garage with bonus room above and has a wide-open floor plan. The house has a total area of 4,040 square feet of finished and unfinished space under its roof, and its angled 622- square-foot 2-car garage opens at the courtyard.
Upon stepping up to the front of the house, you'll find the covered front porch and grand entrance door. Beyond, the open-floor-plan Great Room opens to the rear screened porch, which can double the space of the...
Estimate your costs based on your location and materials.
All sales of house plans, modifications, and other products found on this site are final. No refunds or exchanges can be given once your order has begun the fulfillment process. Please see our Policies for additional information.
All plans offered on ThePlanCollection.com are designed to conform to the local building codes when and where the original plan was drawn.
The homes as shown in photographs and renderings may differ from the actual blueprints. For more detailed information, please review the floor plan images herein carefully.
Estimate your costs based on your location and materials.