4-Bedroom, 2980 Sq Ft Coastal Plan with Main Floor Master

Front elevation of Coastal home (ThePlanCollection: House Plan #133-1024)

Images/Plans copyrighted by designer. Photos may reflect homeowner modifications.

About House Plan #133-1024

Sq Ft
2980
Sq Ft
Bedrooms
4
Bedrooms
Bathroom
3
Baths
Half Baths
0
Half Baths
Bedrooms
2
Cars
Bedrooms
1
Stories
Bedrooms
69' 4'
Width
Bedrooms
95
Depth
Starting at$2682.00What's included
STEP 1Bedrooms
STEP 2Bedrooms
STEP 3Bedrooms

Subtotal:$0
Plan Collection

How much will it cost to build?

Estimate your costs based on your location and materials.

Free Cost Instant Estimator

Floor Plans

Floor Plan
Floor Plan
Plan Collection

Can I modify this plan?

Yes! This plan can be customized—contact us for a free quote.

Additional Notes from Designer

Please Note that the designer's office will be closed between 8/4/22 to 8/9/2022. Any orders placed during this time will be processed once the designer resumes office after 8/9-2022.

House Plan Description

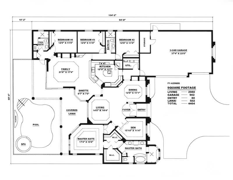
This beautiful Mediterranean style, one-story, single-family home is complimented with 4 Bedrooms and 3 Baths. A spacious master suite with two large walk-in closets and a gorgeous master bath influence this home. If entertaining is your style, then make use of the spacious kitchen for those cocktail parties while entertaining your guests in the formal living area. Take a nice retreat into the family room complete with built-ins and corner pocket sliding glass doors overlooking the outdoor living area. A 3-car garage completes the final touches of this captivating house. This Mediterranean...

Home Details

Summary
Plan #:133-1024
Starting at:$2682.00
Floors:1
Bedrooms:4
Full Baths:3
Half Baths:0
Garage:
Square Footage
Heated Area:2980 Sq. Ft.
First Floor:2980 Sq. Ft.
Unheated Area:
Garage:502 Sq. Ft.
Dimensions
Width:69' 4''
Depth:95' 4''
Ridge Height:25' 0''
Architectural Styles
Exterior Wall Material
Stucco
Roofing Material
Tiles
Roof Pitch
6/12
Ceiling Height
10 Foot Ceiling
Special Feature
Dining RoomGuest RoomHome OfficeFamily RoomMain Level LaundryStorageDenVaulted Ceilings
Garage Type
Attached GarageCourtyard Entry
Exterior Wall Framing
Concrete
Kitchen Features
Kitchen IslandNook/Breakfast AreaPeninsula/Eating Bar
Porches and Exterior Features
CourtyardCovered Rear PorchScreened in LanaiCovered Lanai
Master Suite Features
Main Floor MasterMaster Bathroom

What’s Included

Most plan sets include the following:

icon text-secondary-400 includedFLOOR PLAN: Showing all dimensions, window and door locations, laminated beams, columns, floor materials, ceiling heights, fireplace size, and specifications.

icon text-secondary-400 includedFOUNDATION PLAN: Dimensioned plan detailing the location and size of footings, slabs, reinforcing steel, and other structural elements that are required to support the load of the upper floors.

icon text-secondary-400 includedROOF PLAN: Dimensioned plan showing the elements that make up the roof, including notation of spacing and schematics of peaks and valleys.

icon text-secondary-400 includedELECTRICAL LAYOUT:Specifications, notes, schedules, and plan defining the location of panels, service, lighting fixtures, switches, outlets, fans, etc. NOTE – PLEASE VERIFY

icon text-secondary-400 includedFRONT, REAR, AND SIDE ELEVATIONS:The front, rear, and side elevations of the house as drawn. Shows placement of doors & windows on exterior of house, as well as roof pitches, ridge heights, and locations of chimney, exterior vents, etc. The elevations show the positioning of the final grade of the lot, exterior finishes, and other details that are necessary to give the home exterior architectural styling.

icon text-secondary-400 includedCROSS SECTIONS AND INTERIOR DETAILS:Explain certain special conditions more appropriately. A cross section is basically a view of the home (or parts of the home) if it were sliced down the center. These details can be helpful for the contractor.

What’s Not Included

These items are  NOT included:

icon text-secondary-400 includedArchitectural or Engineering Stamp - handled locally if required.

icon text-secondary-400 includedSite Plan - handled locally when required.

icon text-secondary-400 includedMechanical Drawings (location of heating and air equipment and ductwork) - your subcontractors handle this.

icon text-secondary-400 includedPlumbing Drawings (drawings showing the actual plumbing pipe sizes and locations) - your subcontractors handle this.

icon text-secondary-400 includedEnergy calculations - handled locally when required.

Related House Plans

Plan Collection
Plan Collection
Plan Collection
Plan#142-1244
Starting at$1545
3086
Sq Ft
1
Story
4
Bed
3.5
Bath
3
Car
Plan Collection
Plan Collection
Plan Collection
Plan#142-1167
Starting at$1545
3194
Sq Ft
1
Story
4
Bed
3.5
Bath
3
Car
Plan Collection
Plan Collection
Plan Collection
Plan#125-1025
Starting at$0
3443
Sq Ft
1
Story
4
Bed
3.5
Bath
3
Car
View All

Other Plans By This Designer

Plan Collection
Plan Collection
Plan Collection
Plan#133-1029
Starting at$0
2537
Sq Ft
1
Story
3
Bed
3
Bath
2
Car
Plan Collection
Plan Collection
Plan Collection
Plan#133-1021
Starting at$0
2208
Sq Ft
1
Story
3
Bed
2
Bath
2
Car
Plan Collection
Plan Collection
Plan Collection
Plan#133-1086
Starting at$0
3489
Sq Ft
1
Story
3
Bed
4.5
Bath
3
Car