Estimate your costs based on your location and materials.
Yes! This plan can be customized—contact us for a free quote.
Yes! This plan can be customized—contact us for a free quote.
On some plans, Basement Foundations, Walkout Basement Foundations & 2x6 Conversions could take up to ONE WEEK to produce. Materials Lists could take up to FOUR WEEKS to produce and they will be for the ORIGINAL plan! Any modifications will NOT be reflected on the Materials List. NOTE FROM DESIGNER: If you purchase a CAD, you will automatically receive the unlimited build license - no need to purchase separately!
This single-family Contemporary-Ranch Style House Plan has 2977 living square feet, 4 bedrooms, 3.5 bathrooms, and a 2-car garage space.
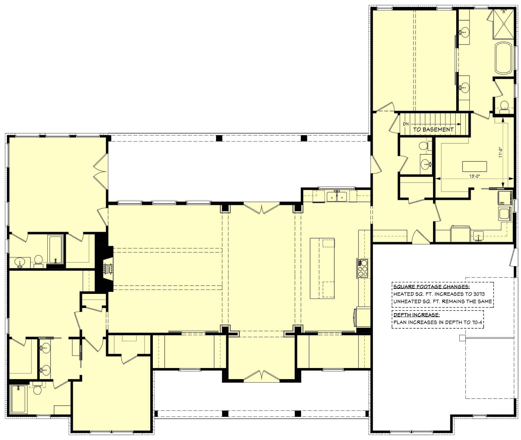
Note 1: With the basement option, the home has a total of 3073 heated square feet and the depth is 70’ 4”.
Note 2: Porch sq ft figures may include any deck sq ft as well.
An impressive feat of architectural design achievement is displayed by this Contemporary-Ranch home. With just the right amount of space inside and out, this sunny home is the perfect ambiance for a growing family. The beautiful 1-story floor plan has 2977 square feet of heated-cooled living space and includes these lovely amenities such as:
• Huge walk-in pantry
• Home office
• Fireplace in the Great Room
• Oversized 2-car garage
• Lots of storage space
Estimate your costs based on your location and materials.
All sales of house plans, modifications, and other products found on this site are final. No refunds or exchanges can be given once your order has begun the fulfillment process. Please see our Policies for additional information.
All plans offered on ThePlanCollection.com are designed to conform to the local building codes when and where the original plan was drawn.
The homes as shown in photographs and renderings may differ from the actual blueprints. For more detailed information, please review the floor plan images herein carefully.
Estimate your costs based on your location and materials.