3-Bedroom, 2950 Sq Ft Craftsman Plan with Mud Room

Craftsman home (ThePlanCollection: Plan #196-1153)

Images/Plans copyrighted by designer. Photos may reflect homeowner modifications.

About House Plan #196-1153

Sq Ft
2950
Sq Ft
Bedrooms
3
Bedrooms
Bathroom
2
Baths
Half Baths
1
Half Baths
Bedrooms
3
Cars
Bedrooms
1.5
Stories
Bedrooms
110' 7'
Width
Bedrooms
75
Depth
Starting at$1725.00What's included
STEP 1Bedrooms
STEP 2Bedrooms
STEP 3Bedrooms

Subtotal:$0
Plan Collection

How much will it cost to build?

Estimate your costs based on your location and materials.

Free Cost Instant Estimator

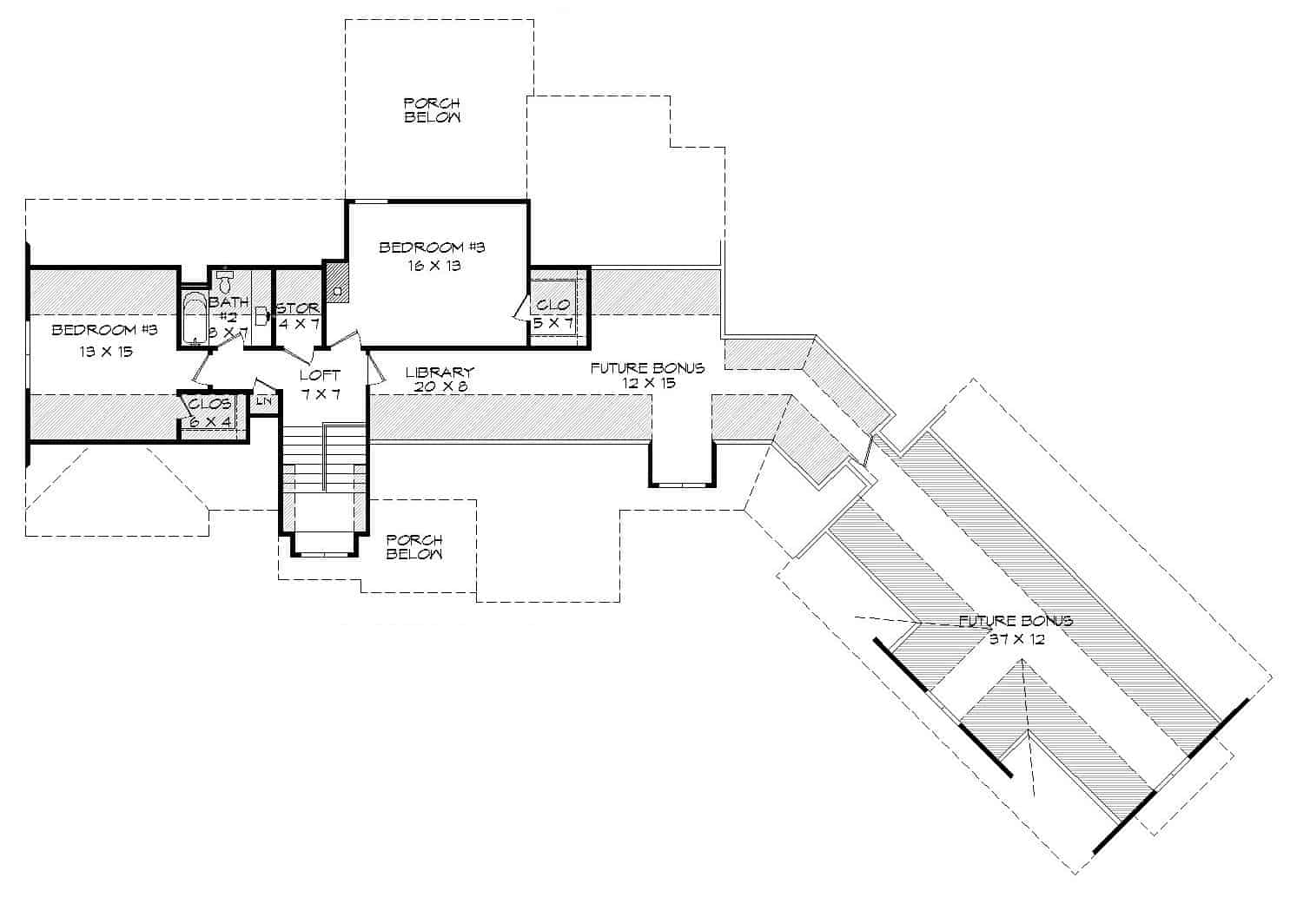
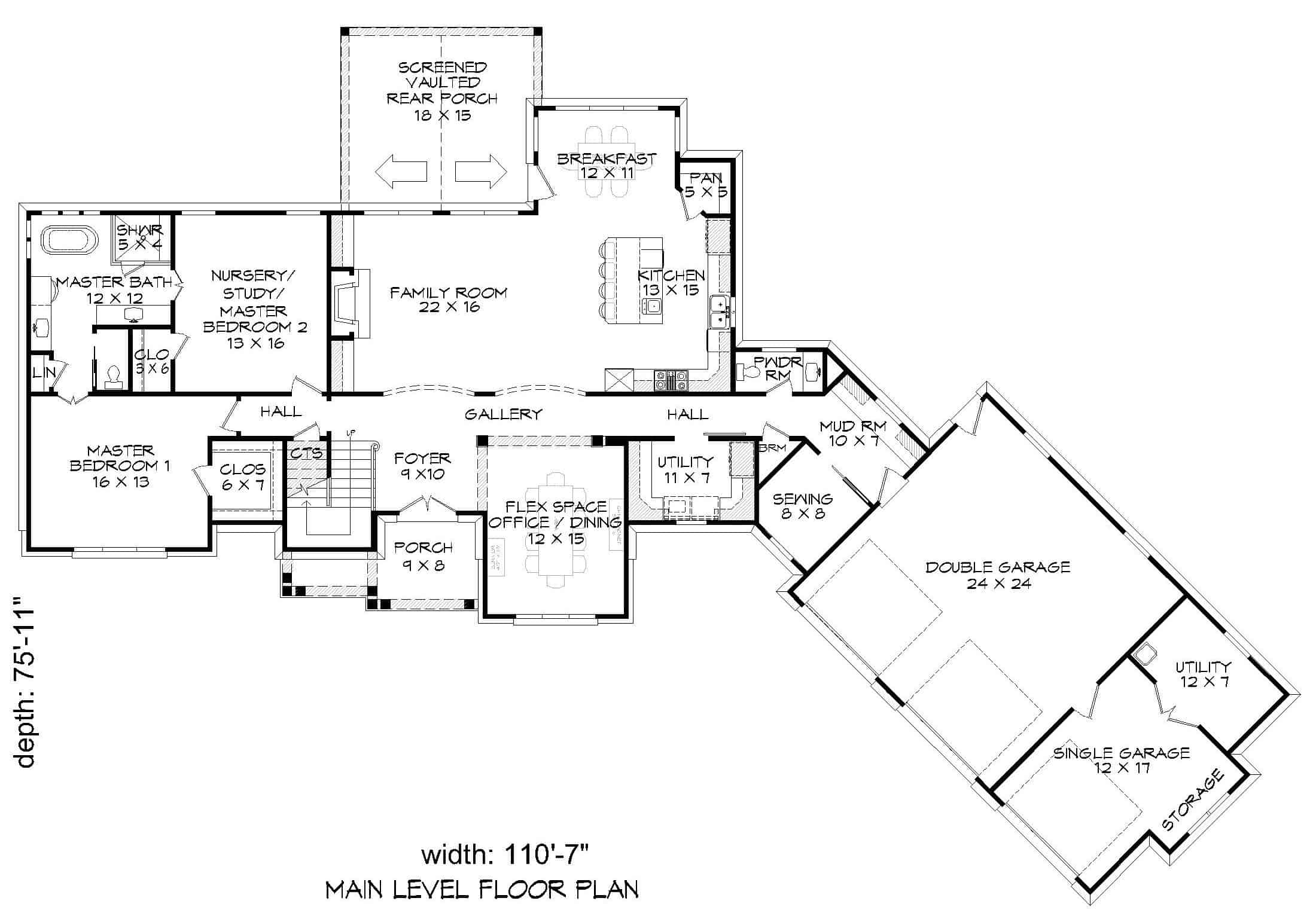
Floor Plans

Floor Plan Main Level
Floor Plan Main Level
Floor Plan Upper Level
Floor Plan Upper Level
Plan Collection

Can I modify this plan?

Yes! This plan can be customized—contact us for a free quote.

Additional Notes from Designer

NOTE FROM DESIGNER REGARDING PLAN PURCHASES: 80% of a 5 set purchase price can be applied to any PDF or CAD license upgrade. Additionally, 80% of PDF Study purchase price can be applied to any CAD or PDF license upgrade.

House Plan Description

This stunning Craftsman style home with European qualities (Plan #196-1153) has 2950 square feet of living space. The 1.5-story floor plan includes 3 bedrooms.

Home Details

Summary
Plan #:196-1153
Starting at:$1725.00
Floors:1.5
Bedrooms:3
Full Baths:2
Half Baths:1
Garage:
Square Footage
Heated Area:2950 Sq. Ft.
First Floor:2225 Sq. Ft.
Second Floor:725 Sq. Ft.
Unheated Area:
Garage:947 Sq. Ft.
Porch:383 Sq. Ft.
Dimensions
Width:110' 7''
Depth:75' 11''
Architectural Styles
Exterior Wall Material
Vinyl SidingRock/StoneWood Siding
Roofing Type
Gable/Dormer
Roofing Material
Asphalt Shingles
Roof Pitch
12/12
Ceiling Height
9 Foot Ceiling
Special Feature
FireplaceDining RoomMud RoomFamily RoomMain Level LaundryLibraryLoftStorageVaulted CeilingsWorkshopOpen Floor Plan
Garage Type
Attached GarageCourtyard Entry
Fireplaces
One Fireplace
Exterior Wall Framing
2x4
Kitchen Features
Kitchen IslandNook/Breakfast AreaWalk-in PantryPeninsula/Eating BarEat-In Kitchen
Porches and Exterior Features
Covered Front PorchCovered Rear Porch
Master Suite Features
Main Floor MasterMaster BathroomWalk In ClosetSplit Master Bedroom

What’s Included

Most plan sets include the following:

What’s Not Included

These items are  NOT included:

Related House Plans

Plan Collection
Plan Collection
Plan Collection
Plan#142-1180
Starting at$1345
2282
Sq Ft
1.5
Story
3
Bed
2.5
Bath
2
Car
Plan Collection
Plan Collection
Plan Collection
Plan#142-1166
Starting at$1395
2469
Sq Ft
1.5
Story
3
Bed
2
Bath
2
Car
Plan Collection
Plan Collection
Plan Collection
Plan#117-1094
Starting at$1095
2495
Sq Ft
1.5
Story
3
Bed
2.5
Bath
3
Car
View All

Other Plans By This Designer

Plan Collection
Plan Collection
Plan Collection
Plan#196-1211
Starting at$695
650
Sq Ft
2
Story
1
Bed
1
Bath
2
Car
Plan Collection
Plan Collection
Plan Collection
Plan#196-1196
Starting at$810
1500
Sq Ft
1
Story
2
Bed
2
Bath
3
Car
Plan Collection
Plan Collection
Plan Collection
Plan#196-1216
Starting at$845
1727
Sq Ft
2
Story
2
Bed
2
Bath
2
Car