4-Bedroom, 2891 Sq Ft Colonial Plan with Walk In Closet

Main image for Colonial houseplans # 1898

Images/Plans copyrighted by designer. Photos may reflect homeowner modifications.

About House Plan #164-1113

Sq Ft
2891
Sq Ft
Bedrooms
4
Bedrooms
Bathroom
2
Baths
Half Baths
1
Half Baths
Bedrooms
2
Cars
Bedrooms
2
Stories
Bedrooms
61' 10'
Width
Bedrooms
37
Depth
Starting at$1312.50What's included
STEP 1Bedrooms
STEP 2Bedrooms
STEP 3Bedrooms

Subtotal:$0
Plan Collection

How much will it cost to build?

Estimate your costs based on your location and materials.

Free Cost Instant Estimator

Floor Plans

Main Floor Plan
Main Floor Plan
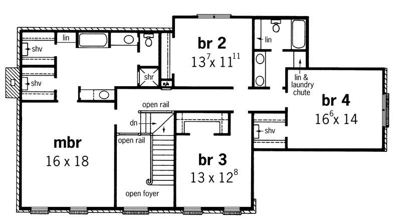
upper floor
upper floor
Plan Collection

Can I modify this plan?

Yes! This plan can be customized—contact us for a free quote.

House Plan Description

Colonial House Plans RG2805-A has a great country style. The Great Room, with its Built-In shelves next to the Fireplace & Wet Bar is a perfect example. The Large Kitchen With Breakfast Area & Built-In Desk is well lit by bay windows. The Formal Living & Dining Room are on either side of the foyer. On the second floor, the Spacious Master Suite and Bath has Separate Vanities, a Shower & Whirlpool Tub, and Ample Storage Space.

Home Details

Summary
Plan #:164-1113
Starting at:$1312.50
Floors:2
Bedrooms:4
Full Baths:2
Half Baths:1
Garage:
Square Footage
Heated Area:2891 Sq. Ft.
First Floor:1385 Sq. Ft.
Second Floor:1506 Sq. Ft.
Unheated Area:
Garage:576 Sq. Ft.
Dimensions
Width:61' 10''
Depth:37' 5''
Ridge Height:29'-0' 0''
Architectural Styles
Exterior Wall Material
Stucco
Roofing Type
Hip
Roofing Material
Asphalt Shingles
Roof Pitch
8/12
Ceiling Height
9 Foot Ceiling
Special Feature
FireplaceDining RoomMain Level LaundrySplit BathroomStorageDen
Garage Type
Attached GarageSide Entry
Fireplaces
One Fireplace
Building Lot Type
Flat Site
Kitchen Features
Nook/Breakfast AreaWalk-in PantryPeninsula/Eating BarEat-In Kitchen
Master Suite Features
Master BathroomWalk In ClosetSecond Floor Master

What’s Included

Most plan sets include the following:

icon text-secondary-400 includedCover sheet

icon text-secondary-400 includedFoundation plan

icon text-secondary-400 includedFloor plan

icon text-secondary-400 includedElectrical layout

icon text-secondary-400 includedExterior elevations

icon text-secondary-400 includedBuilding sections

icon text-secondary-400 includedSpecifications

icon text-secondary-400 includedCabinet details

icon text-secondary-400 includedRoof plan

icon text-secondary-400 includedMiscellaneous details

What’s Not Included

These items are  NOT included:

icon text-secondary-400 includedArchitectural or Engineering Stamp - handled locally if required.

icon text-secondary-400 includedSite Plan - handled locally when required.

icon text-secondary-400 includedMechanical Drawings (location of heating and air equipment and ductwork) - your subcontractors handle this.

icon text-secondary-400 includedPlumbing Drawings (drawings showing the actual plumbing pipe sizes and locations) - your subcontractors handle this.

icon text-secondary-400 includedEnergy calculations - handled locally when required.

Related House Plans

Plan Collection
Plan Collection
Plan Collection
Plan#153-1750
Starting at$1100
2889
Sq Ft
2
Story
4
Bed
2.5
Bath
2
Car
Plan Collection
Plan Collection
Plan Collection
Plan#168-1077
Starting at$2600
2938
Sq Ft
2
Story
4
Bed
2.5
Bath
3
Car
Plan Collection
Plan Collection
Plan Collection
Plan#158-1251
Starting at$1455
2841
Sq Ft
2
Story
4
Bed
2.5
Bath
2
Car
View All

Other Plans By This Designer

Plan Collection
Plan Collection
Plan Collection
Plan#164-1271
Starting at$1313
2680
Sq Ft
1
Story
4
Bed
3
Bath
2
Car
Plan Collection
Plan Collection
Plan Collection
Plan#164-1235
Starting at$938
1088
Sq Ft
1
Story
2
Bed
2
Bath
2
Car
Plan Collection
Plan Collection
Plan Collection
Plan#164-1142
Starting at$1313
2539
Sq Ft
2
Story
4
Bed
3.5
Bath
2
Car