3-Bedroom, 2858 Sq Ft Contemporary Plan with Second Floor Master

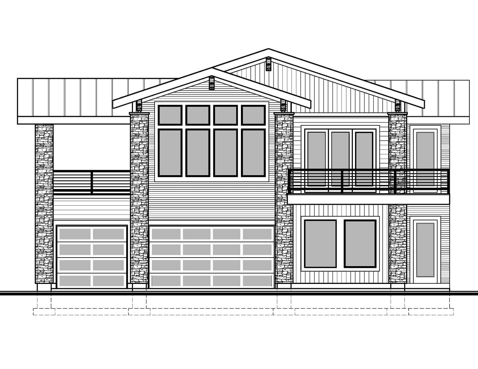
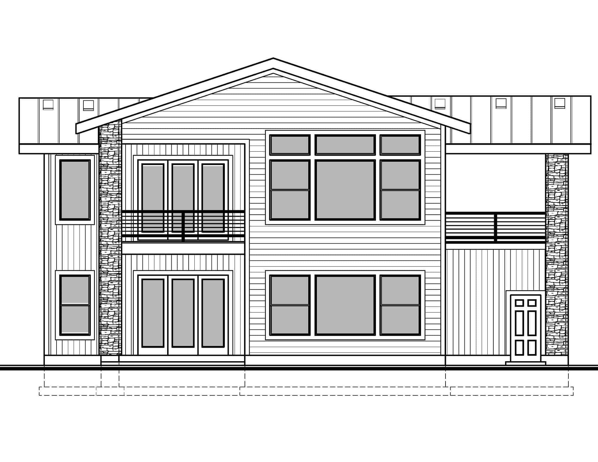
Front elevation of Contemporary home (ThePlanCollection: House Plan #208-1031)

Images/Plans copyrighted by designer. Photos may reflect homeowner modifications.

About House Plan #208-1031

Sq Ft
2858
Sq Ft
Bedrooms
3
Bedrooms
Bathroom
2
Baths
Half Baths
1
Half Baths
Bedrooms
3
Cars
Bedrooms
2
Stories
Bedrooms
52' 0'
Width
Bedrooms
55
Depth
Starting at$1675.00What's included
STEP 1Bedrooms
STEP 2Bedrooms
STEP 3Bedrooms

Subtotal:$0
Plan Collection

How much will it cost to build?

Estimate your costs based on your location and materials.

Free Cost Instant Estimator

Floor Plans

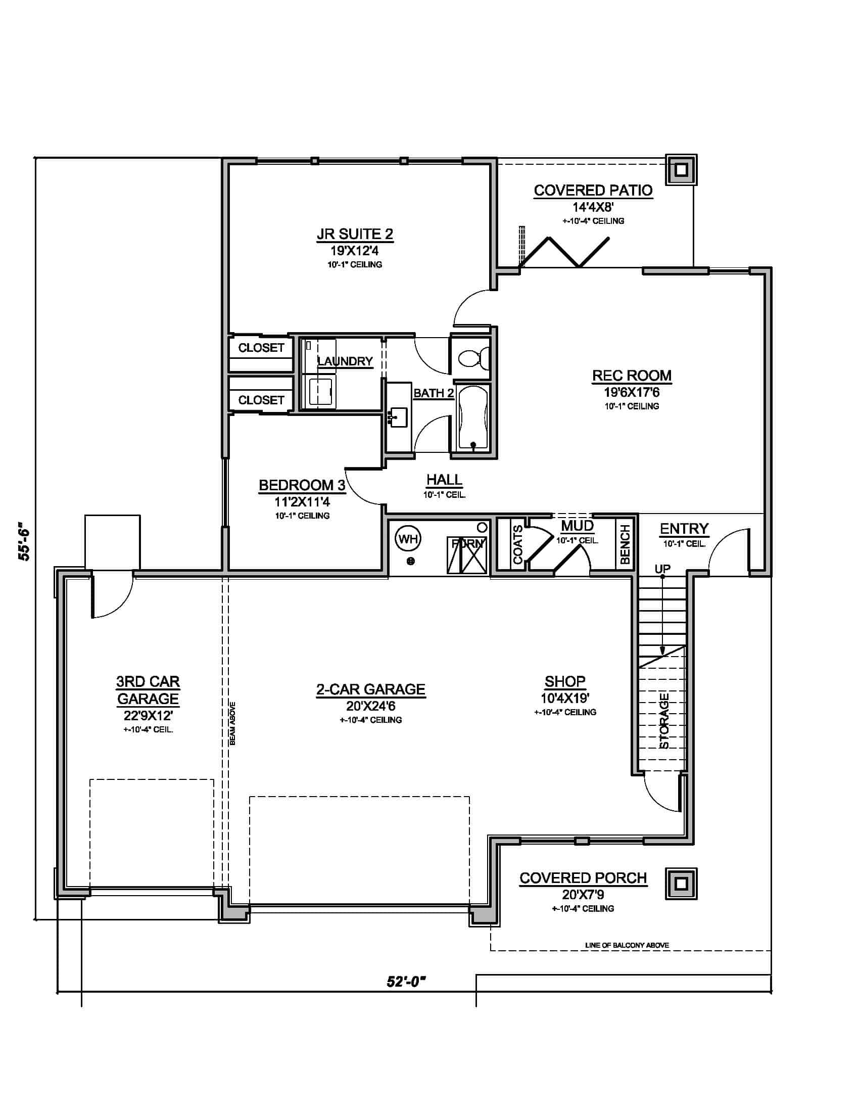
Main Level
Main Level
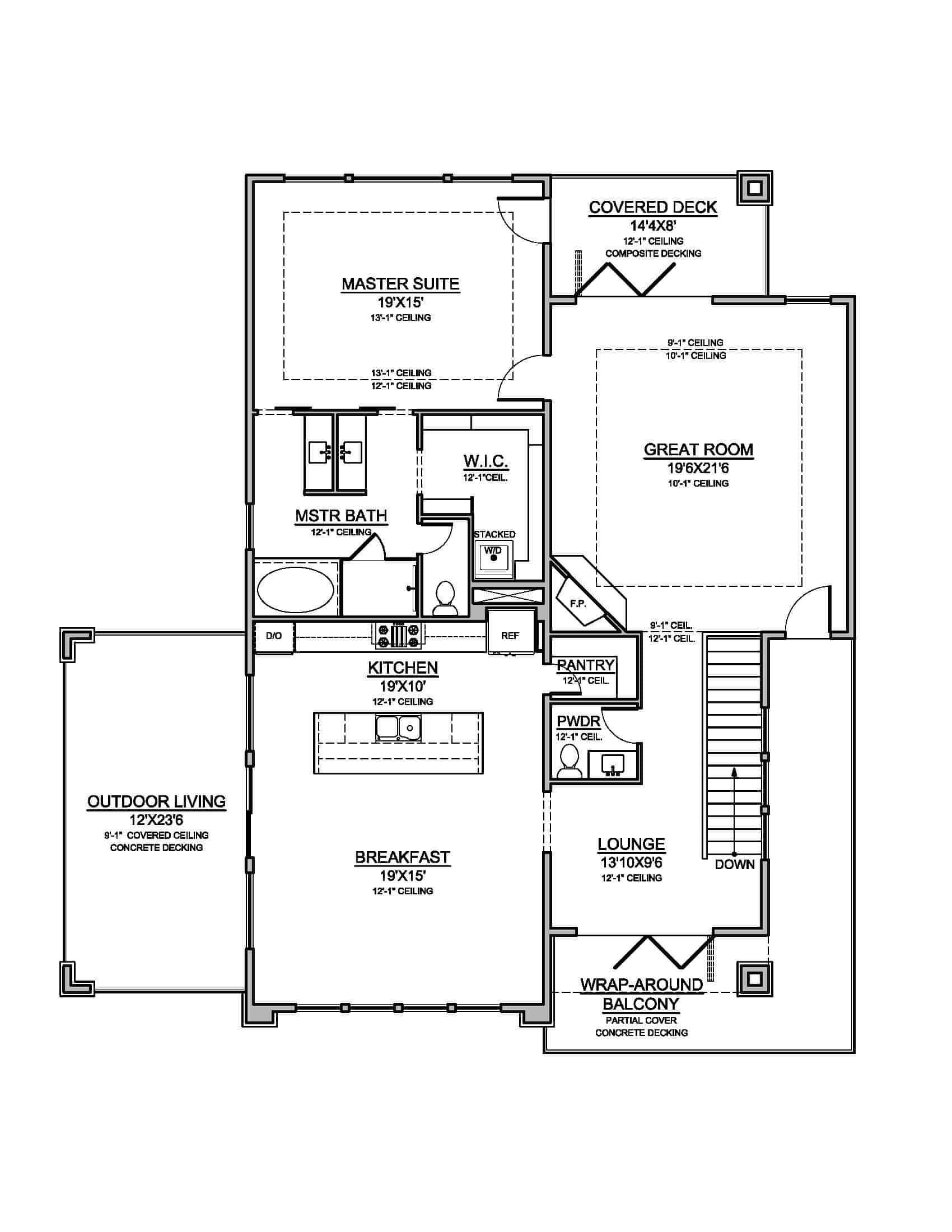
Upper Level
Upper Level
Plan Collection

Can I modify this plan?

Yes! This plan can be customized—contact us for a free quote.

Additional Notes from Designer

PLEASE NOTE: This designer's 5 sets, 8 sets & CADs all come with a PDF as well.

This single-family Contemporary Style House Plan has 2858 living square feet, 3 bedrooms, 2.5 bathrooms, and a 3-car garage space.

Porch Sq Ft figures may include any deck sq ft as well.

There is also an additional 266 square feet for the front balcony and 284 square feet for the side balcony.

 

House Plan Description

Comfort and style await you with this adorable Contemporary style house with Modern characteristics. The awesome entry porch, forward-facing gables, and large lovely windows in front give the house great curb appeal and make a lasting favorable impression. The remarkable home's 2-story floor plan has 2858 square feet of heated and cooled living space and includes these awesome amenities:

Roomy walk-in pantry
Powder room
 Fireplace in the Great Room
Mudroom with a bench
Lots of storage...

Home Details

Summary
Plan #:208-1031
Starting at:$1675.00
Floors:2
Bedrooms:3
Full Baths:2
Half Baths:1
Garage:
Square Footage
Heated Area:2858 Sq. Ft.
First Floor:1029 Sq. Ft.
Second Floor:1829 Sq. Ft.
Unheated Area:
Garage:998 Sq. Ft.
Porch:646 Sq. Ft.
Dimensions
Depth:55' 9''
Architectural Styles
Exterior Wall Material
Vinyl SidingRock/StoneWood Siding
Roofing Type
Gable
Roofing Material
Metal
Roof Pitch
4/12
Ceiling Height
10 Foot Ceiling9 Foot Ceiling12 Foot Ceiling
Special Feature
Mother in law apartmentFireplaceMud RoomFamily RoomMain Level LaundrySplit BathroomStorageBalconyOpen Floor Plan
Garage Type
Attached GarageFront Entry
Fireplaces
One Fireplace
Exterior Wall Framing
2x6
Building Lot Type
Flat Site
Kitchen Features
Kitchen IslandNook/Breakfast AreaWalk-in Pantry
Porches and Exterior Features
Covered Front PorchSundeckCovered Rear Patio
Master Suite Features
Master BathroomWalk In ClosetPrivate DeckSecond Floor MasterSplit Master Bedroom

What’s Included

Most plan sets include the following:

icon text-secondary-400 includedCover sheet with Rendering on front

icon text-secondary-400 includedGeneral IRC notes page

icon text-secondary-400 includedFront & Rear Elevation Page

icon text-secondary-400 includedLeft / Right elevation page

icon text-secondary-400 includedMonolithic foundation plan

icon text-secondary-400 includedMain Floor Plan – Wood Frame

icon text-secondary-400 includedRoof slope and drainage Plan

icon text-secondary-400 includedRoof Framing Plan (Truss)

icon text-secondary-400 includedBuilding Section (wood frame)

icon text-secondary-400 includedMain Electrical Plan

What’s Not Included

These items are  NOT included:

icon text-secondary-400 includedArchitectural or Engineering Stamp - handled locally if required.

icon text-secondary-400 includedSite Plan - handled locally when required.

icon text-secondary-400 includedMechanical Drawings (location of heating and air equipment and ductwork) - your subcontractors handle this.

icon text-secondary-400 includedPlumbing Drawings (drawings showing the actual plumbing pipe sizes and locations) - your subcontractors handle this.

icon text-secondary-400 includedEnergy calculations - handled locally when required.

Related House Plans

Plan Collection
Plan Collection
Plan Collection
Plan#116-1015
Starting at$0
2459
Sq Ft
2
Story
3
Bed
2.5
Bath
2
Car
Plan Collection
Plan Collection
Plan Collection
Plan#126-1297
Starting at$1715
2257
Sq Ft
2
Story
3
Bed
2.5
Bath
2
Car
Plan Collection
Plan Collection
Plan Collection
Plan#198-1006
Starting at$2395
2587
Sq Ft
2
Story
3
Bed
2.5
Bath
3
Car
View All

Other Plans By This Designer

Plan Collection
Plan Collection
Plan Collection
Plan#208-1005
Starting at$1145
1791
Sq Ft
1
Story
3
Bed
2
Bath
2
Car
Plan Collection
Plan Collection
Plan Collection
Plan#208-1025
Starting at$1145
2621
Sq Ft
1
Story
4
Bed
4.5
Bath
2
Car
Plan Collection
Plan Collection
Plan Collection
Plan#208-1027
Starting at$1145
1638
Sq Ft
1
Story
2
Bed
2
Bath
3
Car