3-Bedroom, 2857 Sq Ft Contemporary Plan with Split Master Bedroom

Front elevation of Contemporary home (ThePlanCollection: House Plan #108-2067)

Images/Plans copyrighted by designer. Photos may reflect homeowner modifications.

About House Plan #108-2067

Sq Ft
2857
Sq Ft
Bedrooms
3
Bedrooms
Bathroom
2
Baths
Half Baths
2
Half Baths
Bedrooms
2
Cars
Bedrooms
1.5
Stories
Bedrooms
73' 2'
Width
Bedrooms
111
Depth
Starting at$1925.00What's included
STEP 1Bedrooms
STEP 2Bedrooms
STEP 3Bedrooms

Subtotal:$0
Plan Collection

How much will it cost to build?

Estimate your costs based on your location and materials.

Free Cost Instant Estimator

Floor Plans

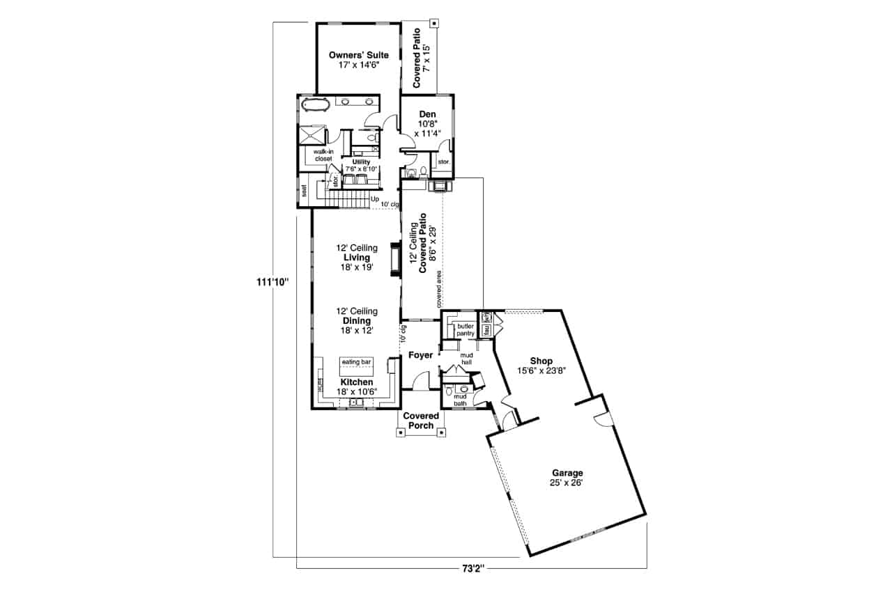
Main Level
Main Level
Upper Level
Upper Level
Plan Collection

Can I modify this plan?

Yes! This plan can be customized—contact us for a free quote.

Additional Notes from Designer

PLEASE NOTE!! For this designer, The PDF that comes with the PRINT Packages (5 set+PDF and 8 set+PDF) is NOT Modifiable - it is for printing ONLY! PLEASE NOTE!! Optional Foundations (foundations that cost extra money) will take 5-10 business days to complete.

This Single Family Contemporary Style House Plan has 2857 square feet, 2 bedrooms, 2 bathrooms, and 2 half baths.

House Plan Description

This stunning yet affordable Contemporary style home has been designed with great care and attention – and with a real understanding of the needs of the family. The spectacular 1.5-story home's floor plan has 2857 square feet of heated and cooled living space on the main and upper levels. The house features the following wonderful amenities:
• Fireplace in the living room
• Walk-in butler pantry
• Mudroom
• Den
• Powder room

Home Details

Summary
Plan #:108-2067
Starting at:$1925.00
Floors:1.5
Bedrooms:3
Full Baths:2
Half Baths:2
Garage:
Square Footage
Heated Area:2857 Sq. Ft.
First Floor:2205 Sq. Ft.
Second Floor:652 Sq. Ft.
Unheated Area:
Garage:1043 Sq. Ft.
Dimensions
Width:73' 2''
Depth:111' 10''
Architectural Styles
Exterior Wall Material
Vinyl SidingRock/StoneWood Siding
Roofing Type
Hip
Roofing Material
Asphalt Shingles
Roof Pitch
3/12
Ceiling Height
10 Foot Ceiling9 Foot Ceiling
Special Feature
FireplaceDining RoomMud RoomMain Level LaundrySplit BathroomStorageDenWorkshopOpen Floor Plan
Garage Type
Attached GarageCourtyard Entry
Fireplaces
One Fireplace
Exterior Wall Framing
2x6
Kitchen Features
Kitchen IslandButler's Pantry
Porches and Exterior Features
Covered Front PorchCovered Rear Patio
Master Suite Features
Main Floor MasterMaster BathroomWalk In ClosetSplit Master Bedroom

What’s Included

Most plan sets include the following:

icon text-secondary-400 included Artist’s rendering of the home,

icon text-secondary-400 included Front/Rear/Left and Right Elevations,

icon text-secondary-400 included Main floor plan, Second or Basement floor plans (if applicable),

icon text-secondary-400 included Foundation plan and detail,

icon text-secondary-400 included Floor framing plan,

icon text-secondary-400 included Roof framing plan, supporting details and

icon text-secondary-400 included Electric layout.

What’s Not Included

These items are  NOT included:

icon text-secondary-400 includedArchitectural or Engineering Stamp - handled locally if required.

icon text-secondary-400 includedSite Plan - handled locally when required.

icon text-secondary-400 includedMechanical Drawings (location of heating and air equipment and ductwork) - your subcontractors handle this.

icon text-secondary-400 includedPlumbing Drawings (drawings showing the actual plumbing pipe sizes and locations) - your subcontractors handle this.

icon text-secondary-400 includedEnergy calculations - handled locally when required.

Related House Plans

Plan Collection
Plan Collection
Plan Collection
Plan#142-1180
Starting at$1345
2282
Sq Ft
1.5
Story
3
Bed
2.5
Bath
2
Car
Plan Collection
Plan Collection
Plan Collection
Plan#142-1166
Starting at$1395
2469
Sq Ft
1.5
Story
3
Bed
2
Bath
2
Car
Plan Collection
Plan Collection
Plan Collection
Plan#117-1094
Starting at$1095
2495
Sq Ft
1.5
Story
3
Bed
2.5
Bath
3
Car
View All

Other Plans By This Designer

Plan Collection
Plan Collection
Plan Collection
Plan#108-1923
Starting at$1150
2928
Sq Ft
1
Story
4
Bed
3
Bath
2
Car
Plan Collection
Plan Collection
Plan Collection
Plan#108-1538
Starting at$725
1216
Sq Ft
2
Story
2
Bed
2
Bath
0
Car
Plan Collection
Plan Collection
Plan Collection
Plan#108-2031
Starting at$450
1808
Sq Ft
2
Story
2
Bed
1
Bath
2
Car