4-Bedroom, 2846 Sq Ft Country Plan with Butler's Pantry

Main image for house plan # 16882

Images/Plans copyrighted by designer. Photos may reflect homeowner modifications.

About House Plan #153-1787

Sq Ft
2846
Sq Ft
Bedrooms
4
Bedrooms
Bathroom
3
Baths
Half Baths
1
Half Baths
Bedrooms
3
Cars
Bedrooms
2
Stories
Bedrooms
73' 2'
Width
Bedrooms
86
Depth
Starting at$1100.00What's included
STEP 1Bedrooms
STEP 2Bedrooms
STEP 3Bedrooms

Subtotal:$0
Plan Collection

How much will it cost to build?

Estimate your costs based on your location and materials.

Free Cost Instant Estimator

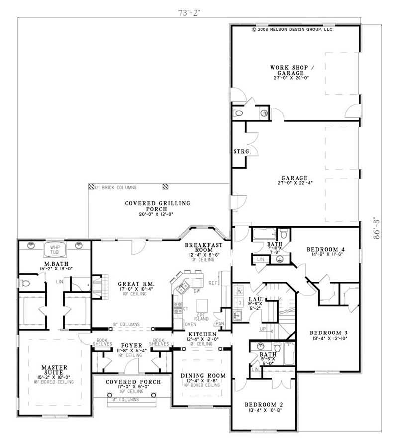
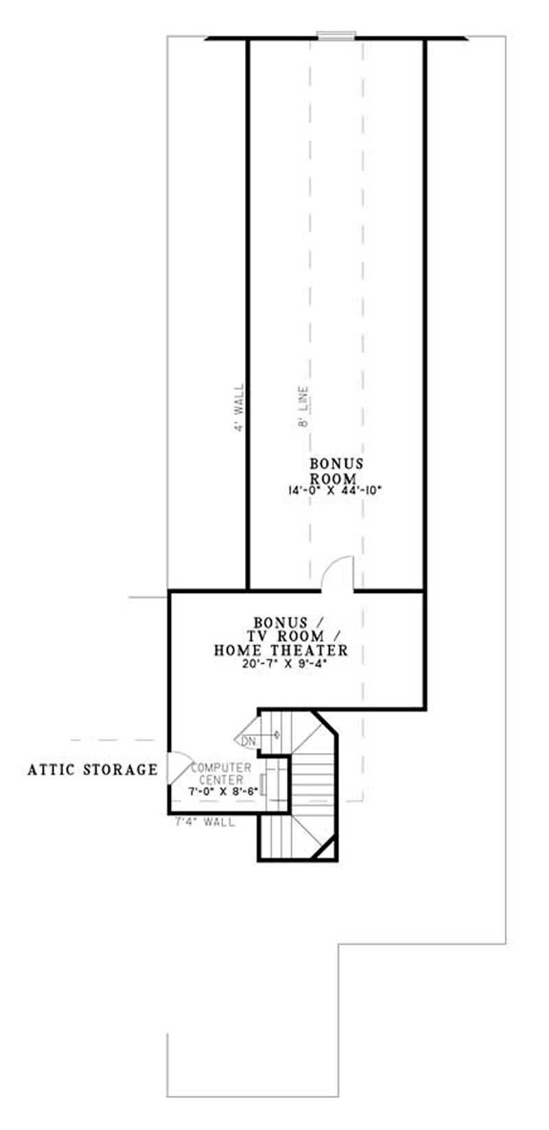
Floor Plans

Main Floor Plan
Main Floor Plan
Second Floor Plan
Second Floor Plan
Plan Collection

Can I modify this plan?

Yes! This plan can be customized—contact us for a free quote.

Additional Notes from Designer

Plans by this designer do NOT usually come with FRAMING - some plans may have framing available for an extra fee - please contact us to find out about a specific plan & we will check with the designer!! Additionally: For this designer, if you choose optional features such as but not limited to: 2x6 framing, reverse or optional basement, the designer will need an additional 2-5 business days to adjust the plan accordingly. Please keep this in mind when choosing your shipping option. If you would like Express or Priority shipping, the designer will ship the plan to you using the method you choose but you will still have the 2-5 business day waiting period BEFORE they ship! Please feel free to contact us with any questions! PLEASE NOTE: Multi-licenses are available. The plans do not come with ICF specifications. If ICF construction method is desired, the CAD plan can be purchased and then forwarded to the ICF dealer and they’ll do a takeoff to assist with that specific projec

House Plan Description

Imagine the compliments you'll receive while entertaining in this delightful Nelson Design Group home. Guests will marvel at the gallery lined with built-in bookshelves and the massive great room with elegant fireplace and high ceilings throughout. A stylish French door allows the dinner party to transition outside to the vast covered grilling porch. When the party is over, you can relax in the beautiful breakfast bay before retiring to the master suite enhanced by two walk-in closets and an oversized whirlpool tub. A bonus floor is included in this design for future expansion, the...

Home Details

Summary
Plan #:153-1787
Starting at:$1100.00
Floors:2
Bedrooms:4
Full Baths:3
Half Baths:1
Garage:
Square Footage
Heated Area:2846 Sq. Ft.
First Floor:2560 Sq. Ft.
Second Floor:286 Sq. Ft.
Unheated Area:
Bonus Room:669 Sq. Ft.
Garage:1189 Sq. Ft.
Dimensions
Width:73' 2''
Depth:86' 8''
Ridge Height:24'' 0''
Architectural Styles
Exterior Wall Material
Brick
Roofing Type
Hip
Roof Pitch
10/12
Ceiling Height
9 Foot Ceiling8 Foot Ceiling
Special Feature
FireplaceGuest RoomHome Theater
Garage Type
Attached GarageSide Entry
Fireplaces
One Fireplace
Exterior Wall Framing
2x4

What’s Included

Most plan sets include the following:

icon text-secondary-400 included floorplan

icon text-secondary-400 included 4 side exterior elevations,

icon text-secondary-400 included electrical plan,

icon text-secondary-400 included birds-eye view of the roof,

icon text-secondary-400 included foundation plan,

icon text-secondary-400 included and some miscellaneous details. Please Note We do not offer plumbing, HVAC, or window scheduling. This will have to be done on a local level, probably by your building team!

What’s Not Included

These items are  NOT included:

icon text-secondary-400 includedArchitectural or Engineering Stamp - handled locally if required.

icon text-secondary-400 includedSite Plan - handled locally when required.

icon text-secondary-400 includedMechanical Drawings (location of heating and air equipment and ductwork) - your subcontractors handle this.

icon text-secondary-400 includedPlumbing Drawings (drawings showing the actual plumbing pipe sizes and locations) - your subcontractors handle this.

icon text-secondary-400 includedEnergy calculations - handled locally when required.

Related House Plans

Plan Collection
Plan Collection
Plan Collection
Plan#153-1145
Starting at$1000
2424
Sq Ft
1
Story
4
Bed
3
Bath
3
Car
Plan Collection
Plan Collection
Plan Collection
Plan#153-1917
Starting at$1100
2885
Sq Ft
2
Story
4
Bed
3.5
Bath
3
Car
Plan Collection
Plan Collection
Plan Collection
Plan#153-1144
Starting at$1200
3036
Sq Ft
2
Story
4
Bed
3.5
Bath
3
Car
View All

Other Plans By This Designer

Plan Collection
Plan Collection
Plan Collection
Plan#153-1432
Starting at$1200
2096
Sq Ft
1
Story
3
Bed
2.5
Bath
3
Car
Plan Collection
Plan Collection
Plan Collection
Plan#153-1744
Starting at$800
1800
Sq Ft
1
Story
3
Bed
2
Bath
2
Car
Plan Collection
Plan Collection
Plan Collection
Plan#153-1608
Starting at$700
1382
Sq Ft
1
Story
3
Bed
2
Bath
2
Car