Estimate your costs based on your location and materials.
Yes! This plan can be customized—contact us for a free quote.
Yes! This plan can be customized—contact us for a free quote.
PLEASE NOTE! If you order an optional foundation and a materials list, the materials list will NOT include the optional foundation, only the standard foundation. The designer can provide an updated materials list for a fee, so please ask for a quote!
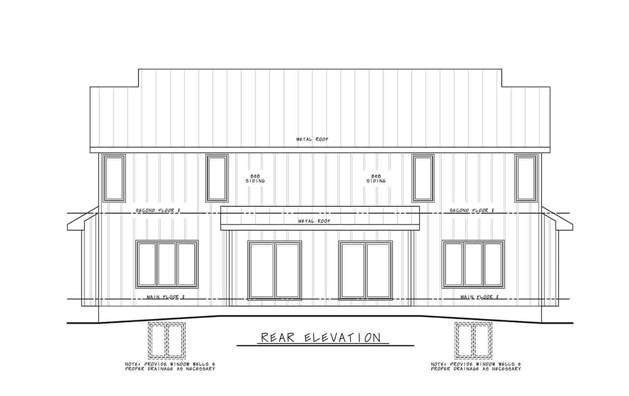
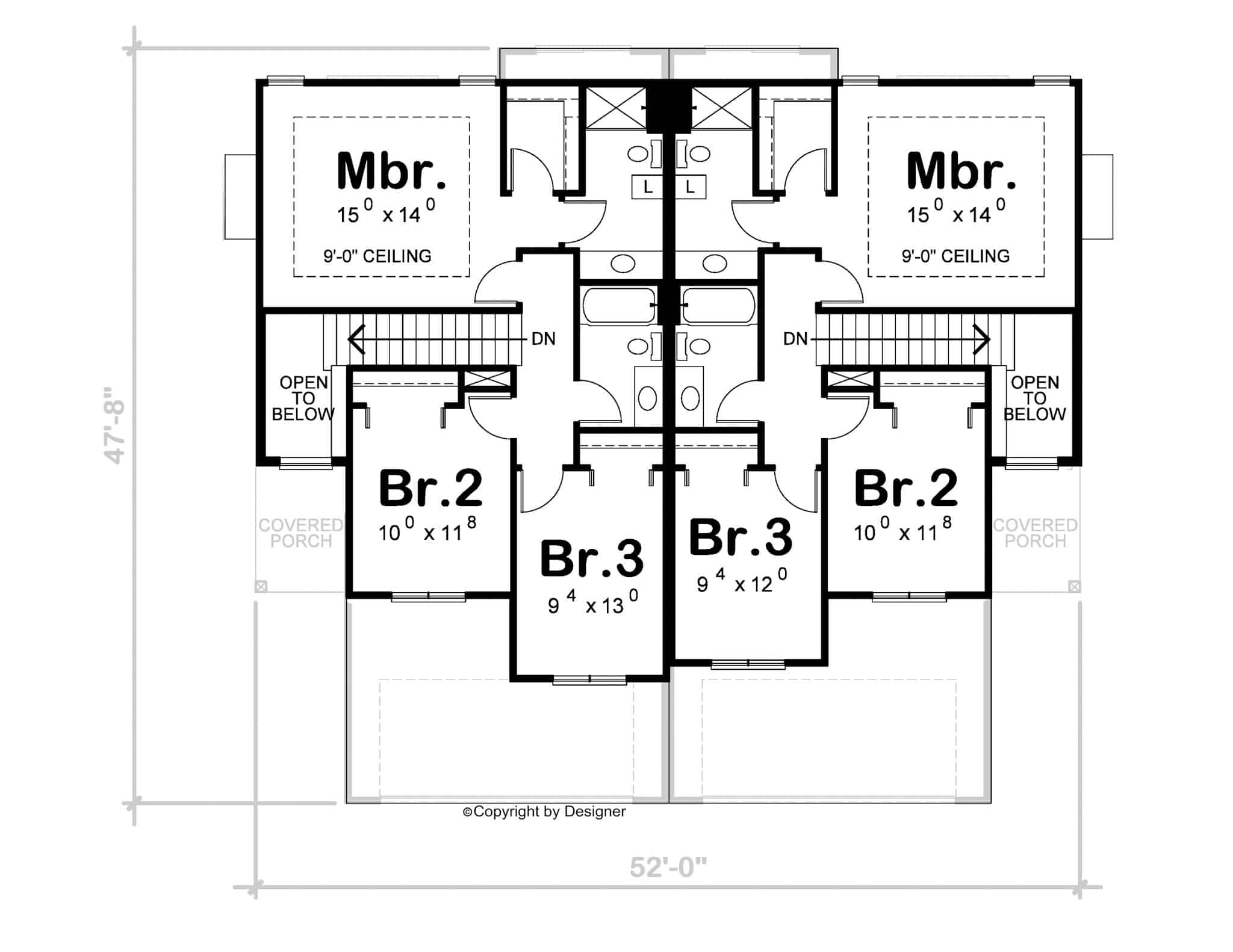
Note 1: This multi-family plan has two identical units. Each unit has 1,418 living square feet, 3 bedrooms, 2,5 bathrooms, and 2 garage spaces.
Note 2: Porch sq ft figures may include any deck sq ft as well.
With an exceptional architectural design, the 2-unit Modern Farmhouse style home represents an impressive accomplishment, featuring excellent and sincere elements that make it the ultimate family residence. It's 2-story plan comprises 2,836 living square feet (1,418 living square feet per unit) and includes an array of top-notch amenities:
Estimate your costs based on your location and materials.
All sales of house plans, modifications, and other products found on this site are final. No refunds or exchanges can be given once your order has begun the fulfillment process. Please see our Policies for additional information.
All plans offered on ThePlanCollection.com are designed to conform to the local building codes when and where the original plan was drawn.
The homes as shown in photographs and renderings may differ from the actual blueprints. For more detailed information, please review the floor plan images herein carefully.
Estimate your costs based on your location and materials.