3-Bedroom, 2832 Sq Ft Mediterranean Plan with Master Bathroom

Mediterranen House Plans color rendering.

Images/Plans copyrighted by designer. Photos may reflect homeowner modifications.

About House Plan #133-1048

Sq Ft
2832
Sq Ft
Bedrooms
3
Bedrooms
Bathroom
3
Baths
Half Baths
0
Half Baths
Bedrooms
3
Cars
Bedrooms
1
Stories
Bedrooms
62' 10'
Width
Bedrooms
94
Depth
Starting at$2548.80What's included
STEP 1Bedrooms
STEP 2Bedrooms
STEP 3Bedrooms

Subtotal:$0
Plan Collection

How much will it cost to build?

Estimate your costs based on your location and materials.

Free Cost Instant Estimator

Floor Plans

FLOOR PLAN
FLOOR PLAN
Plan Collection

Can I modify this plan?

Yes! This plan can be customized—contact us for a free quote.

Additional Notes from Designer

Please Note that the designer's office will be closed between 8/4/22 to 8/9/2022. Any orders placed during this time will be processed once the designer resumes office after 8/9-2022.

House Plan Description

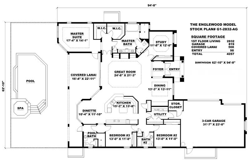
Mediterranean House Plans Englewood are perfect for a couple with children. The master bedroom and bathroom retreat is located on one side of the house, while the girl's and boy's bedroom and bathroom are on the other. The open floor plan and wall to wall windows allow for the parent's watchful eye while you create lots of family memories. If you need a guest bedroom the study can easily be covered. There is even a three car garage for when the kids start to drive. This house plan will grow with you as a family. This plan is not for sale for use in Collier County, Florida or...

Home Details

Summary
Plan #:133-1048
Starting at:$2548.80
Floors:1
Bedrooms:3
Full Baths:3
Half Baths:0
Garage:
Square Footage
Heated Area:2832 Sq. Ft.
First Floor:2832 Sq. Ft.
Unheated Area:
Garage:819 Sq. Ft.
Dimensions
Width:62' 10''
Depth:94' 8''
Ridge Height:24'10' 0''
Architectural Styles
Exterior Wall Material
Stucco
Roofing Material
Tiles
Roof Pitch
6/12
Ceiling Height
10 Foot Ceiling
Special Feature
Home OfficeMain Level LaundrySplit BathroomStorageDen
Garage Type
Attached Garage
Exterior Wall Framing
Concrete
Building Lot Type
View Lot
Kitchen Features
Kitchen IslandNook/Breakfast AreaPeninsula/Eating Bar
Porches and Exterior Features
Covered Front PorchCovered Rear PorchScreened in LanaiCovered Lanai
Master Suite Features
Main Floor MasterMaster BathroomWalk In Closet

What’s Included

Most plan sets include the following:

icon text-secondary-400 includedFLOOR PLAN: Showing all dimensions, window and door locations, laminated beams, columns, floor materials, ceiling heights, fireplace size, and specifications.

icon text-secondary-400 includedFOUNDATION PLAN: Dimensioned plan detailing the location and size of footings, slabs, reinforcing steel, and other structural elements that are required to support the load of the upper floors.

icon text-secondary-400 includedROOF PLAN: Dimensioned plan showing the elements that make up the roof, including notation of spacing and schematics of peaks and valleys.

icon text-secondary-400 includedELECTRICAL LAYOUT:Specifications, notes, schedules, and plan defining the location of panels, service, lighting fixtures, switches, outlets, fans, etc. NOTE – PLEASE VERIFY

icon text-secondary-400 includedFRONT, REAR, AND SIDE ELEVATIONS:The front, rear, and side elevations of the house as drawn. Shows placement of doors & windows on exterior of house, as well as roof pitches, ridge heights, and locations of chimney, exterior vents, etc. The elevations show the positioning of the final grade of the lot, exterior finishes, and other details that are necessary to give the home exterior architectural styling.

icon text-secondary-400 includedCROSS SECTIONS AND INTERIOR DETAILS:Explain certain special conditions more appropriately. A cross section is basically a view of the home (or parts of the home) if it were sliced down the center. These details can be helpful for the contractor.

What’s Not Included

These items are  NOT included:

icon text-secondary-400 includedArchitectural or Engineering Stamp - handled locally if required.

icon text-secondary-400 includedSite Plan - handled locally when required.

icon text-secondary-400 includedMechanical Drawings (location of heating and air equipment and ductwork) - your subcontractors handle this.

icon text-secondary-400 includedPlumbing Drawings (drawings showing the actual plumbing pipe sizes and locations) - your subcontractors handle this.

icon text-secondary-400 includedEnergy calculations - handled locally when required.

Related House Plans

Plan Collection
Plan Collection
Plan Collection
Plan#175-1134
Starting at$1400
2684
Sq Ft
1
Story
3
Bed
3
Bath
2
Car
Plan Collection
Plan Collection
Plan Collection
Plan#136-1031
Starting at$1950
2504
Sq Ft
1
Story
3
Bed
3
Bath
2
Car
Plan Collection
Plan Collection
Plan Collection
Plan#133-1029
Starting at$0
2537
Sq Ft
1
Story
3
Bed
3
Bath
2
Car
View All

Other Plans By This Designer

Plan Collection
Plan Collection
Plan Collection
Plan#133-1029
Starting at$0
2537
Sq Ft
1
Story
3
Bed
3
Bath
2
Car
Plan Collection
Plan Collection
Plan Collection
Plan#133-1021
Starting at$0
2208
Sq Ft
1
Story
3
Bed
2
Bath
2
Car
Plan Collection
Plan Collection
Plan Collection
Plan#133-1086
Starting at$0
3489
Sq Ft
1
Story
3
Bed
4.5
Bath
3
Car