1-Bedroom, 2817 Sq Ft Coastal Plan with Walk-in Pantry

Front elevation of Coastal home (ThePlanCollection: House Plan #107-1062)

Images/Plans copyrighted by designer. Photos may reflect homeowner modifications.

About House Plan #107-1062

Sq Ft
2817
Sq Ft
Bedrooms
4
Bedrooms
Bathroom
4
Baths
Half Baths
0
Half Baths
Bedrooms
2
Cars
Bedrooms
2
Stories
Bedrooms
40' 0'
Width
Bedrooms
61
Depth
Starting at$1700.00What's included
STEP 1Bedrooms
STEP 2Bedrooms
STEP 3Bedrooms

Subtotal:$0
Plan Collection

How much will it cost to build?

Estimate your costs based on your location and materials.

Free Cost Instant Estimator

Floor Plans

Main Level
Main Level
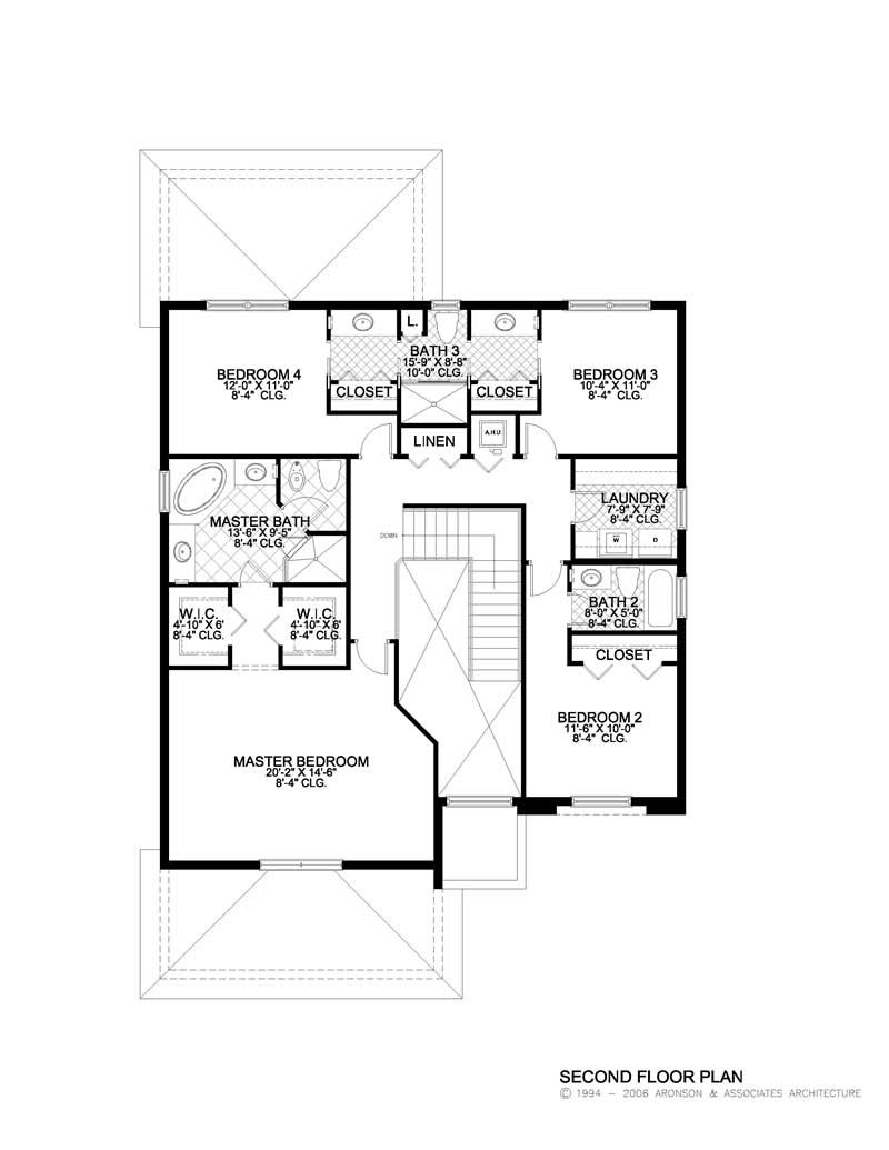
Upper Level
Upper Level
Plan Collection

Can I modify this plan?

Yes! This plan can be customized—contact us for a free quote.

House Plan Description

This two story waterfront Mediterranean home has four Bedrooms, four Bathrooms and a two car Garage. Two Bedrooms have Jack and Jill Bathroom perfect for small kids. Laundry room conveniently located on second floor. Study room on first floor can also be used as a fifth Bedroom.

Home Details

Summary
Plan #:107-1062
Starting at:$1700.00
Floors:2
Bedrooms:4
Full Baths:4
Half Baths:0
Garage:
Square Footage
Heated Area:2817 Sq. Ft.
First Floor:1368 Sq. Ft.
Second Floor:1449 Sq. Ft.
Unheated Area:
Garage:452 Sq. Ft.
Dimensions
Depth:61' 7''
Ridge Height:26' 0''
Architectural Styles
Exterior Wall Material
Stucco
Roofing Type
Hip
Roofing Material
Other Composites
Roof Pitch
5/12
Ceiling Height
9 Foot Ceiling
Special Feature
Main Level Laundry
Garage Type
Attached GarageFront Entry
Exterior Wall Framing
Concrete
Building Lot Type
Narrow Lot Design
Kitchen Features
Kitchen IslandWalk-in Pantry
Master Suite Features
Main Floor MasterMaster BathroomWalk In ClosetSecond Floor Master

What’s Included

Most plan sets include the following:

icon text-secondary-400 includedFloor plan

icon text-secondary-400 includedKitchen & Bath layout

icon text-secondary-400 includedExterior elevations

icon text-secondary-400 includedSections

icon text-secondary-400 includedStructural plans

icon text-secondary-400 includedFoundation plan

icon text-secondary-400 includedRoof plan

icon text-secondary-400 includedMechanical layout

icon text-secondary-400 includedElectrical layout

What’s Not Included

These items are  NOT included:

icon text-secondary-400 includedArchitectural or Engineering Stamp - handled locally if required.

icon text-secondary-400 includedSite Plan - handled locally when required.

icon text-secondary-400 includedMechanical Drawings (location of heating and air equipment and ductwork) - your subcontractors handle this.

icon text-secondary-400 includedPlumbing Drawings (drawings showing the actual plumbing pipe sizes and locations) - your subcontractors handle this.

icon text-secondary-400 includedEnergy calculations - handled locally when required.

Related House Plans

Plan Collection
Plan Collection
Plan Collection
Plan#108-1708
Starting at$1050
2686
Sq Ft
2
Story
4
Bed
4
Bath
2
Car
Plan Collection
Plan Collection
Plan Collection
Plan#175-1033
Starting at$1350
3448
Sq Ft
2
Story
4
Bed
4
Bath
3
Car
Plan Collection
Plan Collection
Plan Collection
Plan#175-1114
Starting at$2150
3469
Sq Ft
2
Story
4
Bed
4.5
Bath
3
Car
View All

Other Plans By This Designer

Plan Collection
Plan Collection
Plan Collection
Plan#107-1002
Starting at$1900
6175
Sq Ft
2
Story
6
Bed
7.5
Bath
4
Car
Plan Collection
Plan Collection
Plan Collection
Plan#107-1096
Starting at$1150
1619
Sq Ft
1
Story
3
Bed
2
Bath
2
Car
Plan Collection
Plan Collection
Plan Collection
Plan#107-1182
Starting at$1900
6412
Sq Ft
2
Story
7
Bed
7.5
Bath
3
Car