4-Bedroom, 2764 Sq Ft French Country Plan with Color Photos

Front elevation of French country home (ThePlanCollection: House Plan #206-1053)

Images/Plans copyrighted by designer. Photos may reflect homeowner modifications.

About House Plan #206-1053

Sq Ft
2764
Sq Ft
Bedrooms
4
Bedrooms
Bathroom
3
Baths
Half Baths
0
Half Baths
Bedrooms
2
Cars
Bedrooms
1
Stories
Bedrooms
70' 0'
Width
Bedrooms
85
Depth
Starting at$1295.00What's included
STEP 1Bedrooms
STEP 2Bedrooms
STEP 3Bedrooms

Subtotal:$0
Plan Collection

How much will it cost to build?

Estimate your costs based on your location and materials.

Free Cost Instant Estimator

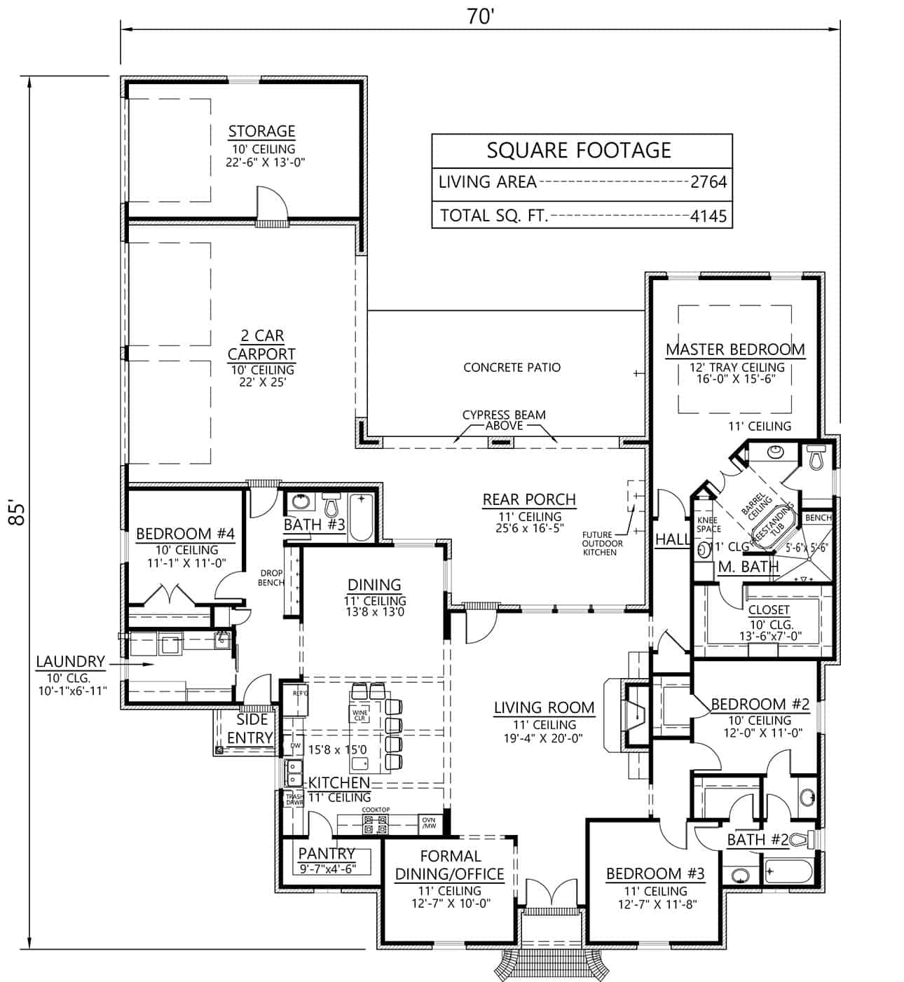
Floor Plans

Main Level
Main Level
Plan Collection

Can I modify this plan?

Yes! This plan can be customized—contact us for a free quote.

House Plan Description

You will definitely be impressed by the sight of this wonderful French country style home. This house covers a total heated floor area of 2764 square feet of comfort and convenience for its residents. A beautiful front entry, a variety of windows, and multiple roof levels combine to enhance the exterior of this house.

The family will definitely enjoy this 602-square-foot 2-car garage with spacious storage, which can serve another purpose and/or be flexible enough to be converted to another functional room.

.The pleasant main entrance door will usher...

Home Details

Summary
Plan #:206-1053
Starting at:$1295.00
Floors:1
Bedrooms:4
Full Baths:3
Half Baths:0
Garage:
Square Footage
Heated Area:2764 Sq. Ft.
First Floor:2764 Sq. Ft.
Unheated Area:
Garage:602 Sq. Ft.
Porch:431 Sq. Ft.
Dimensions
Architectural Styles
Exterior Wall Material
Brick
Roofing Type
Hip
Roofing Material
Asphalt Shingles
Roof Pitch
9/12Other
Ceiling Height
10 Foot Ceiling9 Foot Ceiling
Special Feature
FireplaceFamily RoomMain Level LaundryColor PhotosSplit BathroomStorageOpen Floor PlanInterior Photos
Garage Type
Attached GarageSide Entry
Fireplaces
One Fireplace
Exterior Wall Framing
2x4
Building Lot Type
Corner Lot
Kitchen Features
Kitchen IslandWalk-in PantryPeninsula/Eating Bar
Porches and Exterior Features
Covered Front PorchCovered Rear Porch
Master Suite Features
Main Floor MasterMaster BathroomWalk In Closet

What’s Included

Most plan sets include the following:

icon text-secondary-400 includedFloor plan(s)

icon text-secondary-400 includedWindow & door schedules

icon text-secondary-400 includedElectrical layout

icon text-secondary-400 includedExterior elevations

icon text-secondary-400 includedFoundation plan

icon text-secondary-400 includedTypical wall section

icon text-secondary-400 includedFoundation section details

icon text-secondary-400 includedRoof plans

icon text-secondary-400 includedMiscellaneous details

icon text-secondary-400 includedKitchen & bath cabinet elevations

icon text-secondary-400 includedBuilding Cross-Section

What’s Not Included

These items are  NOT included:

icon text-secondary-400 includedArchitectural or Engineering Stamp - handled locally if required.

icon text-secondary-400 includedSite Plan - handled locally when required.

icon text-secondary-400 includedMechanical Drawings (location of heating and air equipment and duct work) - your subcontractors handle this.

icon text-secondary-400 includedPlumbing Drawings (drawings showing the actual plumbing pipe sizes and locations) - your subcontractors handle this.

icon text-secondary-400 includedEnergy calculations - handled locally when required.

Related House Plans

Plan Collection
Plan Collection
Plan Collection
Plan#142-1102
Starting at$1395
2639
Sq Ft
1
Story
4
Bed
3
Bath
2
Car
Plan Collection
Plan Collection
Plan Collection
Plan#146-2173
Starting at$1015
2464
Sq Ft
1
Story
4
Bed
3
Bath
3
Car
Plan Collection
Plan Collection
Plan Collection
Plan#142-1005
Starting at$1395
2500
Sq Ft
1
Story
4
Bed
3
Bath
2
Car
View All

Other Plans By This Designer

Plan Collection
Plan Collection
Plan Collection
Plan#206-1039
Starting at$1245
2230
Sq Ft
1
Story
3
Bed
2.5
Bath
2
Car
Plan Collection
Plan Collection
Plan Collection
Plan#206-1046
Starting at$1195
1817
Sq Ft
1
Story
3
Bed
2
Bath
2
Car
Plan Collection
Plan Collection
Plan Collection
Plan#206-1035
Starting at$1295
2716
Sq Ft
1
Story
4
Bed
3
Bath
3
Car