Estimate your costs based on your location and materials.
Yes! This plan can be customized—contact us for a free quote.
Yes! This plan can be customized—contact us for a free quote.
Please Note: CAD Files for this plan typically take 2-3 additional business days to prepare. PLEASE NOTE: Some options (different foundations, RRR, etc.) may take an additional 2-3 business days to prepare! Please keep this in mind regarding shipping when ordering. Thank you!
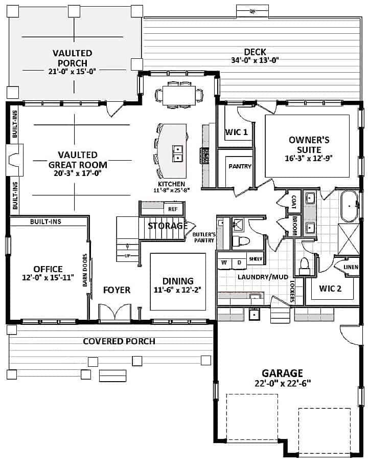
Different levels and varied shapes of the rooflines, large multi-pane windows, and white board-and-batten vertical siding give this transitional country farmhouse a natural. pleasing-to-the-eye curb appeal. The design reflects a semi-open floor plan with a center foyer, private office, and formal dining room. Ahead is the vaulted great room which is open to the kitchen and breakfast area. The owner's suite with his-and-her walk-in closets and a spa-like master bath completes the main floor. Upstairs are two additional bedrooms, each with a walk-in closet and own bath, as well as...
Estimate your costs based on your location and materials.
All sales of house plans, modifications, and other products found on this site are final. No refunds or exchanges can be given once your order has begun the fulfillment process. Please see our Policies for additional information.
All plans offered on ThePlanCollection.com are designed to conform to the local building codes when and where the original plan was drawn.
The homes as shown in photographs and renderings may differ from the actual blueprints. For more detailed information, please review the floor plan images herein carefully.
Estimate your costs based on your location and materials.