2-Bedroom, 2700 Sq Ft Modern Craftsman Plan with with Pocket Office

Front elevation of Modern home (ThePlanCollection: House Plan #194-1068)

Images/Plans copyrighted by designer. Photos may reflect homeowner modifications.

About House Plan #194-1068

Sq Ft
2700
Sq Ft
Bedrooms
2
Bedrooms
Bathroom
2
Baths
Half Baths
1
Half Baths
Bedrooms
3
Cars
Bedrooms
1
Stories
Bedrooms
89' 5'
Width
Bedrooms
96
Depth
Starting at$1395.00What's included
STEP 1Bedrooms
STEP 2Bedrooms
STEP 3Bedrooms

Subtotal:$0
Plan Collection

How much will it cost to build?

Estimate your costs based on your location and materials.

Free Cost Instant Estimator

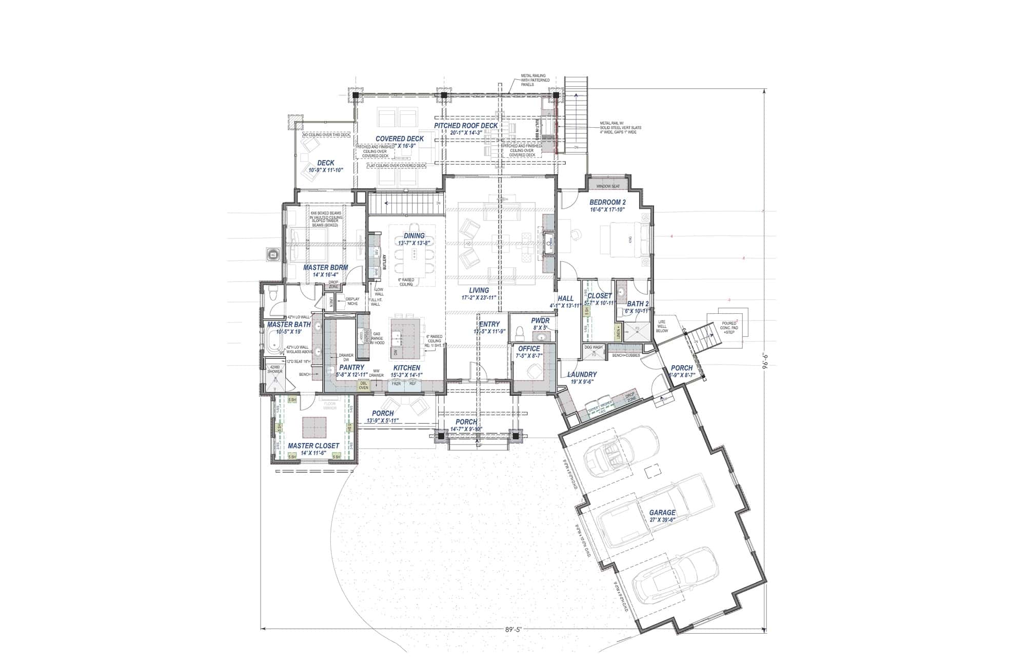
Floor Plans

Main Level
Main Level
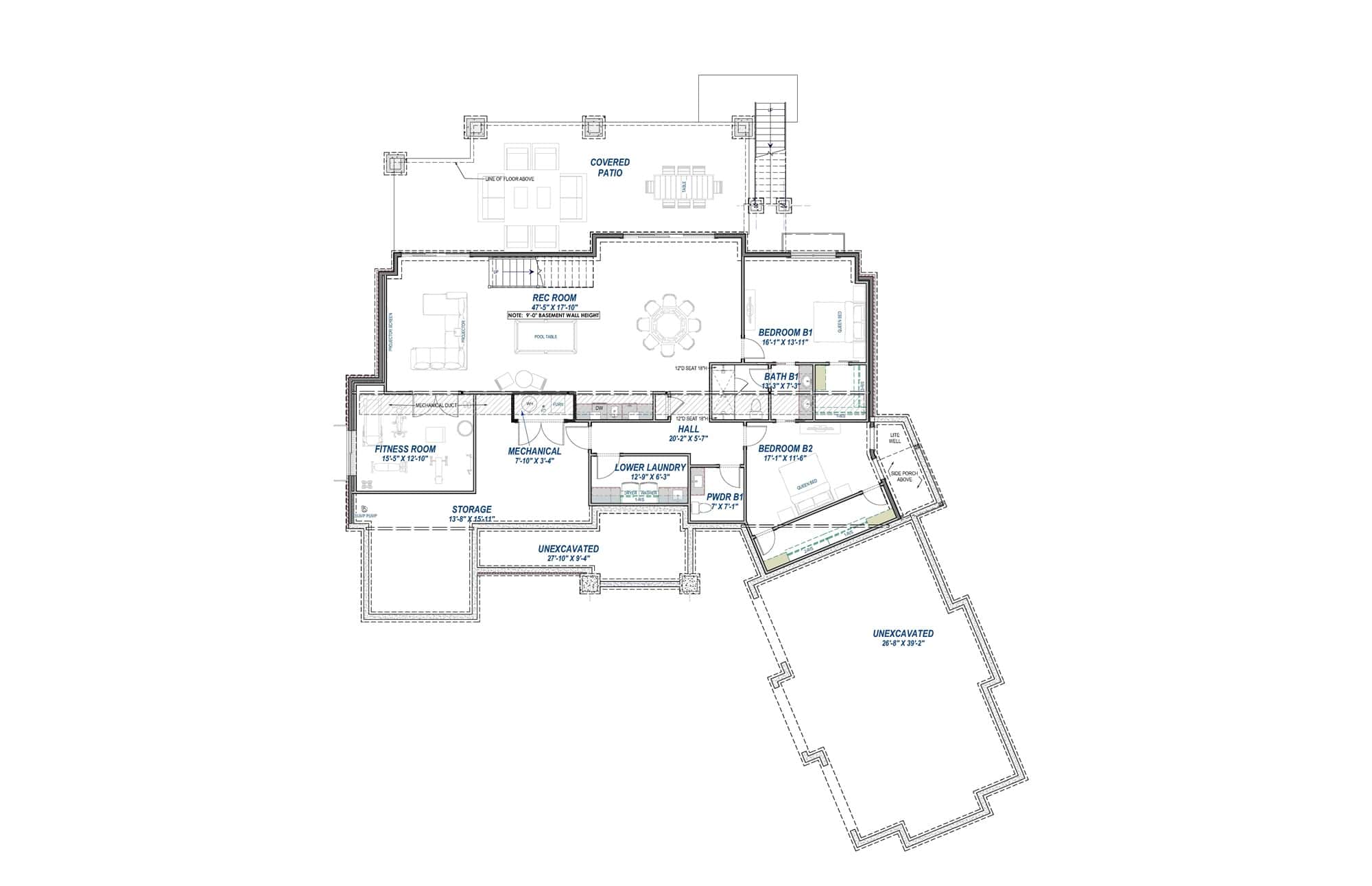
Basement Option Layout
Basement Option Layout
Plan Collection

Can I modify this plan?

Yes! This plan can be customized—contact us for a free quote.

Additional Notes from Designer

Note 1: Porch sq ft figures may include any deck sq ft as well.

Note 2: The optional finished basement includes an additional 2,217 square feet, 2 more bedrooms, 1.5 more baths, and a fitness room.

House Plan Description

Enthralling with its Modern details, this craftsman style residence covers 2,700 square feet and comprises 2 bedrooms, 2.5 baths, and a 3-car garage. Additionally, it presents a delightful fusion of elements, embodying sophistication in every facet:

  • Living Room, Pocket Office, Outdoor BBQ Grill, Kitchen with Walk-in Pantry
  • Master Bedroom with Walk-in Closet, Master Bathroom, Private Deck
  • Open Floor Plan, Vaulted Ceiling

The optional finished basement includes an additional 2,217 square feet, 2 more bedrooms, 1.5 more baths, and a...

Home Details

Summary
Plan #:194-1068
Starting at:$1395.00
Floors:1
Bedrooms:2
Full Baths:2
Half Baths:1
Garage:
Square Footage
Heated Area:2700 Sq. Ft.
Basement:2217 Sq. Ft.
First Floor:2700 Sq. Ft.
Unheated Area:
Basement:615 Sq. Ft.
Garage:978 Sq. Ft.
Porch:1589 Sq. Ft.
Dimensions
Width:89' 5''
Depth:96' 6''
Architectural Styles
Exterior Wall Material
BrickWood SidingBoard and Batten
Roofing Type
Gable/Dormer
Roofing Material
Asphalt Shingles
Roof Pitch
10/12
Ceiling Height
10 Foot Ceiling9 Foot Ceiling
Special Feature
FireplaceHome OfficeMud RoomFamily RoomMain Level LaundryColor PhotosStorageVaulted CeilingsOpen Floor Plan
Garage Type
Attached GarageCourtyard Entry
Fireplaces
One Fireplace
Building Lot Type
Down Site
Kitchen Features
Kitchen IslandWalk-in PantryOutdoor KitchenEat-In Kitchen
Porches and Exterior Features
Covered Front PorchCovered Rear PorchSundeck
Master Suite Features
Main Floor MasterMaster BathroomWalk In ClosetPrivate DeckSplit Master Bedroom

What’s Included

Most plan sets include the following:

icon text-secondary-400 includedCover Sheet - project statistics, including square footage, 3D images (typically), general notes, and drawings sheet index.

icon text-secondary-400 includedFoundation/basement plan - showing room/wall layout, beams, posts, joist direction, and often electrical outlets, switches, and light locations.

icon text-secondary-400 includedMain Level Plan - floor plan rooms and walls dimensioned, window and door sizes noted, plumbing, millwork locations, and other general notes.

icon text-secondary-400 includedUpper-Level Plan (if needed) - same information as Main Level.

icon text-secondary-400 includedMain Level Electrical Plan - electrical outlets, switches, and light locations shown.

icon text-secondary-400 includedUpper-Level Electrical Plan (if needed) - electrical outlets, switches, and light locations shown. (sometimes just the lighting is shown)

icon text-secondary-400 includedExterior Elevations - Elevations of the Front and Right side with notes, dimensions, and material designations.

icon text-secondary-400 includedSections and details - One or more building sections to show vertical relationships and construction plate heights, details as needed.

What’s Not Included

These items are  NOT included:

icon text-secondary-400 includedArchitectural or Engineering Stamp - handled locally if required.

icon text-secondary-400 includedSite Plan - handled locally when required.

icon text-secondary-400 includedMechanical Drawings (location of heating and air equipment and ductwork) - your subcontractors handle this.

icon text-secondary-400 includedPlumbing Drawings (drawings showing the actual plumbing pipe sizes and locations) - your subcontractors handle this.

icon text-secondary-400 includedEnergy calculations - handled locally when required.

Related House Plans

Plan Collection
Plan Collection
Plan Collection
Plan#194-1010
Starting at$1395
2605
Sq Ft
1
Story
2
Bed
2.5
Bath
3
Car
Plan Collection
Plan Collection
Plan Collection
Plan#161-1085
Starting at$1750
2593
Sq Ft
1
Story
2
Bed
2.5
Bath
3
Car
Plan Collection
Plan Collection
Plan Collection
Plan#161-1042
Starting at$2200
3321
Sq Ft
1
Story
2
Bed
2.5
Bath
3
Car
View All

Other Plans By This Designer

Plan Collection
Plan Collection
Plan Collection
Plan#194-1056
Starting at$1395
3582
Sq Ft
1
Story
4
Bed
4.5
Bath
4
Car
Plan Collection
Plan Collection
Plan Collection
Plan#194-1057
Starting at$1395
3692
Sq Ft
1
Story
4
Bed
4.5
Bath
4
Car
Plan Collection
Plan Collection
Plan Collection
Plan#194-1010
Starting at$1395
2605
Sq Ft
1
Story
2
Bed
2.5
Bath
3
Car