3-Bedroom, 2668 Sq Ft Cottage Plan with Walk-in Kitchen Pantry

Cottage home (ThePlanCollection: Plan #195-1227)

Images/Plans copyrighted by designer. Photos may reflect homeowner modifications.

About House Plan #195-1227

Sq Ft
2668
Sq Ft
Bedrooms
3
Bedrooms
Bathroom
2
Baths
Half Baths
2
Half Baths
Bedrooms
3
Cars
Bedrooms
2
Stories
Bedrooms
90' 0'
Width
Bedrooms
67
Depth
Starting at$1075.00What's included
STEP 1Bedrooms
STEP 2Bedrooms
STEP 3Bedrooms

Subtotal:$0
Plan Collection

How much will it cost to build?

Estimate your costs based on your location and materials.

Free Cost Instant Estimator

Floor Plans

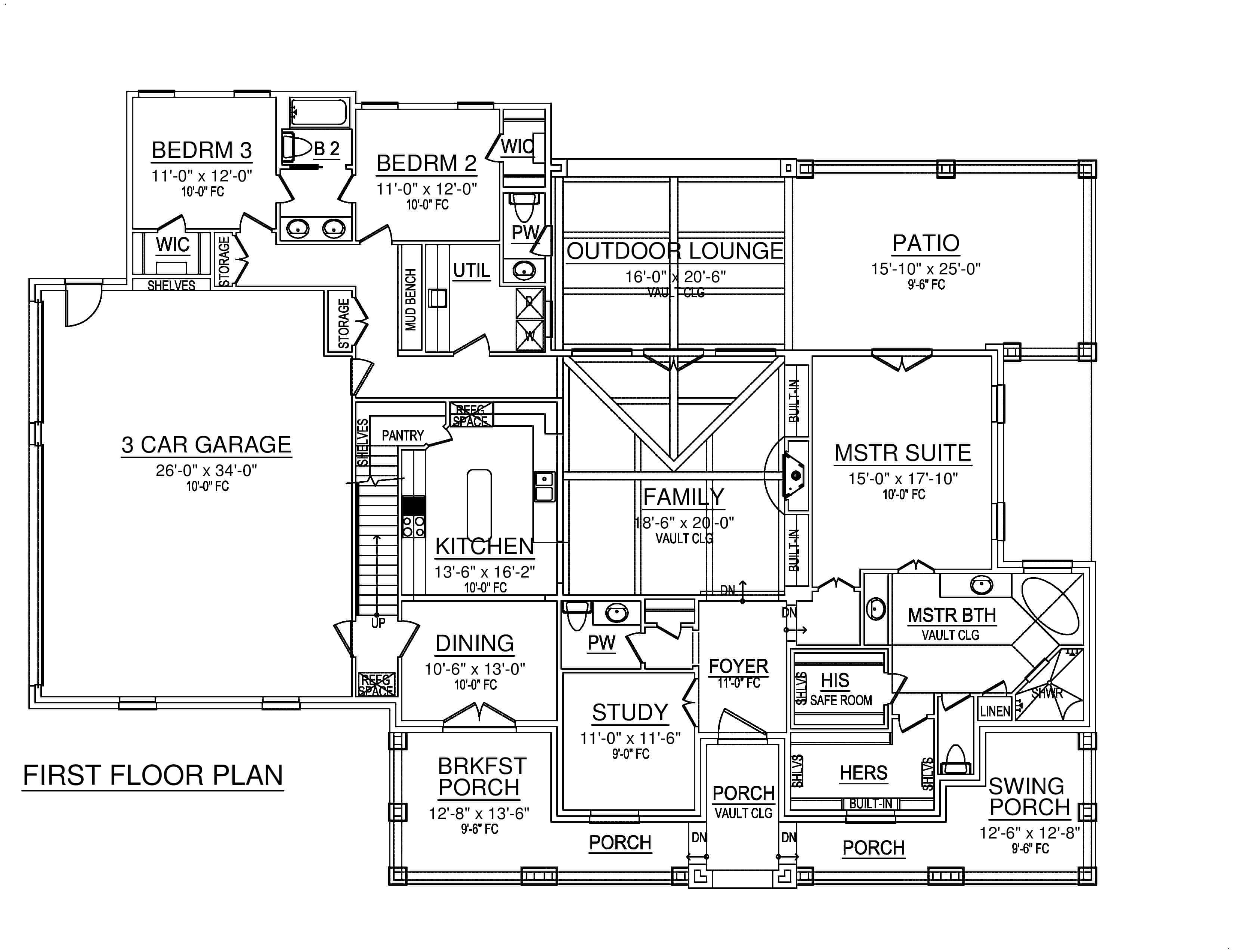
Floor Plan Main Level
Floor Plan Main Level
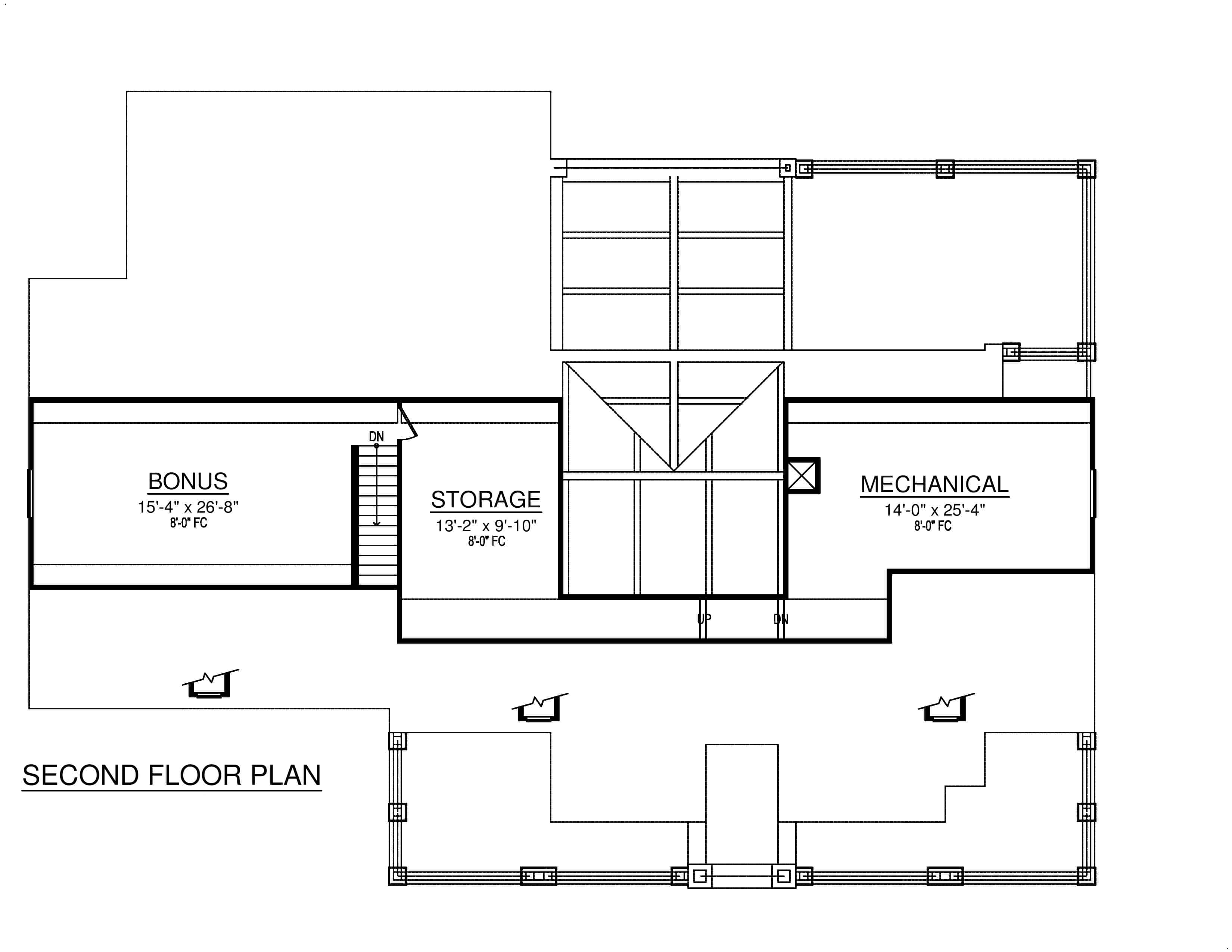
Floor Plan Upper Level
Floor Plan Upper Level
Plan Collection

Can I modify this plan?

Yes! This plan can be customized—contact us for a free quote.

Additional Notes from Designer

This designer does not offer ICF!

House Plan Description

This Cottage-Traditional style home creates an interesting facade; the steep gable roof, dormers, rustic accents, and natural stone cladding give the house its curb appeal. The oversize 1016-square-foot 3-car garage is large enough that a workshop may be added as desired by the owner. And the wide covered front porch is designed for relaxation on the right side and alfresco dining on the left. The 1.5-story floor plan has 2668 square feet of living space and includes 3 bedrooms, 2 full bathrooms, and 2 powder rooms. 

Home Details

Summary
Plan #:195-1227
Starting at:$1075.00
Floors:2
Bedrooms:3
Full Baths:2
Half Baths:2
Garage:
Square Footage
Heated Area:2668 Sq. Ft.
First Floor:2668 Sq. Ft.
Unheated Area:
Bonus Room:1256 Sq. Ft.
Garage:1016 Sq. Ft.
Dimensions
Architectural Styles
Exterior Wall Material
Rock/Stone
Roofing Type
GableGable/Dormer
Roofing Material
Metal
Ceiling Height
10 Foot Ceiling8 Foot Ceiling
Special Feature
FireplaceDining RoomMud RoomBonus RoomFamily RoomMain Level LaundryLibrarySplit BathroomStorageVaulted CeilingsOpen Floor Plan
Garage Type
Attached GarageSide Entry
Fireplaces
One Fireplace
Building Lot Type
Corner Lot
Kitchen Features
Kitchen IslandNook/Breakfast AreaWalk-in PantryPeninsula/Eating BarEat-In Kitchen
Porches and Exterior Features
Wrap Around PorchCovered Rear PorchPatio
Master Suite Features
Main Floor MasterMaster BathroomWalk In ClosetSplit Master Bedroom

What’s Included

Most plan sets include the following:

icon text-secondary-400 includedDimension Plan

icon text-secondary-400 includedNotation Plan

icon text-secondary-400 includedElectrical Layout

icon text-secondary-400 includedElevations

icon text-secondary-400 includedRoof Plan

icon text-secondary-400 includedGeneral Specifications

icon text-secondary-400 includedGeneral Details

What’s Not Included

These items are  NOT included:

icon text-secondary-400 includedArchitectural or Engineering Stamp - handled locally if required.

icon text-secondary-400 includedSite Plan - handled locally when required.

icon text-secondary-400 includedMechanical Drawings (location of heating and air equipment and ductwork) - your subcontractors handle this.

icon text-secondary-400 includedPlumbing Drawings (drawings showing the actual plumbing pipe sizes and locations) - your subcontractors handle this.

icon text-secondary-400 includedEnergy calculations - handled locally when required.

Related House Plans

Plan Collection
Plan Collection
Plan Collection
Plan#126-1297
Starting at$1715
2257
Sq Ft
2
Story
3
Bed
2.5
Bath
2
Car
Plan Collection
Plan Collection
Plan Collection
Plan#198-1006
Starting at$2395
2587
Sq Ft
2
Story
3
Bed
2.5
Bath
3
Car
Plan Collection
Plan Collection
Plan Collection
Plan#117-1030
Starting at$1095
2112
Sq Ft
2
Story
3
Bed
2.5
Bath
2
Car
View All

Other Plans By This Designer

Plan Collection
Plan Collection
Plan Collection
Plan#195-1216
Starting at$3295
7587
Sq Ft
2
Story
5
Bed
6.5
Bath
3
Car
Plan Collection
Plan Collection
Plan Collection
Plan#195-1307
Starting at$7995
12720
Sq Ft
2
Story
5
Bed
6.5
Bath
5
Car
Plan Collection
Plan Collection
Plan Collection
Plan#195-1127
Starting at$9995
14727
Sq Ft
2
Story
9
Bed
8.5
Bath
9
Car