4-Bedroom, 2663 Sq Ft Cape Cod Plan with Vaulted Ceilings

Cape Cod home (ThePlanCollection: Plan #193-1096)

Images/Plans copyrighted by designer. Photos may reflect homeowner modifications.

About House Plan #193-1096

Sq Ft
2663
Sq Ft
Bedrooms
4
Bedrooms
Bathroom
3
Baths
Half Baths
0
Half Baths
Bedrooms
1
Cars
Bedrooms
1.5
Stories
Bedrooms
58' 0'
Width
Bedrooms
67
Depth
Starting at$1550.00What's included
STEP 1Bedrooms
STEP 2Bedrooms
STEP 3Bedrooms

Subtotal:$0
Plan Collection

How much will it cost to build?

Estimate your costs based on your location and materials.

Free Cost Instant Estimator

Floor Plans

Floor Plan Main Level
Floor Plan Main Level
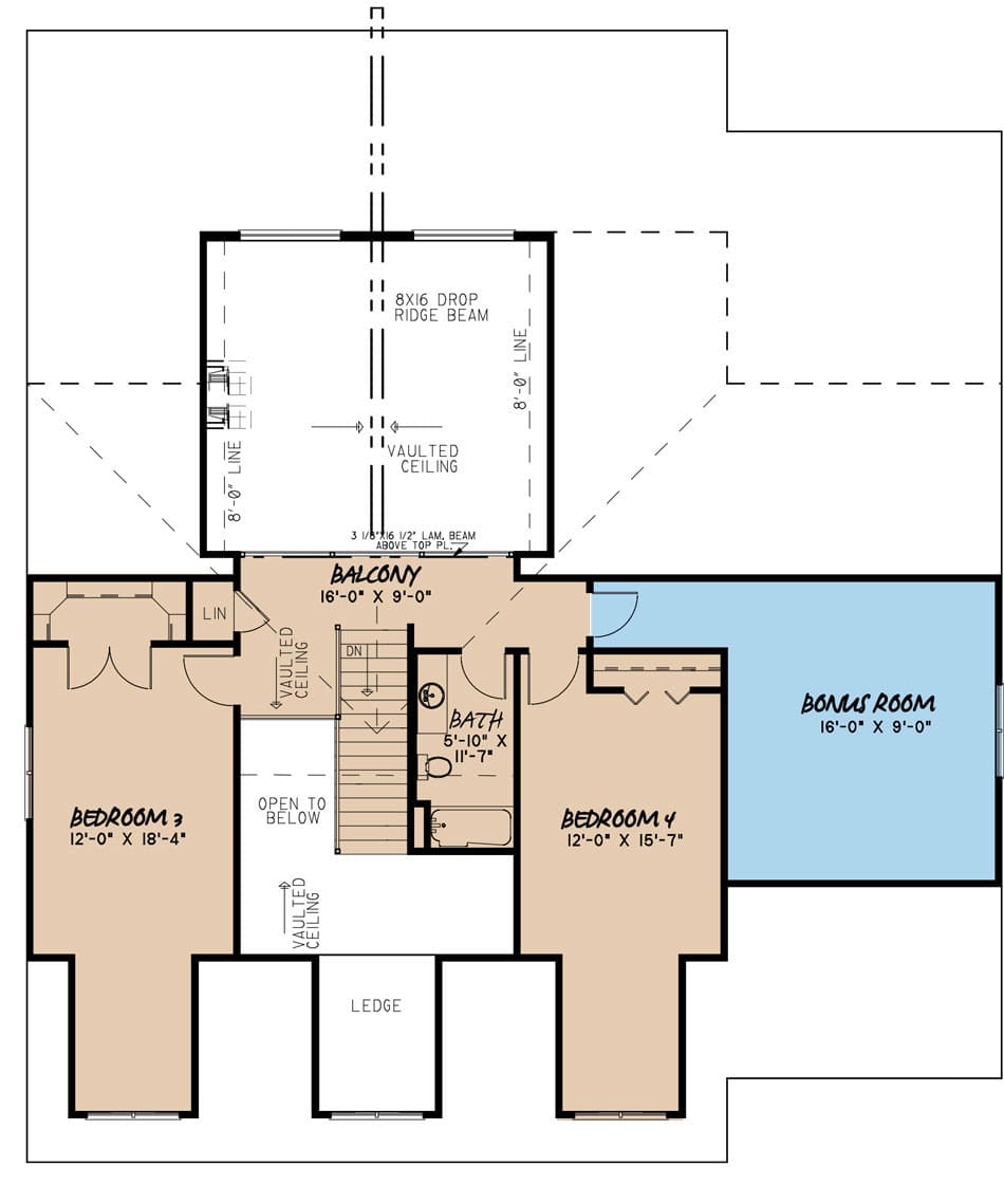
Floor Plan Upper Level
Floor Plan Upper Level
Plan Collection

Can I modify this plan?

Yes! This plan can be customized—contact us for a free quote.

Additional Notes from Designer

For this designer, if you choose optional features such as but not limited to: 2x6 exterior walls, reverse or optional basement, the designer will need an additional 2-5 business days to adjust the plan accordingly. Please keep this in mind when choosing your shipping option. if you would like Express or Priority shipping, the designer will ship the plan to you using the method you choose but you will still have the 2-5 business day waiting period BEFORE they ship! This designer does not offer Framing. Please feel free to contact us with any questions!

House Plan Description

This striking Cape Cod style home with Farmhouse qualities (Plan #193-1096) has 2663 square feet of conditioned (heated and cooled) living space. The 1.5-story floor plan includes 4 bedrooms, 2 downstairs and 2 upstairs, and 3 bathrooms, 3 downstairs and 1 upstairs. In addition, the plan has a huge Great Room open floor plan living space encompassing the kitchen, dining area, and family room. And there are front and rear covered porches, plus a screened-in rear/side porch for additional outdoor living space in warmer weather.

Home Details

Summary
Plan #:193-1096
Starting at:$1550.00
Floors:1.5
Bedrooms:4
Full Baths:3
Half Baths:0
Garage:
Square Footage
Heated Area:2663 Sq. Ft.
First Floor:1780 Sq. Ft.
Second Floor:863 Sq. Ft.
Unheated Area:
Bonus Room:338 Sq. Ft.
Porch:1336 Sq. Ft.
Dimensions
Depth:67' 4''
Architectural Styles
Exterior Wall Material
Vinyl SidingRock/StoneWood SidingShakes
Roofing Type
Gable/Shed Dormer
Roofing Material
Metal
Roof Pitch
10/12
Ceiling Height
9 Foot Ceiling8 Foot Ceiling
Special Feature
FireplaceDining RoomBonus RoomFamily RoomMain Level LaundrySplit BathroomVaulted CeilingsBalconyOpen Floor Plan
Garage Type
Attached GarageFront Entry
Fireplaces
One Fireplace
Exterior Wall Framing
2x4
Kitchen Features
Walk-in PantryPeninsula/Eating Bar
Porches and Exterior Features
Covered Front PorchCovered Rear Porch
Master Suite Features
Main Floor MasterMaster BathroomWalk In ClosetSplit Master Bedroom

What’s Included

Most plan sets include the following:

icon text-secondary-400 included Each plan set includes the following:

icon text-secondary-400 included floorplan

icon text-secondary-400 included 4 side exterior elevations,

icon text-secondary-400 included electrical plan,

icon text-secondary-400 included birds-eye view of the roof,

icon text-secondary-400 included foundation plan,

icon text-secondary-400 included and some miscellaneous details. Please Note We do not offer framing, plumbing, HVAC, or window scheduling. This will have to be done on a local level, probably by your building team!

What’s Not Included

These items are  NOT included:

icon text-secondary-400 includedArchitectural or Engineering Stamp - handled locally if required.

icon text-secondary-400 includedSite Plan - handled locally when required.

icon text-secondary-400 includedMechanical Drawings (location of heating and air equipment and ductwork) - your subcontractors handle this.

icon text-secondary-400 includedPlumbing Drawings (drawings showing the actual plumbing pipe sizes and locations) - your subcontractors handle this.

icon text-secondary-400 includedEnergy calculations - handled locally when required.

icon text-secondary-400 includedNo Framing

Related House Plans

Plan Collection
Plan Collection
Plan Collection
Plan#142-1185
Starting at$1395
2742
Sq Ft
1.5
Story
4
Bed
3.5
Bath
2
Car
Plan Collection
Plan Collection
Plan Collection
Plan#153-1990
Starting at$1850
3084
Sq Ft
1.5
Story
4
Bed
3.5
Bath
2
Car
Plan Collection
Plan Collection
Plan Collection
Plan#142-1231
Starting at$1345
2390
Sq Ft
1.5
Story
4
Bed
3
Bath
2
Car
View All

Other Plans By This Designer

Plan Collection
Plan Collection
Plan Collection
Plan#193-1108
Starting at$1350
1905
Sq Ft
1.5
Story
3
Bed
2
Bath
0
Car
Plan Collection
Plan Collection
Plan Collection
Plan#193-1179
Starting at$1000
2006
Sq Ft
1.5
Story
3
Bed
2.5
Bath
2
Car
Plan Collection
Plan Collection
Plan Collection
Plan#193-1145
Starting at$1200
1897
Sq Ft
1
Story
4
Bed
2.5
Bath
3
Car