Estimate your costs based on your location and materials.
Yes! This plan can be customized—contact us for a free quote.
Yes! This plan can be customized—contact us for a free quote.
Please Note: There might be a 4-5 day delay in getting the sales orders out due to updates being made to the designer's plans.
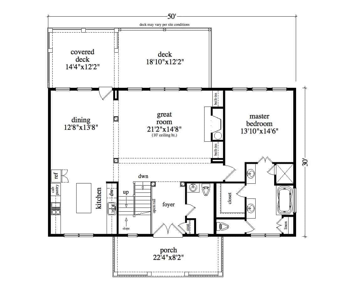
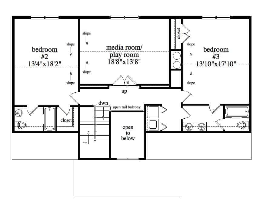
This impressive Farmhouse Country style home has a covered entry porch featuring turned columns and decorative porch railing. You’ll also love the open and airy feel of the house with its variety of windows, making the rooms brilliant and bright. This well-done 2-story floor plan has 2630 square feet of heated and cooled living space and you’ll love these excellent amenities:
• Fireplace in the Great Room
• Huge walk-in closets
• Powder room for the guest's convenience
•...
Estimate your costs based on your location and materials.
All sales of house plans, modifications, and other products found on this site are final. No refunds or exchanges can be given once your order has begun the fulfillment process. Please see our Policies for additional information.
All plans offered on ThePlanCollection.com are designed to conform to the local building codes when and where the original plan was drawn.
The homes as shown in photographs and renderings may differ from the actual blueprints. For more detailed information, please review the floor plan images herein carefully.
Estimate your costs based on your location and materials.