3-Bedroom, 2529 Sq Ft Contemporary Plan with Sewing Room

Front elevation of Contemporary home (ThePlanCollection: House Plan #132-1712)

Images/Plans copyrighted by designer. Photos may reflect homeowner modifications.

About House Plan #132-1712

Sq Ft
2529
Sq Ft
Bedrooms
3
Bedrooms
Bathroom
1
Baths
Half Baths
1
Half Baths
Bedrooms
0
Cars
Bedrooms
1
Stories
Bedrooms
54' 0'
Width
Bedrooms
60
Depth
Starting at$1245.00What's included
STEP 1Bedrooms
STEP 2Bedrooms
STEP 3Bedrooms

Subtotal:$0
Plan Collection

How much will it cost to build?

Estimate your costs based on your location and materials.

Free Cost Instant Estimator

Floor Plans

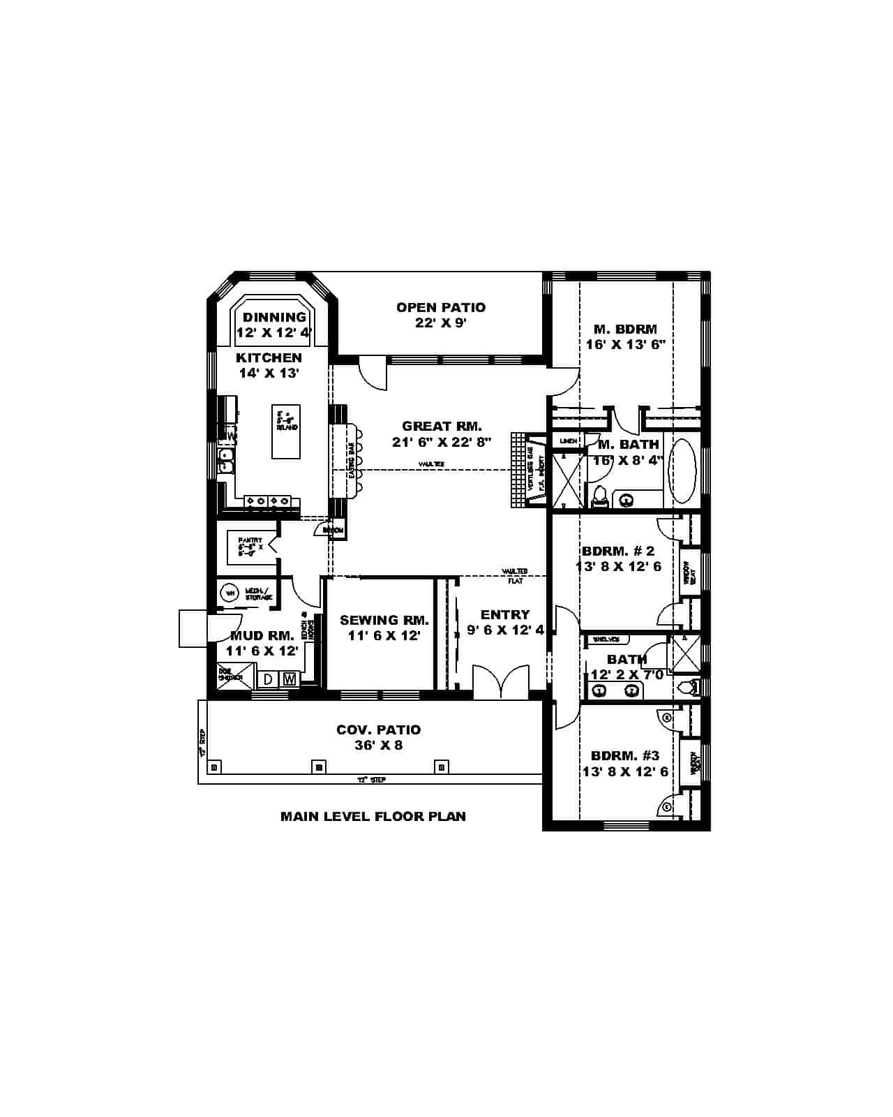
Floor Plan First Story
Floor Plan First Story
Plan Collection

Can I modify this plan?

Yes! This plan can be customized—contact us for a free quote.

Additional Notes from Designer

PLEASE NOTE! The CAD - Unlimited package is NOT an unlimited license - it is a license to build up to 5 homes.

House Plan Description

Stunning 3-bed, 2529 Sq Ft Contemporary style home with Concrete Block/ ICF Design features a sewing room, vaulted ceilings, open patio, mudroom, and butler's pantry. Enjoy the covered entry and covered patio for outdoor living at its finest. The front covered patio is 286.5 sq ft and the back open patio...

Home Details

Summary
Plan #:132-1712
Starting at:$1245.00
Floors:1
Bedrooms:3
Full Baths:1
Half Baths:1
Garage:
Square Footage
Heated Area:2529 Sq. Ft.
First Floor:2529 Sq. Ft.
Unheated Area:
Porch:489 Sq. Ft.
Dimensions
Ridge Height:25' 0''
Architectural Styles
Ceiling Height
10 Foot Ceiling
Special Feature
FireplaceDining RoomMud RoomFamily RoomMain Level LaundryVaulted CeilingsOpen Floor Plan
Kitchen Features
Kitchen IslandButler's PantryPeninsula/Eating Bar
Porches and Exterior Features
PatioCovered Rear Patio
Master Suite Features
Main Floor MasterMaster Bathroom

What’s Included

Most plan sets include the following:

icon text-secondary-400 includedExterior elevations: shows the home on all four sides, calls out exterior finishes, rooflines, window and door locations.

icon text-secondary-400 includedFloor plans: includes interior and exterior dimensions, window/door schedule, wall framing details.

icon text-secondary-400 includedFoundation plan: shows footing, stem wall, and slab placement, including all connection details.

icon text-secondary-400 includedFloor and roof framing plans show truss/rafter placements, including all beams/connection details.

icon text-secondary-400 includedCross-sections: cut-through view of the structure from roof to foundation, shows framing, plate heights, insulation, etc.

icon text-secondary-400 includedElectrical layout

icon text-secondary-400 includedGeneral notes/details to cover the entirety of the project

What’s Not Included

These items are  NOT included:

icon text-secondary-400 includedArchitectural or Engineering Stamp - handled locally if required.

icon text-secondary-400 includedSite Plan - handled locally when required.

icon text-secondary-400 includedMechanical Drawings (location of heating and air equipment and ductwork) - your subcontractors handle this.

icon text-secondary-400 includedPlumbing Drawings (drawings showing the actual plumbing pipe sizes and locations) - your subcontractors handle this.

icon text-secondary-400 includedEnergy calculations - handled locally when required.

Related House Plans

Plan Collection
Plan Collection
Plan Collection
Plan#126-1835
Starting at$1605
2128
Sq Ft
1
Story
3
Bed
1
Bath
0
Car
Plan Collection
Plan Collection
Plan Collection
Plan#161-1029
Starting at$1450
2100
Sq Ft
1
Story
3
Bed
1
Bath
2
Car
Plan Collection
Plan Collection
Plan Collection
Plan#101-1510
Starting at$1075
2557
Sq Ft
1
Story
3
Bed
1
Bath
3
Car
View All

Other Plans By This Designer

Plan Collection
Plan Collection
Plan Collection
Plan#132-1697
Starting at$1145
1176
Sq Ft
1
Story
2
Bed
2
Bath
0
Car
Plan Collection
Plan Collection
Plan Collection
Plan#132-1313
Starting at$1245
2281
Sq Ft
2
Story
3
Bed
2.5
Bath
0
Car
Plan Collection
Plan Collection
Plan Collection
Plan#132-1107
Starting at$995
689
Sq Ft
1
Story
1
Bed
1
Bath
0
Car