4-Bedroom, 2520 Sq Ft European Plan with Walk In Closet

Front elevation of European home (ThePlanCollection: House Plan #106-1260)

Images/Plans copyrighted by designer. Photos may reflect homeowner modifications.

About House Plan #106-1260

Sq Ft
2520
Sq Ft
Bedrooms
4
Bedrooms
Bathroom
3
Baths
Half Baths
0
Half Baths
Bedrooms
2
Cars
Bedrooms
2
Stories
Bedrooms
60' 0'
Width
Bedrooms
39
Depth
Starting at$1295.00What's included
STEP 1Bedrooms
STEP 2Bedrooms
STEP 3Bedrooms

Subtotal:$0
Plan Collection

How much will it cost to build?

Estimate your costs based on your location and materials.

Free Cost Instant Estimator

Floor Plans

MAIN LEVEL FLOOR PLAN
MAIN LEVEL FLOOR PLAN
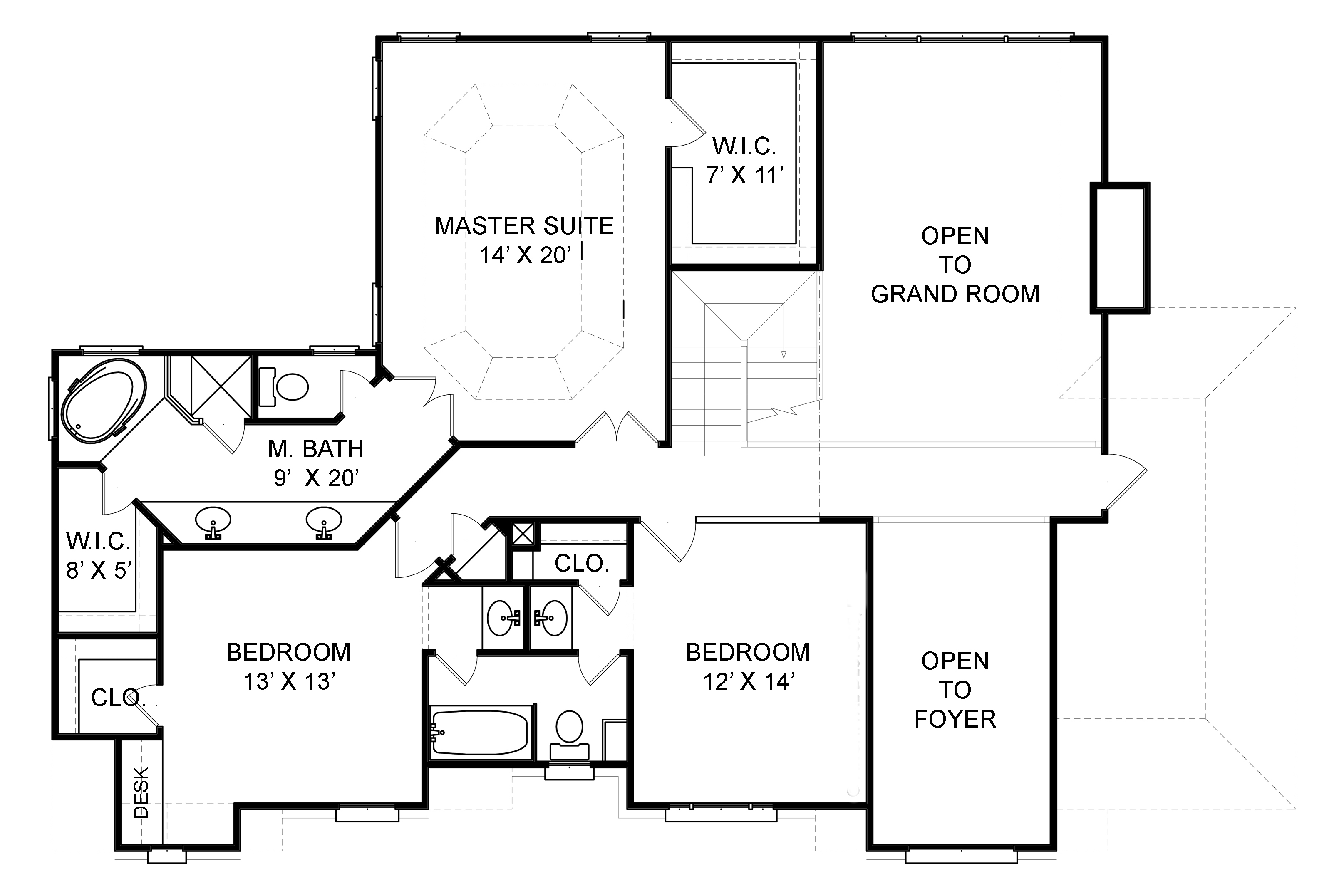
Floor Plan Second Story
Floor Plan Second Story
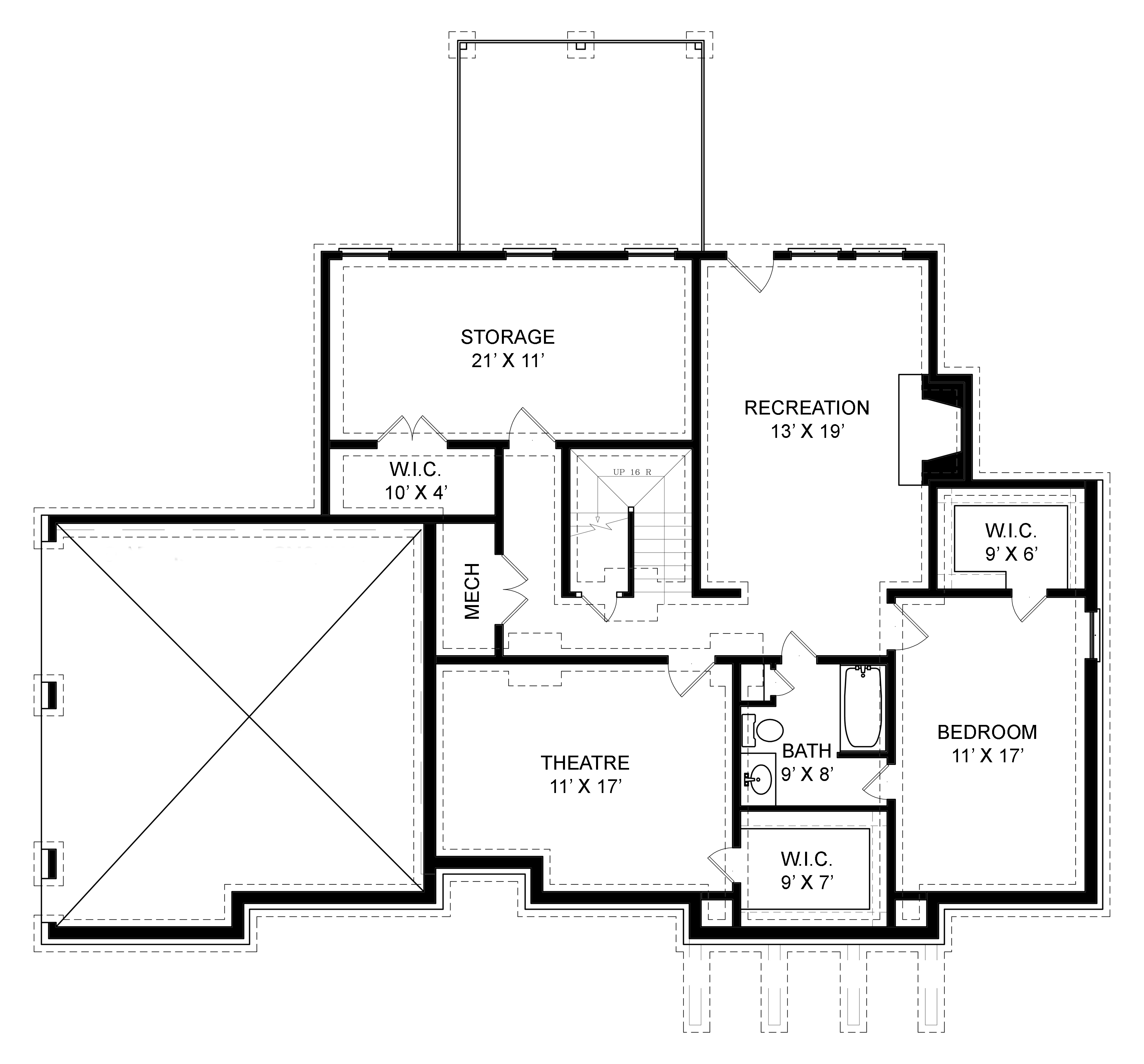
Basement Option Layout
Basement Option Layout
Plan Collection

Can I modify this plan?

Yes! This plan can be customized—contact us for a free quote.

Additional Notes from Designer

The plans by this designer do NOT include framing. PLEASE NOTE: An Unlimited Use License is available for purchase through the designer BUT YOU MUST purchase a CAD package!

House Plan Description

Related Home Plans:#106-1268

Home Details

Summary
Plan #:106-1260
Starting at:$1295.00
Floors:2
Bedrooms:4
Full Baths:3
Half Baths:0
Garage:
Square Footage
Heated Area:2520 Sq. Ft.
First Floor:1380 Sq. Ft.
Second Floor:1140 Sq. Ft.
Unheated Area:
Dimensions
Ridge Height:37' 0''
Architectural Styles
Roof Pitch
12/12
Ceiling Height
9 Foot Ceiling8 Foot Ceiling
Special Feature
FireplaceGuest RoomMain Level LaundryHome TheaterSplit BathroomStorage
Garage Type
Attached Garage
Fireplaces
One Fireplace
Kitchen Features
Kitchen IslandPeninsula/Eating Bar
Master Suite Features
Master BathroomWalk In ClosetSecond Floor Master

What’s Included

Most plan sets include the following:

icon text-secondary-400 includedFoundation Plan

icon text-secondary-400 includedFloor plans

icon text-secondary-400 includedElectrical layout

icon text-secondary-400 includedExterior elevations

icon text-secondary-400 includedCross-section

icon text-secondary-400 includedTypical Call detail

icon text-secondary-400 includedTypical footing detail

icon text-secondary-400 includedMiscellaneous details

icon text-secondary-400 includedWindow/Door sizes

icon text-secondary-400 includedRoof plan

What’s Not Included

These items are  NOT included:

icon text-secondary-400 includedFraming.

icon text-secondary-400 includedArchitectural or Engineering Stamp - handled locally if required.

icon text-secondary-400 includedSite Plan - handled locally when required.

icon text-secondary-400 includedMechanical Drawings (location of heating and air equipment and ductwork) - your subcontractors handle this.

icon text-secondary-400 includedPlumbing Drawings (drawings showing the actual plumbing pipe sizes and locations) - your subcontractors handle this.

icon text-secondary-400 includedEnergy calculations - handled locally when required.

Related House Plans

Plan Collection
Plan Collection
Plan Collection
Plan#153-1786
Starting at$1200
2363
Sq Ft
2
Story
4
Bed
3
Bath
2
Car
Plan Collection
Plan Collection
Plan Collection
Plan#120-2176
Starting at$1255
3124
Sq Ft
2
Story
4
Bed
3.5
Bath
2
Car
Plan Collection
Plan Collection
Plan Collection
Plan#178-1096
Starting at$1055
2252
Sq Ft
2
Story
4
Bed
3
Bath
3
Car
View All

Other Plans By This Designer

Plan Collection
Plan Collection
Plan Collection
Plan#106-1325
Starting at$4095
8628
Sq Ft
2
Story
7
Bed
7.5
Bath
5
Car
Plan Collection
Plan Collection
Plan Collection
Plan#106-1315
Starting at$1695
2830
Sq Ft
1
Story
3
Bed
2.5
Bath
3
Car
Plan Collection
Plan Collection
Plan Collection
Plan#106-1206
Starting at$4095
8210
Sq Ft
2
Story
6
Bed
6.5
Bath
4
Car