3-Bedroom, 2516 Sq Ft Farmhouse Plan with Jack & Jill Bathroom

Front elevation of Farmhouse home (ThePlanCollection: House Plan #211-1079)

Images/Plans copyrighted by designer. Photos may reflect homeowner modifications.

About House Plan #211-1079

Sq Ft
2516
Sq Ft
Bedrooms
3
Bedrooms
Bathroom
2
Baths
Half Baths
1
Half Baths
Bedrooms
2
Cars
Bedrooms
1
Stories
Bedrooms
80' 0'
Width
Bedrooms
55
Depth
Starting at$1000.00What's included
STEP 1Bedrooms
STEP 2Bedrooms
STEP 3Bedrooms

Subtotal:$0
Plan Collection

How much will it cost to build?

Estimate your costs based on your location and materials.

Free Cost Instant Estimator

Floor Plans

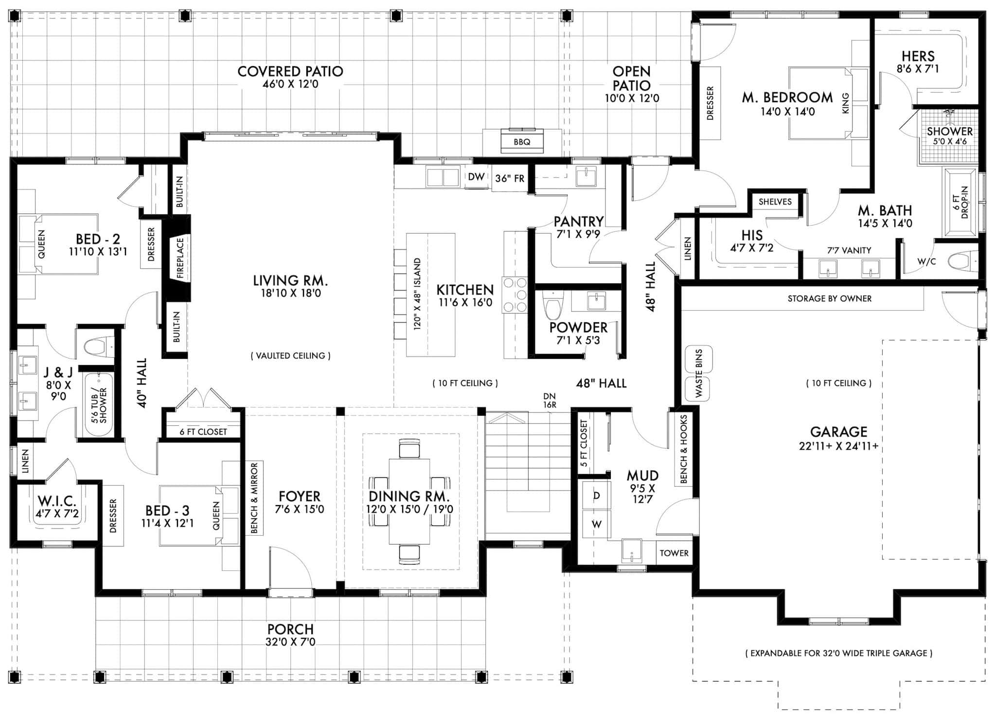
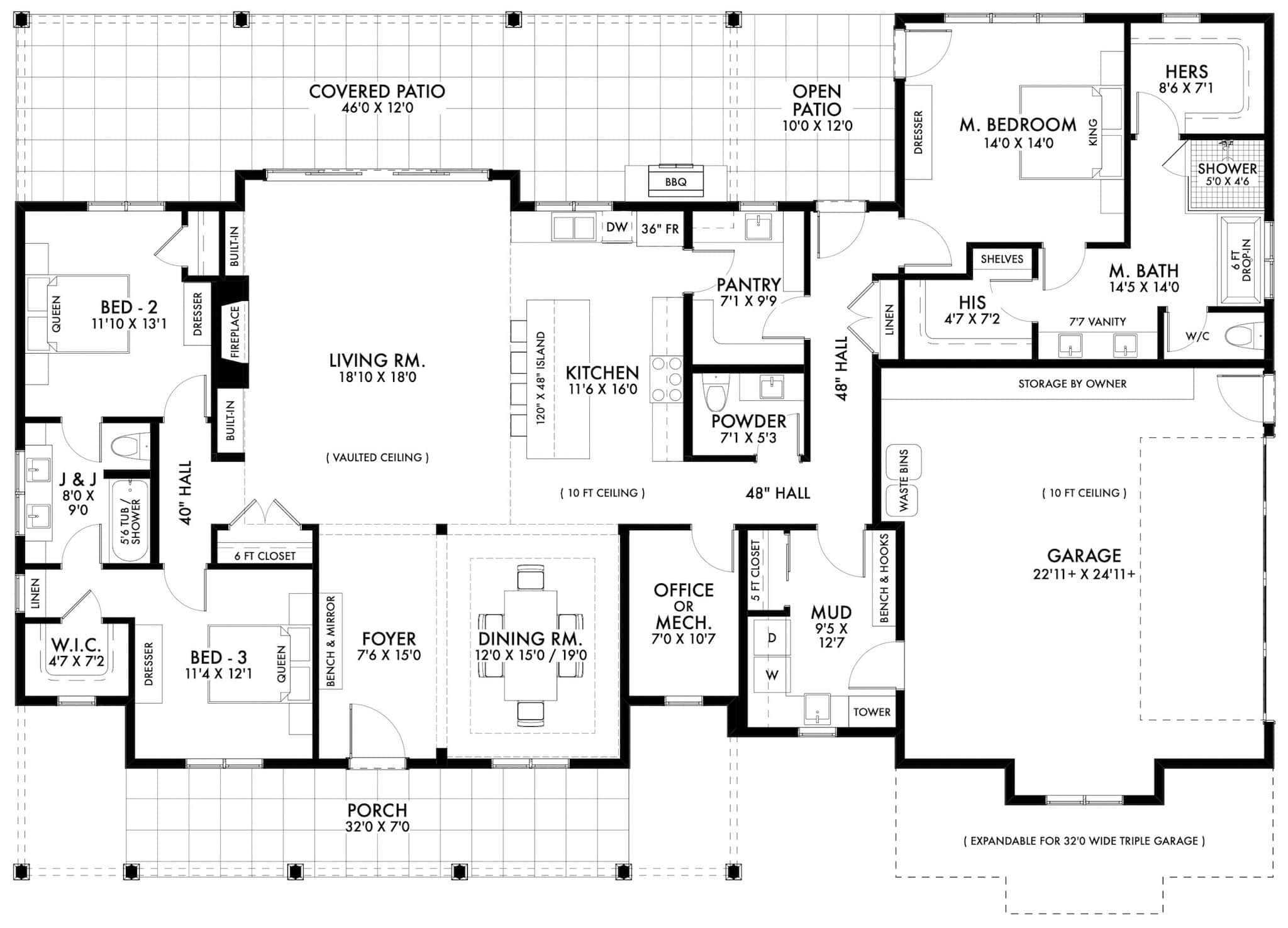
Floor Plan First Story
Floor Plan First Story
Basement Option Stair Location
Basement Option Stair Location
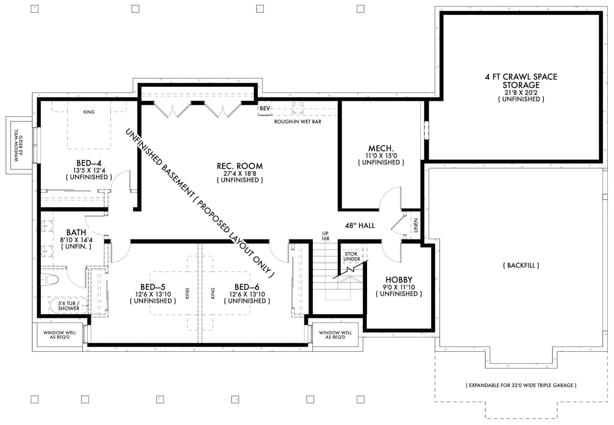
Basement Option Layout
Basement Option Layout
Plan Collection

Can I modify this plan?

Yes! This plan can be customized—contact us for a free quote.

Additional Notes from Designer

When ordering RRR, please know that it could take an additional 3-5 business days to complete BEFORE your order is sent out, regardless of the package ordered. Some of the plans with a RRR will requite drafting and for these specific plans, they will be available and completed March 20th, 2023

Note: Porch sq ft figures may include any deck sq ft as well.

House Plan Description

Overflowing with allure due to its lasting Farmhouse attributes, this Country style home encompasses 2,516 square feet and comprises 3 bedrooms, 2.5 baths, and a 2-car garage. Furthermore, it provides a delightful integration of traits, symbolizing refinement in every aspect:

  • Living Room, Pocket Office, Jack & Jill Bathroom
  • Dining Room, Kitchen with Walk-in Pantry
  • Master Bedroom with His & Hers Walk-in Closet, Master Bathroom
  • Open Floor Plan, Vaulted Ceiling

 

Home Details

Summary
Plan #:211-1079
Starting at:$1000.00
Floors:1
Bedrooms:3
Full Baths:2
Half Baths:1
Garage:
Square Footage
Heated Area:2516 Sq. Ft.
First Floor:2516 Sq. Ft.
Unheated Area:
Basement:1842 Sq. Ft.
Garage:636 Sq. Ft.
Porch:860 Sq. Ft.
Dimensions
Architectural Styles
Exterior Wall Material
BrickBoard and Batten
Roofing Type
GableHip
Roofing Material
Asphalt ShinglesMetal
Roof Pitch
3/127/1210/12
Ceiling Height
10 Foot Ceiling8 Foot Ceiling
Special Feature
FireplaceDining RoomHome OfficeMud RoomFamily RoomMain Level LaundryColor PhotosSplit BathroomStorageVaulted CeilingsOpen Floor PlanInterior Photos
Garage Type
Attached GarageSide Entry
Fireplaces
One Fireplace
Exterior Wall Framing
2x6
Building Lot Type
Down SiteView Lot
Kitchen Features
Kitchen IslandWalk-in Pantry
Porches and Exterior Features
Covered Front PorchCovered Rear PorchPatio
Master Suite Features
Main Floor MasterMaster BathroomWalk In ClosetSplit Master Bedroom

What’s Included

Most plan sets include the following:

icon text-secondary-400 includedFillable site plan, rendering, and general notations page

icon text-secondary-400 includedFloor plans

icon text-secondary-400 includedFoundation plan

icon text-secondary-400 includedRoof plan

icon text-secondary-400 includedElevations

icon text-secondary-400 includedminimum of 2 sections + 1 typical wall section

icon text-secondary-400 includedElectrical plan

What’s Not Included

These items are  NOT included:

icon text-secondary-400 includedArchitectural or Engineering Stamp - handled locally if required.

icon text-secondary-400 includedSite Plan - handled locally when required.

icon text-secondary-400 includedMechanical Drawings (location of heating and air equipment and ductwork) - your subcontractors handle this.

icon text-secondary-400 includedPlumbing Drawings (drawings showing the actual plumbing pipe sizes and locations) - your subcontractors handle this.

icon text-secondary-400 includedEnergy Calculations - handled locally when required.

icon text-secondary-400 includedNo Framing

Related House Plans

Plan Collection
Plan Collection
Plan Collection
Plan#142-1168
Starting at$1395
2597
Sq Ft
1
Story
3
Bed
2.5
Bath
2
Car
Plan Collection
Plan Collection
Plan Collection
Plan#117-1092
Starting at$1095
2091
Sq Ft
1
Story
3
Bed
2.5
Bath
2
Car
Plan Collection
Plan Collection
Plan Collection
Plan#106-1276
Starting at$1295
2344
Sq Ft
1
Story
3
Bed
2.5
Bath
2
Car
View All

Other Plans By This Designer

Plan Collection
Plan Collection
Plan Collection
Plan#211-1001
Starting at$850
967
Sq Ft
1
Story
3
Bed
2
Bath
0
Car
Plan Collection
Plan Collection
Plan Collection
Plan#211-1053
Starting at$950
1626
Sq Ft
1
Story
3
Bed
2.5
Bath
2
Car
Plan Collection
Plan Collection
Plan Collection
Plan#211-1038
Starting at$900
1543
Sq Ft
1
Story
3
Bed
2
Bath
2
Car