3-Bedroom, 2499 Sq Ft Modern Farmhouse Plan with Bonus Room

Front elevation of Modern Farmhouse home (ThePlanCollection: House Plan #106-1331)

Images/Plans copyrighted by designer. Photos may reflect homeowner modifications.

About House Plan #106-1331

Sq Ft
2499
Sq Ft
Bedrooms
3
Bedrooms
Bathroom
2
Baths
Half Baths
1
Half Baths
Bedrooms
3
Cars
Bedrooms
2
Stories
Bedrooms
59' 6'
Width
Bedrooms
75
Depth
Starting at$1295.00What's included
STEP 1Bedrooms
STEP 2Bedrooms
STEP 3Bedrooms

Subtotal:$0
Plan Collection

How much will it cost to build?

Estimate your costs based on your location and materials.

Free Cost Instant Estimator

Floor Plans

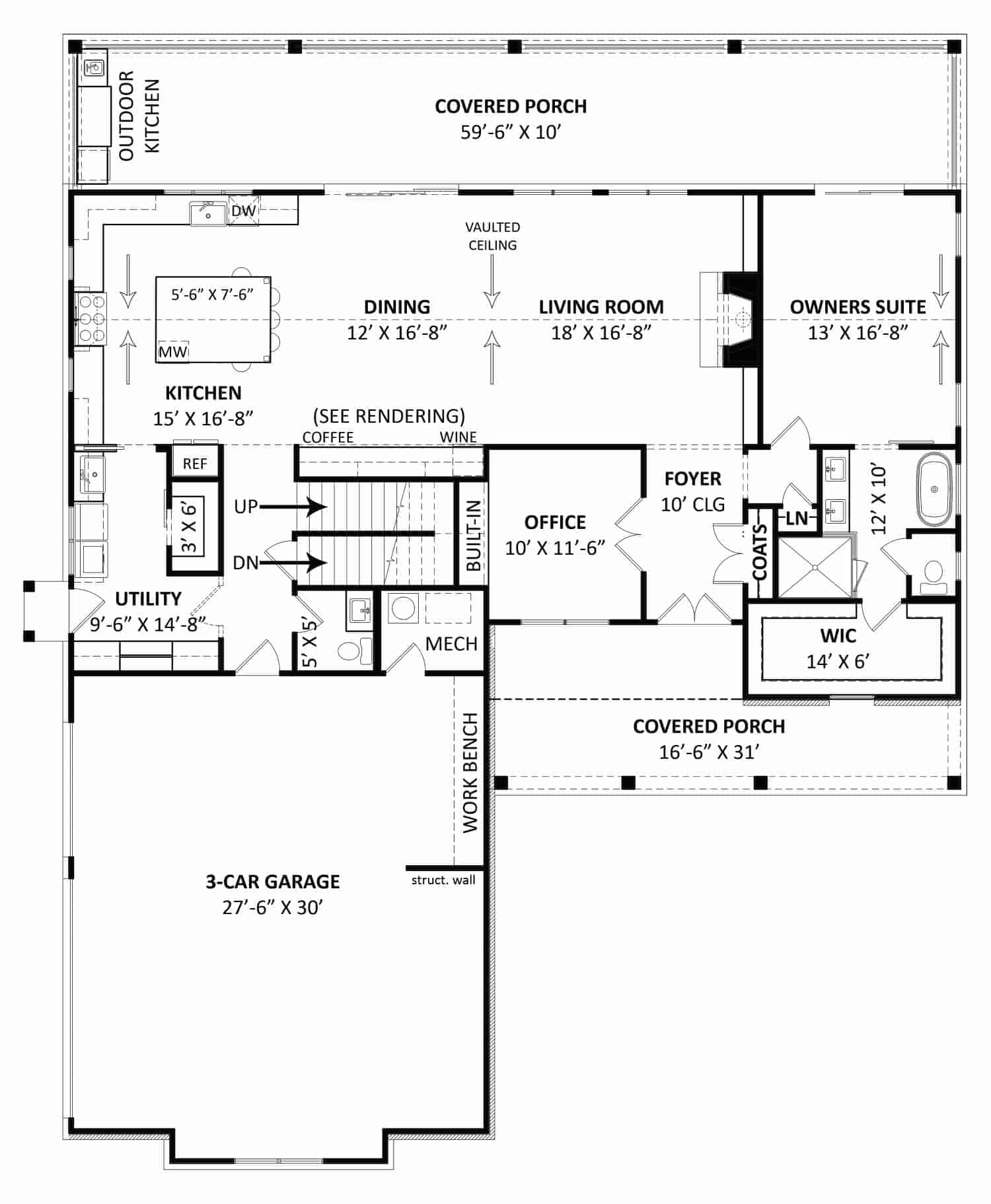
Main Level
Main Level
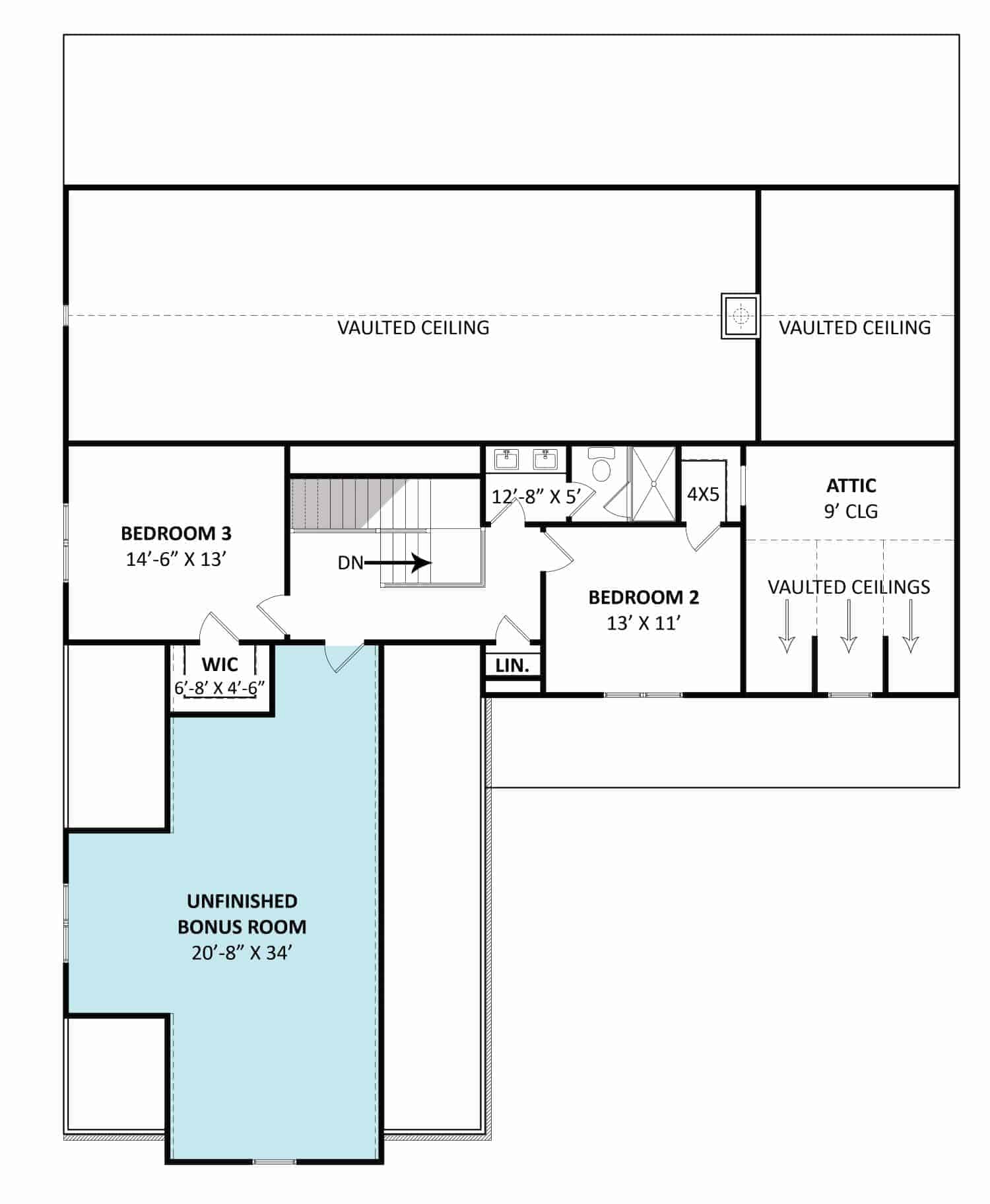
Upper Level
Upper Level
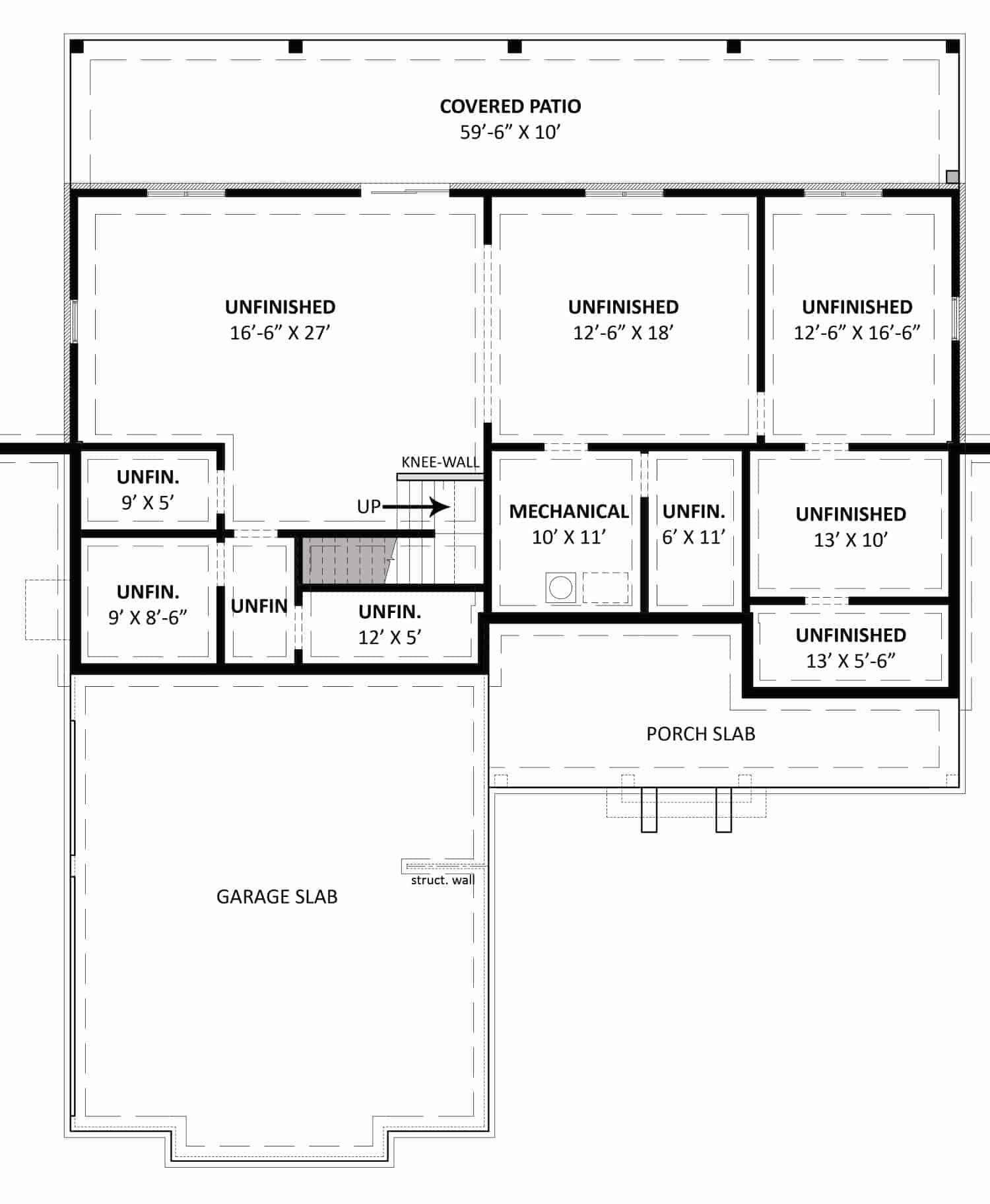
Basement
Basement
Plan Collection

Can I modify this plan?

Yes! This plan can be customized—contact us for a free quote.

Additional Notes from Designer

The plans by this designer do NOT include framing. PLEASE NOTE: An Unlimited Use License is available for purchase through the designer BUT YOU MUST purchase a CAD package!

House Plan Description

Looking for a modern farmhouse that has it all? This 3-bedroom, 2499 sq ft home plan has everything you need and more. On the main level, you'll find a bright and sunny kitchen with unobstructed views into the formal dining and living room. The kitchen features a spacious 5'-6" x 7'-6" island which acts as a beautiful centerpiece. A stone fireplace with built-ins on both sides serves as artwork in the living room, complemented by the soaring vaulted ceiling. The main level also boasts a thoughtfully designed traffic flow that makes the home feel open and expansive...

Home Details

Summary
Plan #:106-1331
Starting at:$1295.00
Floors:2
Bedrooms:3
Full Baths:2
Half Baths:1
Garage:
Square Footage
Heated Area:2499 Sq. Ft.
First Floor:1894 Sq. Ft.
Second Floor:605 Sq. Ft.
Unheated Area:
Basement:1767 Sq. Ft.
Bonus Room:551 Sq. Ft.
Garage:886 Sq. Ft.
Dimensions
Width:59' 6''
Ridge Height:29' 0''
Architectural Styles
Roofing Type
GableShed
Roof Pitch
12/1211/12
Ceiling Height
10 Foot Ceiling9 Foot Ceiling
Special Feature
FireplaceDining RoomHome OfficeMud RoomBonus RoomFamily RoomMain Level LaundryStorageVaulted CeilingsOpen Floor Plan
Garage Type
Side Entry
Fireplaces
One Fireplace
Exterior Wall Framing
2x4
Kitchen Features
Butler's Pantry
Porches and Exterior Features
Covered Front PorchCovered Rear Porch
Master Suite Features
Walk In Closet

What’s Included

Most plan sets include the following:

icon text-secondary-400 includedFoundation Plan

icon text-secondary-400 includedFloor plans

icon text-secondary-400 includedElectrical layout

icon text-secondary-400 includedExterior elevations

icon text-secondary-400 includedCross-section

icon text-secondary-400 includedTypical Call detail

icon text-secondary-400 includedTypical footing detail

icon text-secondary-400 includedMiscellaneous details

icon text-secondary-400 includedWindow/Door sizes

icon text-secondary-400 includedRoof plan

What’s Not Included

These items are  NOT included:

icon text-secondary-400 includedFraming.

icon text-secondary-400 includedArchitectural or Engineering Stamp - handled locally if required.

icon text-secondary-400 includedSite Plan - handled locally when required.

icon text-secondary-400 includedMechanical Drawings (location of heating and air equipment and ductwork) - your subcontractors handle this.

icon text-secondary-400 includedPlumbing Drawings (drawings showing the actual plumbing pipe sizes and locations) - your subcontractors handle this.

icon text-secondary-400 includedEnergy calculations - handled locally when required.

Related House Plans

Plan Collection
Plan Collection
Plan Collection
Plan#126-1297
Starting at$1715
2257
Sq Ft
2
Story
3
Bed
2.5
Bath
2
Car
Plan Collection
Plan Collection
Plan Collection
Plan#198-1006
Starting at$2395
2587
Sq Ft
2
Story
3
Bed
2.5
Bath
3
Car
Plan Collection
Plan Collection
Plan Collection
Plan#117-1030
Starting at$1095
2112
Sq Ft
2
Story
3
Bed
2.5
Bath
2
Car
View All

Other Plans By This Designer

Plan Collection
Plan Collection
Plan Collection
Plan#106-1325
Starting at$4095
8628
Sq Ft
2
Story
7
Bed
7.5
Bath
5
Car
Plan Collection
Plan Collection
Plan Collection
Plan#106-1315
Starting at$1695
2830
Sq Ft
1
Story
3
Bed
2.5
Bath
3
Car
Plan Collection
Plan Collection
Plan Collection
Plan#106-1206
Starting at$4095
8210
Sq Ft
2
Story
6
Bed
6.5
Bath
4
Car